+17 fotó
Hirdetéskód: 8870758
Referenciaszám: P4794-1-0A-FZ-001
Frissítve: 2 napja
Eladó 3 szobás téglalakás 178,2 millió Ft értékben Budapest III. kerületben - ForestSide Residence lakóparkban
Budapest III. kerület 178,2 millió Ft
2,55 millió Ft/m²
70 m²
3 szoba
földszint
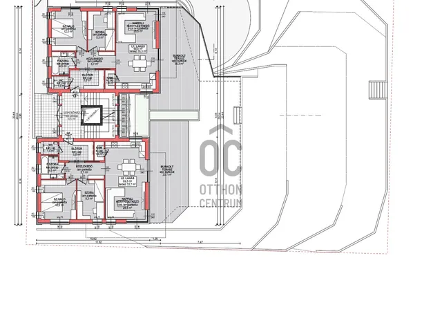
Új 4 lakásos Project Óbuda Hegyoldalban!
Projekt bemutatása
Óbuda, Hegyoldal lokációban, 2 földszinti, 2 belső kétszintes, liftes lakások kerülnek kialakításra, teremgarázzsal, tárolóval, 1400nm-es telken!
1. lakás :70nm,nappali+2 háló, +35.3nm-es terasz,
2. lakás: 70nm,nappali+2 háló+33.7 nm-es terasz,
3. lakás: nettó 119nm,bruttó: nappali+4 háló, 126nm+19+5.2 nm terasz,
4. lakás: nettó 119nm, bruttó nappali+4 háló, 126nm+19+5.2 nm terasz,
Műszaki tartalom:
-Hőszivattyús fűtésrendszer mennyezeti+padlófűtés, szellőztető rendszerrel,
-3 rétegű borovi fenyőfa nyílászárók,
-választható hideg, meleg burkolatok 30.000.- ft/nm
-beltéri ajtók:150.000.- ft/db
-szaniterek Hans Grohe vagy azzal egyenértékű, minőségű,
-elektromos redőnyök,
-üveg korlátok,
-alap kertrendezés,
Teremgarázsok vásárolhatóak az ingatlanokhoz 10mill./db
tárolók :3,ill. 6nm-esek, 1mill. ft/nm
Átadás határideje: 2027. II. félév
További információért várom hívását!
Tulajdonságok
Téglalakás
Új építésű
2027
2027. 4. negyedév
35,3 m²
Nem adta meg a hirdető
Vedd fel a kapcsolatot a hirdetővel
+36 70 465 6
Hitelkalkulátor
Második évtől
766 892 Ft A 13. hónaptól
7,99% 8,49%
Végig fix Futamidő: 20 év Banki visszahívás
Az OTP Bank munkatársai a neked megfelelő napszakban veszik fel veled a kapcsolatot.Hitelfelvétel esetén akár egy héttel rövidebb lehet az ügyintézés.
Ez az ingatlan a nálunk meglévő adatok alapján azonnali értékbecslésre alkalmas lehet.
A becslés a hirdető által megadott adatokon alapul. A jelen tájékoztatás nem minősül ajánlattételnek és nem teljes körű, az egyes feltételek a hitelbírálat eredményétől függően változhatnak. Kérjük, a részletekről tájékozódj az OTP Bank fiókjaiban vagy az OTP Bank honlapján közzétett vonatkozó Üzletszabályzatokból és Hirdetményekből.
Vedd fel a kapcsolatot a hirdetővel
+36 70 465 6
Vedd fel a kapcsolatot a hirdetővel
+36 70 465 6
UI_KIT.CHARACTER_COUNTER__COMPONENT.ACTUAL_CHARACTER__SR_ONLY UI_KIT.CHARACTER_COUNTER__COMPONENT.MAXIMUM_CHARACTER__SR_ONLY
Lakóparkhoz kapcsolódó további ingatlanok

