+17 fotó
Hirdetéskód: 8988911
Referenciaszám: M327871
Feltöltve: ma
Budapest III. kerület eladó téglalakás 5 szobás: 319 millió Ft
319 millió Ft
1,82 millió Ft/m² *
* A m² árat a hirdető adta meg.
175 m²
5 szoba
Leírás
Prémium kialakítású, újszerű állapotú ikerházfél eladó Budapest III. kerületében, a Testvérhegy és Harsánylejtő határán, csendes, zöldövezeti környezetben.
Az ingatlan kertvárosias, alacsony forgalmú utcában található, jól megközelíthető elhelyezkedéssel. A 260-as busz megállója néhány perc sétával elérhető, így a közösségi közlekedés is kényelmesen biztosított.
A négyszintes, önálló helyrajzi számmal rendelkező ikerház 2010-ben épült, majd 2019-ben részleges felújításon esett át. A korszerűsítés során megújult a konyha és a nappali, új burkolatokat kapott a terasz, valamint kialakításra került egy fűthető kültéri medence. Az épület műszaki és esztétikai állapota egyaránt kiváló: a tető hibátlan állapotú, a külső és belső homlokzat szintén.
Főbb paraméterek:
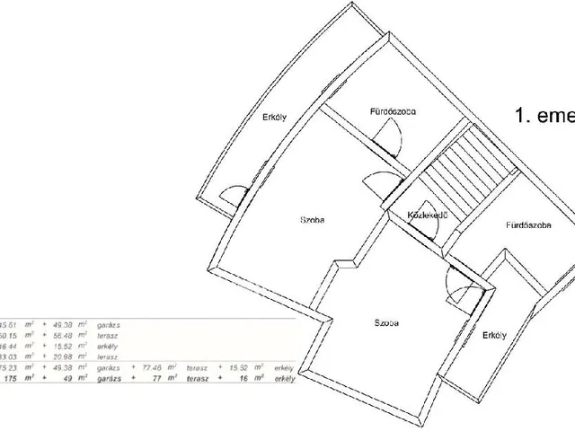
Nettó lakóterület: 175 m2 (bruttó 246 m2)
Telekterület: 450 m2
Szobák száma: 5
Fürdőszobák száma: 3
Elrendezés:
Az alagsorban gépészeti helyiség, háztartási rész, vendégszoba, valamint egy külön wellness tér található szaunával, jakuzzival és sófallal.
A földszinten modern, gépesített konyha, világos nappali-étkező közvetlen teraszkapcsolattal, vízteres kandalló és külön mellékhelyiség került kialakításra.
Az első emeleten két hálószoba helyezkedik el, mindkettő saját fürdőszobával és erkéllyel.
A második emeleten egy tágas szülői háló panorámás terasszal, valamint egy további szoba saját fürdőszobával található.
Kert és külső tér:
A kert rendezett, automata öntözőrendszerrel ellátott. A telken helyet kapott egy fűthető kültéri medence nyakzuhannyal, egy fa burkolatú napozóterasz, valamint egy épített kerti főzőhely. A növényzet között termő gyümölcsfák (füge, málna, szőlő) is megtalálhatók.
Műszaki tartalom:
Az ingatlan korszerű gépészeti megoldásokkal felszerelt: 10 kW-os napelemes rendszer és napkollektorok segítik az energiahatékony működést. A fűtést kondenzációs gázkazán, vízteres kandalló és padlófűtés biztosítja, a hálószobák hűtő-fűtő klímával felszereltek. A ház hőszivattyús rendszer fogadására előkészített.
A nyílászárók prémium minőségű Internorm szerkezetek, az épület 15 cm-es hőszigeteléssel rendelkezik. Az árnyékolást elektromos sötétítők biztosítják.
A biztonságot kamerarendszerrel ellátott, távolról vezérelhető kapunyitó rendszer növeli.
Parkolás:
Az ingatlanhoz egy 50 m2-es garázs tartozik, amely több gépjármű elhelyezésére is alkalmas.
Környezet:
A környék csendes, biztonságos, zöldövezeti jellegű. A szomszédság rendezett; a közvetlen szomszéd egy megbízható, együttműködő lakó. A közelben megtalálhatók oktatási intézmények, üzletek, egészségügyi szolgáltatások, valamint kirándulási lehetőségek a környező hegyekben.
Tulajdoni viszonyok és birtokbaadás:
Az ingatlan két tulajdonos birtokában van, mindkét fél egyetért az értékesítésben. Az ingatlan kiürített állapotban van, azonnal birtokba vehető. A vételár a beépített bútorokat tartalmazza.
Tulajdonságok
Téglalakás
2
Újszerű
Gázkazán
2010
15,8 m²
77,5 m²
Nem adta meg a hirdető
Vedd fel a kapcsolatot a hirdetővel
+36 30 731 6
Hitelkalkulátor
Második évtől
1 372 831 Ft A 13. hónaptól
7,99%
Végig fix Futamidő: 20 év Banki visszahívás
Az OTP Bank munkatársai a neked megfelelő napszakban veszik fel veled a kapcsolatot. A becslés a hirdető által megadott adatokon alapul. A jelen tájékoztatás nem minősül ajánlattételnek és nem teljes körű, az egyes feltételek a hitelbírálat eredményétől függően változhatnak. Kérjük, a részletekről tájékozódj az OTP Bank fiókjaiban vagy az OTP Bank honlapján közzétett vonatkozó Üzletszabályzatokból és Hirdetményekből.
Vedd fel a kapcsolatot a hirdetővel
+36 30 731 6
Vedd fel a kapcsolatot a hirdetővel
+36 30 731 6
UI_KIT.CHARACTER_COUNTER__COMPONENT.ACTUAL_CHARACTER__SR_ONLY UI_KIT.CHARACTER_COUNTER__COMPONENT.MAXIMUM_CHARACTER__SR_ONLY
Hasonló eladó ingatlanok Budapest III. kerületben
Frissítve: 5 napja
12
319,99 millió Ft 1,73 millió Ft/m²
Eladó lakás, Budapest III. kerület

Frissítve: 13 napja
20
310 millió Ft 1,68 millió Ft/m²
Eladó lakás, Budapest III. kerület, Testvérhegy - Farkastorok
Feltöltve: 11 napja
13
326 millió Ft 1,96 millió Ft/m²
Eladó lakás, Budapest III. kerület


Fedezd fel a
hasonló lakásokat!Még további lakások Budapest III. kerületben 319 M Ft körüli értékben
Tovább a hirdetésekhez Frissítve: 10 napja
20
326 millió Ft 1,96 millió Ft/m²
Eladó lakás, Budapest III. kerület

Frissítve: 21 napja
20
308,92 millió Ft 2,43 millió Ft/m²
Eladó lakás, Budapest III. kerület

Frissítve: 12 napja
20
308,92 millió Ft 2,43 millió Ft/m²
Eladó lakás, Budapest III. kerület, Tarhos utca

