+11 fotó
Hirdetéskód: 8982639
Referenciaszám: 7324
Feltöltve: 2 napja
Budapest IV. kerület eladó téglalakás 2 szobás: 67,9 millió Ft
67,9 millió Ft
2 szoba
2. emelet
Leírás
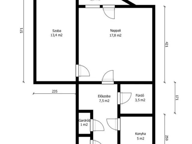
Elhelyezkedése: Társasház Emeleti elhelyezkedés: Emeleten Emelet száma: 2 Épület emeleteinek száma: 3 Tájolása: észak-keleti tájolású Állapota: Jó Komfort besorolása: összkomfortos Építési éve: 2000 Alapterülete: 52 m2 Szobák száma: 2szoba Közművek: Gáz, Víz, Villany, Csatorna Fűtés típusa: Cirkó Homlokzat állapot: Jó Építési mód: Tégla Parkolási lehetőség: Parkolóban Kilátás: Utcafronti kilátás Jellemzői: Alacsony rezsi, Csendes környék, Jó közlekedés Energetikai besorolás: Nincs adat Egyéb jellemzők: Erkély Terhelések: Tehermentes ingatlan Eladásra vonatkozó információk: Azonnal beköltözhető
4. kerületben, Fóti úton eladó egy 2.emeleti, jó állapotú, 52 m2, 2 szobás, erkélyes (2,5 m2) világos, utcára és belső udvarra néző, világos lakás lakás.
A lakásban 2026-ban történt egy tisztasági festés.
A 2000-ben téglából épült társasház 3 emeletes és 10 lakásos, mely folyamatosan karban- és tisztán tartott. Lift nincs.
A lakás főbb jellemzői:
- tehermentes
- azonnal birtokba vehető
- ÉK-i és DNy-i fekvés
- beépített konyha gépekkel (tűzhely, sütő, hűtőszekrény)
- erkély (2,5 m2)
- kádas fürdő
- ablakos konyha
- gardrób
- külön WC
- minden egyedileg mérhető
- alacsony rezsi
Fűtés: cirkó kazán (átalány 6.000 Ft/hó)
Közös költség: 17.100 Ft/hó
A lakáshoz tartozik az udvari szinten egy autóbeálló, melyet a vételár tartalmaz.
Közlekedés: buszok (30, 30A, 96, 122E, 147, 196, 220, 230) éjszakai járat (930) pár percen belül elérhetőek.
További információért kérem, hívjon bizalommal, majd nézze meg személyesen, és tegyen egy ajánlatot!
Tulajdonságok
Téglalakás
3
Jó állapotú
2000
Nem adta meg a hirdető
Vedd fel a kapcsolatot a hirdetővel
+36 30 333 6
Hitelkalkulátor
Második évtől
292 211 Ft A 13. hónaptól
7,99%
Végig fix Futamidő: 20 év Banki visszahívás
Az OTP Bank munkatársai a neked megfelelő napszakban veszik fel veled a kapcsolatot. A becslés a hirdető által megadott adatokon alapul. A jelen tájékoztatás nem minősül ajánlattételnek és nem teljes körű, az egyes feltételek a hitelbírálat eredményétől függően változhatnak. Kérjük, a részletekről tájékozódj az OTP Bank fiókjaiban vagy az OTP Bank honlapján közzétett vonatkozó Üzletszabályzatokból és Hirdetményekből.
Vedd fel a kapcsolatot a hirdetővel
+36 30 333 6
Vedd fel a kapcsolatot a hirdetővel
+36 30 333 6
UI_KIT.CHARACTER_COUNTER__COMPONENT.ACTUAL_CHARACTER__SR_ONLY UI_KIT.CHARACTER_COUNTER__COMPONENT.MAXIMUM_CHARACTER__SR_ONLY
Hasonló eladó ingatlanok Újpest városrészben
Frissítve: 3 napja
20
67 millió Ft 1,31 millió Ft/m²
Eladó lakás, Budapest IV. kerület, Újpest

Frissítve: 3 napja
14
67,9 millió Ft 1,26 millió Ft/m²
Eladó lakás, Budapest IV. kerület, Újpest

Frissítve: -1 napja
20
73,9 millió Ft 1,39 millió Ft/m²
Eladó lakás, Budapest IV. kerület, Újpest


Fedezd fel a
hasonló lakásokat!Még további lakások Budapest IV. kerület, Újpest városrészben 67,9 M Ft körüli értékben
Tovább a hirdetésekhez Frissítve: 18 napja
20
73,9 millió Ft 1,39 millió Ft/m²
Eladó lakás, Budapest IV. kerület, Újpest

Frissítve: 5 napja
18
68,9 millió Ft 1,41 millió Ft/m²
Eladó lakás, Budapest IV. kerület, Újpest

Frissítve: 18 napja
20
69,5 millió Ft 1,29 millió Ft/m²
Eladó lakás, Budapest IV. kerület, Újpest
