+17 fotó
Hirdetéskód: 8880528
Referenciaszám: 392444
Feltöltve: 1 napja
Budapest IX. kerület eladó téglalakás 3 szobás: 125 millió Ft
125 millió Ft
1 712 329 Ft/m²
73 m²
3 szoba
5. emelet
Eladó téglalakás Budapest, IX. kerület, 73nm, 125.000.000Ft - Üllői út
Felújított lakás, két külön lakóegységgel ( kérésre visszaalakítható) a Kálvin térnél!
Eladásra kínálunk a IX. kerület szívében, a Kálvin tér közvetlen közelében, egy teljes körűen felújított, 73 m²-es, napfényes, 5. emeleti lakást.
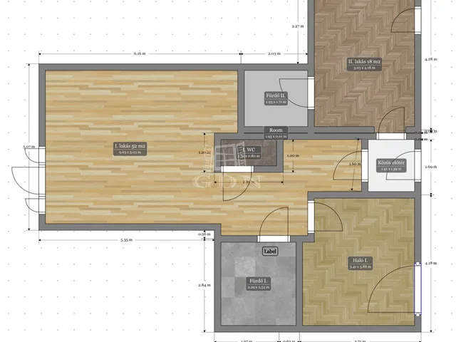
Az ingatlan jelenleg két különálló lakóegységből áll, de igény esetén átadásig visszaalakítjuk nappali + 2 hálós lakássá.
18 m²-es stúdiólakás
52 m²-es, nappali + hálós lakás
Főbb jellemzők:
Frissen felújított, minőségi anyagokkal, esztétikus és funkcionális kialakítással
Beépített, gépesített konyhák mindkét lakóegységben
Modern, energiatakarékos hűtő-fűtő klímák biztosítják az évszaknak megfelelő komfortot
Külön víz- és villanyórák, alacsony fenntartási költségek.
Elhelyezkedés és közlekedés:
Kiváló lokáció a Kálvin térnél – közvetlen közelben a belvárosi egyetemek (ELTE, Corvinus, BME)
Pár perc sétára: M3-as metró, 4-6-os villamos, troli-, busz- és reptéri járatok
A környék bőséges kulturális, gasztronómiai és kereskedelmi kínálattal rendelkezik
A központi elhelyezkedés ellenére csendes és nyugodt lakókörnyezet.
További információért, megtekintési időpont egyeztetéséhez keressen bizalommal! ...TOVÁBBI, TÖBBEZRES INGATLAN KÍNÁLAT: www.gdn-ingatlan.hu - GDN azonosító: 392444
Tulajdonságok
Téglalakás
Felújított
Elektromos
1980
3 m²
Nem adta meg a hirdető
Vedd fel a kapcsolatot a hirdetővel
+36 30 324 6
Hitelkalkulátor
Második évtől
537 943 Ft A 13. hónaptól
7,99%
Végig fix Futamidő: 20 év Banki visszahívás
Az OTP Bank munkatársai a neked megfelelő napszakban veszik fel veled a kapcsolatot.Hitelfelvétel esetén akár egy héttel rövidebb lehet az ügyintézés.
Ez az ingatlan a nálunk meglévő adatok alapján azonnali értékbecslésre alkalmas lehet.
A becslés a hirdető által megadott adatokon alapul. A jelen tájékoztatás nem minősül ajánlattételnek és nem teljes körű, az egyes feltételek a hitelbírálat eredményétől függően változhatnak. Kérjük, a részletekről tájékozódj az OTP Bank fiókjaiban vagy az OTP Bank honlapján közzétett vonatkozó Üzletszabályzatokból és Hirdetményekből.
Vedd fel a kapcsolatot a hirdetővel
+36 30 324 6
Vedd fel a kapcsolatot a hirdetővel
+36 30 324 6
UI_KIT.CHARACTER_COUNTER__COMPONENT.REMAINING_SPACE__SR_ONLYUI_KIT.CHARACTER_COUNTER__COMPONENT.MAXIMUM_CHARACTER__SR_ONLY
Hasonló eladó ingatlanok Budapest IX. kerületben
Frissítve: 4 hónapja
5
Parkville Residences
117,04 M Ft 1 648 451 Ft/m²
Eladó lakás, Budapest IX. kerület
Frissítve: 9 napja
20
134,9 M Ft 1 873 611 Ft/m²
Eladó lakás, Budapest IX. kerület

Frissítve: ma
18
120 M Ft 2 105 263 Ft/m²
Eladó lakás, Budapest IX. kerület


Fedezd fel a
hasonló lakásokat!Még további lakások Budapest IX. kerületben 125 M Ft körüli értékben
Tovább a hirdetésekhez Frissítve: 9 napja
20
134,9 M Ft 1 873 611 Ft/m²
Eladó lakás, Budapest IX. kerület

Frissítve: 12 napja
7
130 M Ft 1 529 412 Ft/m²
Eladó lakás, Budapest IX. kerület

Frissítve: 3 napja
19
125 M Ft 1 041 667 Ft/m²
Eladó lakás, Budapest IX. kerület

