+15 fotó
Hirdetéskód: 8974633
Referenciaszám: H516265
Feltöltve: 2 napja
Budapest V. kerület eladó téglalakás 4 szobás: 290 millió Ft
290 millió Ft
1 534 391 Ft/m²
189 m²
4 szoba
3. emelet
ELEGÁNS, NAGYPOLGÁRI LAKÁS AZ V. KERÜLETBEN!
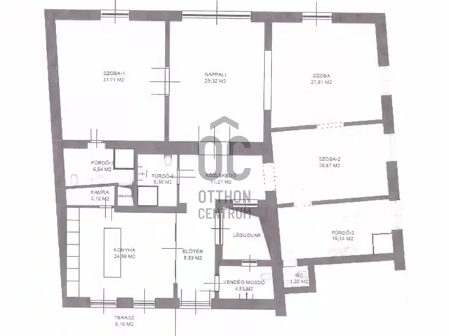
Budapest V. kerületének egyik legpatinásabb részén, a Sörház utcában kínálunk megvételre egy valóságban 189 m² (tulajdoni lapon 174 m²-es), 4 szobás, 3 fürdőszobás, liftes társasházban található, kiváló adottságú nagypolgári lakást, amely a klasszikus eleganciát ötvözi a tágas, jól alakítható terekkel.
A lakás előtti függő folyosón kialakítható egy intim 8 m²-es teraszrész.
Az ingatlan egyik legkiemelkedőbb jellemzője a lenyűgöző, 4 méteres belmagasság, amely páratlan térérzetet és világosságot biztosít. A lakás elosztása kiváló: az 4 tágas szoba ( az ötödiket jelenleg átalakították fürdőszobának) ideális családi otthonnak, irodának vagy akár reprezentatív célokra is.
A lakás elegáns megjelenésű, igényes kialakítású, nagy terekkel rendelkezik, amelyek számos berendezési és átalakítási lehetőséget kínálnak. Az utcai nézetű helyiségek világosak, a keleti tájolás pedig kellemes természetes fényt biztosít a nap jelentős részében.
A lakáshoz tartozik egy 8,16 m²-es terasz, amely ritkaságnak számít a belvárosi ingatlanok között, és ideális helyszín egy nyugodt kávézáshoz vagy pihenéshez.
Az épület liftes, rendezett állapotú, amely tovább növeli a komfortérzetet.
Az ingatlan per- és tehermentes, így azonnal költözhető, ami különösen nagy előnyt jelent.
A lokáció kivételes: Belváros Budapest egyik legértékállóbb és legkeresettebb része, ahol minden karnyújtásnyira elérhető – éttermek, kávézók, üzletek, kulturális intézmények, valamint kiváló közlekedési kapcsolatok. A Duna-part, sétálóutcák és a város ikonikus helyszínei mind néhány perc alatt megközelíthetők.
Ez az ingatlan ideális választás mindazok számára, akik egy nagyvonalú, elegáns, kiváló elhelyezkedésű lakást keresnek Budapest szívében – akár saját célra, akár befektetésként.
Egyedi igényekre szabott lakáshitelekkel állunk rendelkezésére. Bankfüggetlen Hitelcentrumunk az országban elérhető összes bank és hitelintézet ajánlatát versenyezteti az Ön számára díjmentesen. Munkatársaink nagy szakmai tapasztalattal, teljes körű CSOK Plusz és Otthon Start Program ügyintézéssel várják Önt előre egyeztetett időpontban, akár a normál munkaidő után is.
Tulajdonságok
Téglalakás
Gázkazán
1900
Nem adta meg a hirdető
Vedd fel a kapcsolatot a hirdetővel
+36 70 465 6
Hitelkalkulátor
Második évtől
1 248 028 Ft A 13. hónaptól
7,99%
Végig fix Futamidő: 20 év Banki visszahívás
Az OTP Bank munkatársai a neked megfelelő napszakban veszik fel veled a kapcsolatot. A becslés a hirdető által megadott adatokon alapul. A jelen tájékoztatás nem minősül ajánlattételnek és nem teljes körű, az egyes feltételek a hitelbírálat eredményétől függően változhatnak. Kérjük, a részletekről tájékozódj az OTP Bank fiókjaiban vagy az OTP Bank honlapján közzétett vonatkozó Üzletszabályzatokból és Hirdetményekből.
Vedd fel a kapcsolatot a hirdetővel
+36 70 465 6
Vedd fel a kapcsolatot a hirdetővel
+36 70 465 6
UI_KIT.CHARACTER_COUNTER__COMPONENT.ACTUAL_CHARACTER__SR_ONLY UI_KIT.CHARACTER_COUNTER__COMPONENT.MAXIMUM_CHARACTER__SR_ONLY
Hasonló eladó ingatlanok Belváros városrészben
Frissítve: 12 napja
13
318 M Ft 2 650 000 Ft/m²
Eladó lakás, Budapest V. kerület, Belváros
Frissítve: 12 napja
9
294 M Ft 2 450 000 Ft/m²
Eladó lakás, Budapest V. kerület, Belváros

Frissítve: 12 napja
12
292 M Ft 2 000 000 Ft/m²
Eladó lakás, Budapest V. kerület, Belváros


Fedezd fel a
hasonló lakásokat!Még további lakások Budapest V. kerület, Belváros városrészben 290 M Ft körüli értékben
Tovább a hirdetésekhez Frissítve: 12 napja
20
265 M Ft 2 676 768 Ft/m²
Eladó lakás, Budapest V. kerület, Belváros, Szervita tér

Frissítve: 12 napja
20
274 M Ft 2 712 871 Ft/m²
Eladó lakás, Budapest V. kerület, Belváros, Múzeum körút

Frissítve: 12 napja
15
274 M Ft 2 712 871 Ft/m²
Eladó lakás, Budapest V. kerület, Belváros

