

+8 fotó
Hirdetéskód: 8739829
Referenciaszám: 388284
Feltöltve: 2 napja
Budapest VI. kerület eladó téglalakás 4 szobás: 139 millió Ft
139 millió Ft
1 299 065 Ft/m²
107 m²
4 szoba
1. emelet
Eladó téglalakás Budapest, VI. kerület, 107nm, 139.000.000Ft - Csengery utca
Eladó elegáns, felújított nagypolgári lakás Budapest szívében
Budapest belvárosában, a VI. kerület egyik legkedveltebb részén kínálunk megvételre egy ízlésesen felújított, 1. emeleti, tágas polgári lakást.
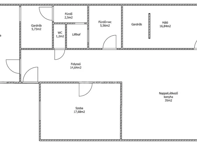
Az ingatlan 107 négyzetméteres, nappalival és 3 külön nyíló szobával rendelkezik, így ideális családok, befektetők vagy akár irodai célra is.
A lakás teljes körű felújításon esett át, modern burkolatokkal, minőségi anyagokkal és harmonikus színvilággal. A terek világosak, jól tagoltak, a klasszikus polgári hangulat és a modern kényelem tökéletes összhangban van.
A társasház rendezett, a környék kiváló infrastruktúrával rendelkezik – néhány perc sétára található az Andrássy út, éttermek, kávézók, kulturális központok és tömegközlekedési csomópontok.
Főbb jellemzők:
Alapterület: 107 m²
Emelet: 1.
Elrendezés: nappali + 3 külön nyíló szoba
Teljeskörű felújítás
Igényes, modern kialakítás
Kiváló lokáció a belváros szívében
Ez a lakás igazi ritkaság a piacon — egyedülálló lehetőség, ha eleganciát és kényelmet keres Budapest központjában! ...TOVÁBBI, TÖBBEZRES INGATLAN KÍNÁLAT: www.gdn-ingatlan.hu - GDN azonosító: 388284
Tulajdonságok
Téglalakás
Felújított
Gázkazán
1970
F
Vedd fel a kapcsolatot a hirdetővel
+36 70 704 3
Hitelkalkulátor
Második évtől
598 193 Ft A 13. hónaptól
7,99%
Végig fix Futamidő: 20 év Banki visszahívás
Az OTP Bank munkatársai a neked megfelelő napszakban veszik fel veled a kapcsolatot.Hitelfelvétel esetén akár egy héttel rövidebb lehet az ügyintézés.
Ez az ingatlan a nálunk meglévő adatok alapján azonnali értékbecslésre alkalmas lehet.
A becslés a hirdető által megadott adatokon alapul. A jelen tájékoztatás nem minősül ajánlattételnek és nem teljes körű, az egyes feltételek a hitelbírálat eredményétől függően változhatnak. Kérjük, a részletekről tájékozódj az OTP Bank fiókjaiban vagy az OTP Bank honlapján közzétett vonatkozó Üzletszabályzatokból és Hirdetményekből.
Vedd fel a kapcsolatot a hirdetővel
+36 70 704 3
Vedd fel a kapcsolatot a hirdetővel
+36 70 704 3
UI_KIT.CHARACTER_COUNTER__COMPONENT.REMAINING_SPACE__SR_ONLYUI_KIT.CHARACTER_COUNTER__COMPONENT.MAXIMUM_CHARACTER__SR_ONLY
Hasonló eladó ingatlanok Budapest VI. kerületben
Frissítve: 17 napja

20
149 M Ft 1 520 408 Ft/m²
Eladó lakás, Budapest VI. kerület, Bajcsy-Zsilinszky út

Frissítve: 3 napja

7
130 M Ft 1 368 421 Ft/m²
Eladó lakás, Budapest VI. kerület, Király utca
Frissítve: 16 napja

12
136 M Ft 1 088 000 Ft/m²
Eladó lakás, Budapest VI. kerület


Fedezd fel a
hasonló lakásokat!Még további lakások Budapest VI. kerületben 139 M Ft körüli értékben
Tovább a hirdetésekhez Frissítve: 17 napja

20
130 M Ft 1 313 131 Ft/m²
Eladó lakás, Budapest VI. kerület, Szondi utca

Frissítve: 14 napja

20
N25
130,28 M Ft 2 285 684 Ft/m²
Eladó lakás, Budapest VI. kerület

Frissítve: 10 napja

17
139,25 M Ft 1 832 171 Ft/m²
Eladó lakás, Budapest VI. kerület


Töltsd fel hirdetésed ingyenesen!
Egyszerű