+17 fotó
Hirdetéskód: 8917234
Referenciaszám: 393309
Frissítve: 14 napja
Budapest VII. kerület eladó téglalakás 3 szobás: 80,9 millió Ft
80,9 millió Ft
1,33 millió Ft/m²
61 m²
3 szoba
2. emelet
Eladó téglalakás Budapest, VII. kerület, 61nm, 80.900.000Ft - Ligetváros
Modern igényesen felújított lakás eladó!
Két lakássá alakított ingatlan " A" jelű lakását kínáljuk megvételre a Damjanich utca kedvelt részén, liftes ház 2. emeletén.
Az ingatlan teljeskörűen felújított, minőségi bútorokkal és gépekkel berendezett, minden részletét gondosan megtervezték.
A lakás világos, tágas érzetet nyújt, minden helyiségén ablak van.
Használati megosztással kerül értékesítésre.
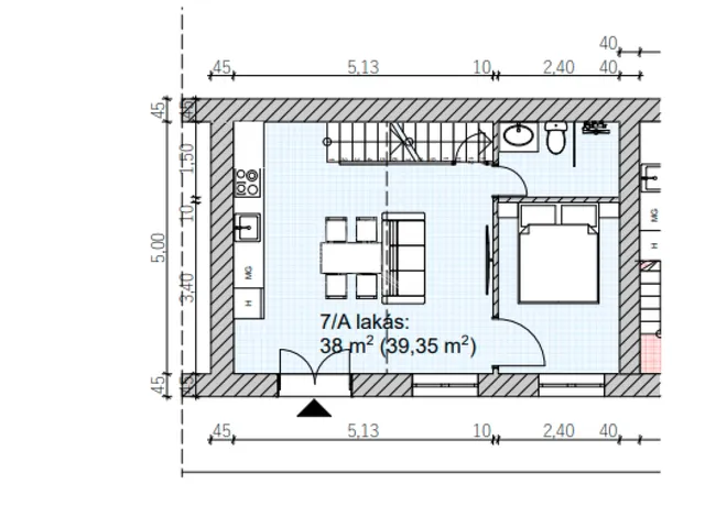
" A"- lakás rendkívül jó beosztású, hasznos alapterülete 61 nm.
- alapterület 38 nm.
- beosztása:
- előtér,
- konyha + étkező + nappali,
- hálószoba,
- fürdőszoba +WC,
- teljesértékű galéria 23 nm.
- beosztása:
- hálószoba,
- gardrób szoba,
Ebben a lakásban a fűtés gáz Mika kazánnal történik +1 db hűtő-fűtő klíma van.
A fűtés, villanybojler, redőnyök, lámpák, mosógép távolról vezérelhető.
A konyhák gépesítettek.
A lakás külön mérőórákkal rendelkezik.
Az ingatlan befektetésnek is kíváló, könnyen kiadható az Állatorvosi Egyetem és a turisztikai látványosságok közelsége miatt.
A környék rendkívül kedvelt, a Városliget, a Hősök tere és az Andrássy út néhány perc sétával elérhető.
Amivel segítjük az Ön ingatlanvásárlását:
- ingyenes hitelügyintézés,
- jogi háttér,
- földhivatali ügyintézés,
- energetikai tanúsítvány,
- a vevő számára az ingatlanközvetítés ingyenes.
Irodánk 30 éves szakmai tapasztalattal áll ügyfelei rendelkezésére!
Várom szíves megkeresését! ...TOVÁBBI, TÖBBEZRES INGATLAN KÍNÁLAT: www.gdn-ingatlan.hu - GDN azonosító: 393309
Tulajdonságok
Téglalakás
Felújított
Gáz (héra)
1950
Nem adta meg a hirdető
Vedd fel a kapcsolatot a hirdetővel
+36 70 269 5
Hitelkalkulátor
Második évtől
348 157 Ft A 13. hónaptól
7,99%
Végig fix Futamidő: 20 év Banki visszahívás
Az OTP Bank munkatársai a neked megfelelő napszakban veszik fel veled a kapcsolatot.Hitelfelvétel esetén akár egy héttel rövidebb lehet az ügyintézés.
Ez az ingatlan a nálunk meglévő adatok alapján azonnali értékbecslésre alkalmas lehet.
A becslés a hirdető által megadott adatokon alapul. A jelen tájékoztatás nem minősül ajánlattételnek és nem teljes körű, az egyes feltételek a hitelbírálat eredményétől függően változhatnak. Kérjük, a részletekről tájékozódj az OTP Bank fiókjaiban vagy az OTP Bank honlapján közzétett vonatkozó Üzletszabályzatokból és Hirdetményekből.
Vedd fel a kapcsolatot a hirdetővel
+36 70 269 5
Vedd fel a kapcsolatot a hirdetővel
+36 70 269 5
UI_KIT.CHARACTER_COUNTER__COMPONENT.ACTUAL_CHARACTER__SR_ONLY UI_KIT.CHARACTER_COUNTER__COMPONENT.MAXIMUM_CHARACTER__SR_ONLY
Hasonló eladó ingatlanok Ligetváros városrészben
Frissítve: 2 hónapja
20
75 millió Ft 1,25 millió Ft/m²
Eladó lakás, Budapest VII. kerület, Ligetváros
Frissítve: 1 éve
1
80 millió Ft 1,18 millió Ft/m²
Eladó lakás, Budapest VII. kerület, Ligetváros
Frissítve: 14 napja
20
87,5 millió Ft 841,3 ezer Ft/m²
Eladó lakás, Budapest VII. kerület, Ligetváros


Fedezd fel a
hasonló lakásokat!Még további lakások Budapest VII. kerület, Ligetváros városrészben 80,9 M Ft körüli értékben
Tovább a hirdetésekhez Frissítve: 14 napja
17
84,9 millió Ft 1,29 millió Ft/m²
Eladó lakás, Budapest VII. kerület, Ligetváros

Frissítve: 1 hónapja
1
78 millió Ft 2,36 millió Ft/m²
Eladó lakás, Budapest VII. kerület, Ligetváros, Dózsa György út 10.
Frissítve: 19 napja
1
75 millió Ft 1,63 millió Ft/m²
Eladó lakás, Budapest VII. kerület, Ligetváros, Bajza, 1
