+1 fotó
Hirdetéskód: 8873731
Referenciaszám: M319363-5138593
Frissítve: 1 hónapja
Budapest VII. kerület eladó téglalakás 2 szobás: 81,14 millió Ft
81,14 millió Ft
1 979 067 Ft/m²
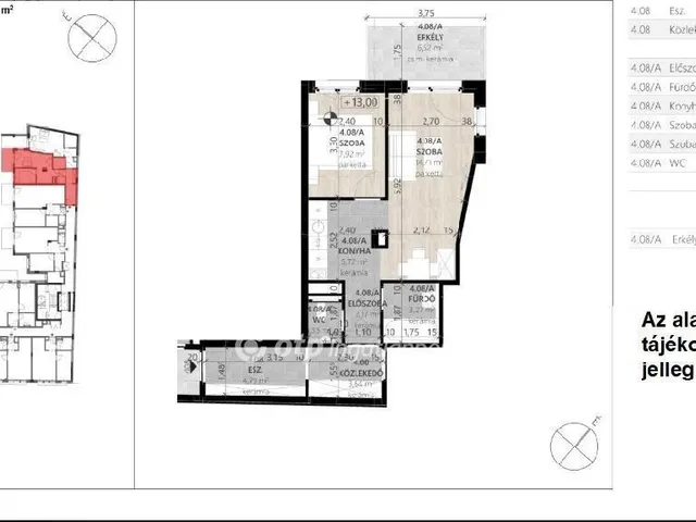
41 m²
2 szoba
4. emelet
Eladó Lakás, Budapest 7. ker.
ÉRTÉKÁLLÓSÁG, KORSZERŰSÉG, GAZDASÁGOSSÁG, KIVÁLÓ BEFEKTETÉS. Könnyű megközelíthetőséggel, kiváló infrastruktúra mellett a 7. kerületben Erzsébetváros szívében kínálunk újépítésű, kiemelkedő minőségű 2, - 3 szobás, teraszos lakásokat. Hőszivattyúss fűtés/hűtés rendszerű a társasház, itt a rezsiárak emelkedése nem befolyásolja a fűtési díjat.. Ezeket a lakásokat azoknak ajánljuk, akiknek fontos az energiatakarékosság és a környezetkímélő élet. A belvárosi élet kedvelőinek ideális lakhatási lehetőséget kínál, túristáknak remek szálláslehetőség, így értékálló befektetésnek is remek választás. Köszönöm megtisztelő figyelmét. Amennyiben jelenlegi ingatlana értékesítésében is segítségére lehetek, illetve az OTP teljes ingatlankínálatával kapcsolatban kérem forduljon hozzám bizalommal. Az OTP Ingatlanpont, mint egyetlen közvetlen banki hátterű ingatlanközvetítő társaság teljes körű ügyintézéssel áll eladóik és vevőik rendelkezésére! Piaci és kedvezményes hitel- valamint lízingkonstrukciókat kínálunk mint lakásvásárlási hitel, szabad felhasználású hitel, babaváró hitel, CSOK Plusz-intézés, Otthonfelújítási Támogatás, egyéb felújítási hitelek. Az adásvételi szerződés megkötéséhez igény szerint megbízható ügyvédi közreműködést is biztosítunk. Ha felkeltettem érdeklődését, ne habozzon keresni a hét bármely napján reggel 9 és este 9 között. Ügyfeleinknek minden szolgáltatásunk (valóban) díjmentes. WE SPEAK ENGLISH, FEEL FREE TO CALL ME!
81141730 Ft
Referencia szám: M319363
Tulajdonságok
Téglalakás
Új építésű
Hőszivattyú
2025
A
Vedd fel a kapcsolatot a hirdetővel
Sasaran-Kereki Katalin OTPip - Budapest VIII. kerület József körút 72 - OTP Ingatlanpont Iroda Az iroda összes hirdetése
+36 30 353 3
Hitelkalkulátor
Második évtől
349 197 Ft A 13. hónaptól
7,99% 8,49%
Végig fix Futamidő: 20 év Banki visszahívás
Az OTP Bank munkatársai a neked megfelelő napszakban veszik fel veled a kapcsolatot.Hitelfelvétel esetén akár egy héttel rövidebb lehet az ügyintézés.
Ez az ingatlan a nálunk meglévő adatok alapján azonnali értékbecslésre alkalmas lehet.
A becslés a hirdető által megadott adatokon alapul. A jelen tájékoztatás nem minősül ajánlattételnek és nem teljes körű, az egyes feltételek a hitelbírálat eredményétől függően változhatnak. Kérjük, a részletekről tájékozódj az OTP Bank fiókjaiban vagy az OTP Bank honlapján közzétett vonatkozó Üzletszabályzatokból és Hirdetményekből.
Vedd fel a kapcsolatot a hirdetővel
Sasaran-Kereki Katalin OTPip - Budapest VIII. kerület József körút 72 - OTP Ingatlanpont Iroda Az iroda összes hirdetése
+36 30 353 3
Vedd fel a kapcsolatot a hirdetővel
Sasaran-Kereki Katalin OTPip - Budapest VIII. kerület József körút 72 - OTP Ingatlanpont Iroda Az iroda összes hirdetése
+36 30 353 3
UI_KIT.CHARACTER_COUNTER__COMPONENT.ACTUAL_CHARACTER__SR_ONLY UI_KIT.CHARACTER_COUNTER__COMPONENT.MAXIMUM_CHARACTER__SR_ONLY
Hasonló eladó ingatlanok Budapest VII. kerületben
Frissítve: ma
13
230 000 Euro
86,25 M Ft 1 796 875 Ft/m²
Eladó lakás, Budapest VII. kerület

Frissítve: 30 napja
7
83 M Ft 1 886 364 Ft/m²
Eladó lakás, Budapest VII. kerület

Frissítve: 27 napja
7
85 M Ft 1 103 896 Ft/m²
Eladó lakás, Budapest VII. kerület


Fedezd fel a
hasonló lakásokat!Még további lakások Budapest VII. kerületben 81,14 M Ft körüli értékben
Tovább a hirdetésekhez Frissítve: 1 napja
12
85 M Ft 1 931 818 Ft/m²
Eladó lakás, Budapest VII. kerület

Frissítve: 13 napja
12
85 M Ft 1 931 818 Ft/m²
Eladó lakás, Budapest VII. kerület

Frissítve: ma
7
85 M Ft 1 103 896 Ft/m²
Eladó lakás, Budapest VII. kerület


