+17 fotó
Hirdetéskód: 8886439
Referenciaszám: M320126-5145692
Frissítve: 1 hónapja
Budapest VII. kerület eladó téglalakás 2 szobás: 104,9 millió Ft
104,9 millió Ft
1,1 millió Ft/m²
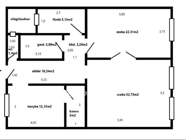
95 m²
2 szoba
földszint
Eladó Lakás, Budapest 7. ker.
Budapest VII. kerületében, Ligetvárosban 95 m2-es lakás ELADÓ!
A VII. kerület közkedvelt részen, a Damjanich utcában kínálunk eladásra egy magasföldszinti, 95 m2-es lakást.
Az ingatlan egy téglaépítésű, liftes társasház magasföldszintjén helyezkedik el, a ház kívül-belül rendkívül jó állapotú, rendszeresen karbantartott, jó lakóközösséggel és közös képviselettel rendelkezik.
A lakás jelenleg 2 szobás, azonban könnyen 3 szobássá alakítható, ezzel is növelve az életteret. Minden helysége tágas, külön nyíló.
Állapotát tekintve felújításra szorul, új tulajdonosa saját ízlése szerint alakíthatja.
Utcai nézetének és K-i tájolásának köszönhetően kimondottan világos.
Mind saját, mind befektetési céllal jó választás lehet, hiszen a környék kimondottan jó infrastruktúrával rendelkezik. Az utcában több bevásárlási lehetőség, étterem is található.
Pár perc séta távolságon belül több tömeg közlekedni eszköz is elérhető, buszmegálló, troli.
A Városliget is csupán 10 perc sétára található.
Tehermentes, 1/1-es tulajdonjogú.
Rugalmasan megtekinthető.
Kérdés esetén forduljon hozzám bizalommal, a hét bármely napján!
104900000 Ft
Referencia szám: M320126
Tulajdonságok
Téglalakás
Felújítandó
Gáz (konvektor)
1896
D
Vedd fel a kapcsolatot a hirdetővel
Sasaran-Kereki Katalin
OTPip - Budapest VIII. kerület József körút 72 - OTP Ingatlanpont Iroda
Az iroda összes hirdetése +36 30 353 3
Hitelkalkulátor
Második évtől
451 442 Ft A 13. hónaptól
7,99%
Végig fix Futamidő: 20 év Banki visszahívás
Az OTP Bank munkatársai a neked megfelelő napszakban veszik fel veled a kapcsolatot.Hitelfelvétel esetén akár egy héttel rövidebb lehet az ügyintézés.
Ez az ingatlan a nálunk meglévő adatok alapján azonnali értékbecslésre alkalmas lehet.
A becslés a hirdető által megadott adatokon alapul. A jelen tájékoztatás nem minősül ajánlattételnek és nem teljes körű, az egyes feltételek a hitelbírálat eredményétől függően változhatnak. Kérjük, a részletekről tájékozódj az OTP Bank fiókjaiban vagy az OTP Bank honlapján közzétett vonatkozó Üzletszabályzatokból és Hirdetményekből.
Vedd fel a kapcsolatot a hirdetővel
Sasaran-Kereki Katalin
OTPip - Budapest VIII. kerület József körút 72 - OTP Ingatlanpont Iroda
Az iroda összes hirdetése +36 30 353 3
Vedd fel a kapcsolatot a hirdetővel
Sasaran-Kereki Katalin
OTPip - Budapest VIII. kerület József körút 72 - OTP Ingatlanpont Iroda
Az iroda összes hirdetése +36 30 353 3
UI_KIT.CHARACTER_COUNTER__COMPONENT.ACTUAL_CHARACTER__SR_ONLY UI_KIT.CHARACTER_COUNTER__COMPONENT.MAXIMUM_CHARACTER__SR_ONLY
Hasonló eladó ingatlanok Budapest VII. kerületben
Frissítve: 2 napja
16
99,9 millió Ft 1,49 millió Ft/m²
Eladó lakás, Budapest VII. kerület

Frissítve: ma
20
105 millió Ft 2,5 millió Ft/m²
Eladó lakás, Budapest VII. kerület

Frissítve: 4 napja
20
114 millió Ft 1,37 millió Ft/m²
Eladó lakás, Budapest VII. kerület


Fedezd fel a
hasonló lakásokat!Még további lakások Budapest VII. kerületben 104,9 M Ft körüli értékben
Tovább a hirdetésekhez Frissítve: ma
20
113,9 millió Ft 850 ezer Ft/m²
Eladó lakás, Budapest VII. kerület

Frissítve: 11 napja
20
95 millió Ft 1,3 millió Ft/m²
Eladó lakás, Budapest VII. kerület

Frissítve: 27 napja
13
108 millió Ft 1,59 millió Ft/m²
Eladó lakás, Budapest VII. kerület

