+5 fotó
Hirdetéskód: 8785639
Referenciaszám: 3832714
Frissítve: ma
Budapest VIII. kerület eladó téglalakás 2 szobás: 92,6 millió Ft
92,6 millió Ft
1,97 millió Ft/m²
47 m²
2 szoba
4. emelet
Józsefvárosban új építésű lakások eladók!
Józsefvárosban a Csarnok negyedben – sétatávolságra a Harminckettesek terétől, de mégis csendes környezetben eladásra kínálunk új építésű ingatlanokat.
Magas minőségű kivitelezéssel 16 lakásos társasházban még 3 lakás és 1 üzlethelyiség várja leendő tulajdonosát a Teréz körút szomszédságában, közel a Corvin Plázához. A lakások méretei
47- 76 nm közöttiek, új fejlesztésű a mai kor igényeinek megfelelnek, saját otthonnak, mind értékálló befektetésnek is kiválóak. Változatos méretű két-, illetve három szobás kivitelben készülnek.
Az üzlethelyiség földszinti utcáról nyíló, 48 m2 alapterületű, amely alkalmas különböző szolgáltatásokra létesítésére ( pl. kávézó, szépségszalon stb. ) -
A lakások:
5. emelet 3 szobás 67,13 m2 + terasz 17,67 m2 - 150.000.000.-Ft (503-as)
5. emelet 2 szobás 47,65 m2 + terasz 11,24 m2 - 106.000.000.-Ft (502-es)
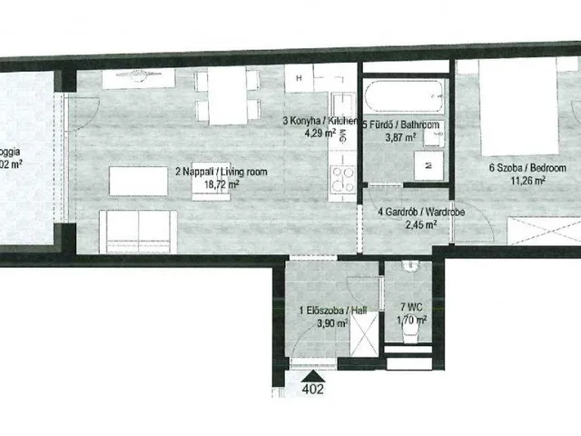
4. emelet 2 szobás 47,13 m2 + terasz 6,02 m2 - 92.600.000.-Ft (402-es)
Az épület az Óbudai Egyetem szomszédságában található. A Lovassy utca a VIII. kerületnek, a Csarnok negyedében jó elhelyezkedésű utcának számít: belváros közeli, jó elérhető infrastruktúrával, bevásárlási lehetőségekkel.
Éttermek, kávézók, helyi üzletek működnek a környéken. A lakók 15 percen belül minden, számukra fontos helyet el tudnak érni.
A lakások belső kialakításához, hideg-meleg burkolatokat, csaptelepeket a vásárlóink saját ízlésüknek megfelelően választhatják ki a megadott beszállítóktól.
Lakásaink a szerződés aláírását és az egyedi igények véglegesítését követően 2026. nyarán (6 hónapon belül) költözhetők.
Érdeklődése esetén állunk rendelkezésére!
Az ingatlan személyes megtekintése előtt bővebb felvilágosítást adunk, az ingatlan megtekintését kérésére megszervezzük.
Tulajdonságok
Téglalakás
1
Építés alatt
Házközponti fűtés egyedi méréssel
Nem adta meg a hirdető
Vedd fel a kapcsolatot a hirdetővel
Jelen Erika Az iroda összes hirdetése
+36 70 947 4
Hitelkalkulátor
Második évtől
398 508 Ft A 13. hónaptól
7,99% 8,49%
Végig fix Futamidő: 20 év Banki visszahívás
Az OTP Bank munkatársai a neked megfelelő napszakban veszik fel veled a kapcsolatot.Hitelfelvétel esetén akár egy héttel rövidebb lehet az ügyintézés.
Ez az ingatlan a nálunk meglévő adatok alapján azonnali értékbecslésre alkalmas lehet.
A becslés a hirdető által megadott adatokon alapul. A jelen tájékoztatás nem minősül ajánlattételnek és nem teljes körű, az egyes feltételek a hitelbírálat eredményétől függően változhatnak. Kérjük, a részletekről tájékozódj az OTP Bank fiókjaiban vagy az OTP Bank honlapján közzétett vonatkozó Üzletszabályzatokból és Hirdetményekből.
Vedd fel a kapcsolatot a hirdetővel
Jelen Erika Az iroda összes hirdetése
+36 70 947 4
Vedd fel a kapcsolatot a hirdetővel
Jelen Erika Az iroda összes hirdetése
+36 70 947 4
UI_KIT.CHARACTER_COUNTER__COMPONENT.ACTUAL_CHARACTER__SR_ONLY UI_KIT.CHARACTER_COUNTER__COMPONENT.MAXIMUM_CHARACTER__SR_ONLY
Hasonló eladó ingatlanok Budapest VIII. kerületben
Frissítve: 1 hónapja
6
92,01 millió Ft 1,53 millió Ft/m²
Eladó lakás, Budapest VIII. kerület

Frissítve: 3 éve
1
93,9 millió Ft 894,3 ezer Ft/m²
Eladó lakás, Budapest VIII. kerület, Rákóczi tér
Frissítve: 1 hónapja
5
85,42 millió Ft 1,47 millió Ft/m²
Eladó lakás, Budapest VIII. kerület


Fedezd fel a
hasonló lakásokat!Még további lakások Budapest VIII. kerületben 92,6 M Ft körüli értékben
Tovább a hirdetésekhez Frissítve: 1 hónapja
6
92,01 millió Ft 1,53 millió Ft/m²
Eladó lakás, Budapest VIII. kerület

Frissítve: 1 hónapja
4
88,25 millió Ft 1,42 millió Ft/m²
Eladó lakás, Budapest VIII. kerület

Frissítve: 1 hónapja
4
93 millió Ft 1,31 millió Ft/m²
Eladó lakás, Budapest VIII. kerület

