+17 fotó
Hirdetéskód: 8892420
Referenciaszám: M320627-5151149
Frissítve: 3 napja
Budapest VIII. kerület eladó téglalakás 3+1 fél szobás: 100 millió Ft
100 millió Ft
943 396 Ft/m²
106 m²
3+1 fél szoba
3. emelet
Eladó Lakás, Budapest 8. ker.
Felújított, világos lakás a Corvin negyedben, 2 lakás egyben, Otthon Start támogatásra is alkalmas!
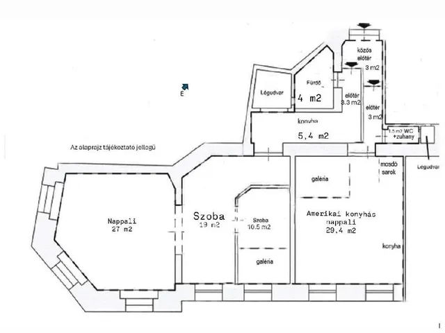
Budapest VIII. kerületében, a közkedvelt Corvin negyedben, a József körúton kínálunk megvételre egy 106 m²-es, 3+1 félszobás, felújított, világos, 3. emeleti lakást. Az ingatlan különlegessége, hogy jelenlegi kialakításának köszönhetően egyben és két külön lakásként is használható.
Egy közös bejáratról, de egymástól jól szeparálva található benne egy 35 m²-es garzon konyhával és fürdőszobával, valamint egy 71 m²-es, háromszobás lakás. Ez az elrendezés ideális lehet két generáció együttélésére, lakás-iroda kombinációra, de befektetési célra is kifejezetten előnyös, hiszen a két lakrész külön-külön vagy egyben is bérbe adható.
Az ingatlan 2024-ig több ütemben felújításon esett át, amely érintette a villany- és vízvezetékek cseréjét, a burkolatokat, a fűtés korszerűsítését, a konyhát, a szanitereket és a nyílászárókat is. Legutóbb kondenzációs kazán került beépítésre, amely modern és energiatakarékos fűtést biztosít. A lakás rendkívül világos, körbenapozott, hang- és hőszigetelt műanyag nyílászárókkal rendelkezik, a József körútra néző ablakok ellenére is kellemes komfortérzetet biztosítva. Két helyiségben, körülbelül 1,7 méteres belmagassággal, galéria növeli a hasznos életteret. Az egyedi burkolatok és a hangulatos világítás igényes, otthonos megjelenést kölcsönöznek a lakásnak.
A társasház rendezett, jó állapotú, lakóközössége kulturált. Az ingatlan 1/1 tulajdonban van, tehermentes, rövid időn belül birtokba vehető. A gépek, berendezések és bútorok vételára 10 millió forint, amely kötelezően megvásárolandó.
A kiváló elhelyezkedés és a remek közlekedés miatt az ingatlan befektetésként is kiemelkedő lehetőség, akár két teljesen szeparált lakásként történő hasznosítással. Az Otthon Start Program feltételeinek is megfelel, így kedvezményes finanszírozással is megvásárolható.
Amennyiben felkeltette érdeklődését ez a sokoldalúan hasznosítható, kiváló adottságú ingatlan, várom megtisztelő megkeresését.
Referenciaszám: M320627
Tulajdonságok
Téglalakás
Felújított
Gázkazán
1900
Nem adta meg a hirdető
Vedd fel a kapcsolatot a hirdetővel
Dr. Jakus Péter OTPip - Budapest IX. kerület Üllői út 21 - OTP Ingatlanpont Iroda Az iroda összes hirdetése
+36 30 426 7
Hitelkalkulátor
Második évtől
430 354 Ft A 13. hónaptól
7,99%
Végig fix Futamidő: 20 év Banki visszahívás
Az OTP Bank munkatársai a neked megfelelő napszakban veszik fel veled a kapcsolatot.Hitelfelvétel esetén akár egy héttel rövidebb lehet az ügyintézés.
Ez az ingatlan a nálunk meglévő adatok alapján azonnali értékbecslésre alkalmas lehet.
A becslés a hirdető által megadott adatokon alapul. A jelen tájékoztatás nem minősül ajánlattételnek és nem teljes körű, az egyes feltételek a hitelbírálat eredményétől függően változhatnak. Kérjük, a részletekről tájékozódj az OTP Bank fiókjaiban vagy az OTP Bank honlapján közzétett vonatkozó Üzletszabályzatokból és Hirdetményekből.
Vedd fel a kapcsolatot a hirdetővel
Dr. Jakus Péter OTPip - Budapest IX. kerület Üllői út 21 - OTP Ingatlanpont Iroda Az iroda összes hirdetése
+36 30 426 7
Vedd fel a kapcsolatot a hirdetővel
Dr. Jakus Péter OTPip - Budapest IX. kerület Üllői út 21 - OTP Ingatlanpont Iroda Az iroda összes hirdetése
+36 30 426 7
UI_KIT.CHARACTER_COUNTER__COMPONENT.ACTUAL_CHARACTER__SR_ONLY UI_KIT.CHARACTER_COUNTER__COMPONENT.MAXIMUM_CHARACTER__SR_ONLY
Hasonló eladó ingatlanok Budapest VIII. kerületben
Frissítve: ma
8
91,77 M Ft 1 292 518 Ft/m²
Eladó lakás, Budapest VIII. kerület

Frissítve: 7 napja
11
103 M Ft 1 661 290 Ft/m²
Eladó lakás, Budapest VIII. kerület

Frissítve: 13 napja
16
99 M Ft 755 725 Ft/m²
Eladó lakás, Budapest VIII. kerület, Üllői út


Fedezd fel a
hasonló lakásokat!Még további lakások Budapest VIII. kerületben 100 M Ft körüli értékben
Tovább a hirdetésekhez Frissítve: 3 napja
20
110 M Ft 924 370 Ft/m²
Eladó lakás, Budapest VIII. kerület

Frissítve: 7 napja
11
104 M Ft 1 677 419 Ft/m²
Eladó lakás, Budapest VIII. kerület

Frissítve: 3 napja
4
93 M Ft 1 309 859 Ft/m²
Eladó lakás, Budapest VIII. kerület

