+17 fotó
Hirdetéskód: 8925459
Referenciaszám: M320627-5171735
Frissítve: 16 napja
Budapest VIII. kerület eladó téglalakás 3+1 fél szobás: 108,5 millió Ft
108,5 millió Ft
1,02 millió Ft/m²
106 m²
3+1 fél szoba
3. emelet
Eladó Lakás, Budapest 8. ker.
***Felújított, világos lakás a Corvin negyedben! 2 lakás egyben (OTTHON START támogatásra is alkalmas!)***
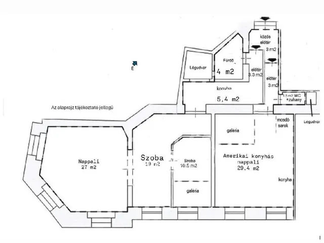
Budapest VIII. kerületében, a Corvin negyedben, a József körúton eladó egy 106 m2-es, 3+1 félszobás, felújított, világos, 3. emeleti lakás. Az ingatlan egyik különlegessége, hogy egyben és két külön lakásként is funkcionálhat.
Jelenleg egy közös bejáratról, de külön megközelíthetően található benne:
- egy 35 m2-es garzonlakás konyhával és fürdőszobával
- valamint egy 71 m2-es, 3 szobás lakás
Ez a kialakítás ideális lehet két generáció együttélésére, lakás-iroda kombinációra, illetve befektetési célra is, hiszen a lakrészek külön-külön vagy együtt is bérbe adhatók.
Műszaki és esztétikai jellemzők:
- A lakás 2024-ig több ütemben felújításon esett át (vezetékcsere, burkolatcsere, fűtéskorszerűsítés, konyhafelújítás, szaniterek, nyílászárók, stb.)
- Legutóbb kondenzációs kazáncsere történt, amely korszerű és hatékony fűtést biztosít
- Rendkívül világos, körbenapozott terek
- Hang- és hőszigetelt műanyag nyílászárók, a József körútra néző ablakokkal
- Két helyiségben galéria (kb. 1,7 m belmagassággal), amely tovább növeli a hasznos teret
- Ízléses, egyedi burkolatok és hangulatos csillárok
Társasház:
- Jó állapotú, rendezett ház
- Jó lakóközösség
Jogi helyzet:
-1/1 tulajdon
-Tehermentes
- Rövid időn belül költözhető
A gépek, berendezések, bútorok ára 10 mill. Ft, mely kötelezően megvásárolandó!
A kiváló elhelyezkedésnek és közlekedésnek köszönhetően az ingatlan befektetésre is kiváló, akár két teljesen szeparált lakásként is kiadható.
Amennyiben az ingatlan felkeltette az érdeklődését, kérem, vegye fel velem a kapcsolatot!
Referenciaszám: M320627
Tulajdonságok
Téglalakás
Felújított
Gázkazán
1900
Nem adta meg a hirdető
Vedd fel a kapcsolatot a hirdetővel
Bödör Dóra
OTPip - Budapest IX. kerület Üllői út 21 - OTP Ingatlanpont Iroda
Az iroda összes hirdetése +36 30 357 0
Hitelkalkulátor
Második évtől
466 935 Ft A 13. hónaptól
7,99%
Végig fix Futamidő: 20 év Banki visszahívás
Az OTP Bank munkatársai a neked megfelelő napszakban veszik fel veled a kapcsolatot.Hitelfelvétel esetén akár egy héttel rövidebb lehet az ügyintézés.
Ez az ingatlan a nálunk meglévő adatok alapján azonnali értékbecslésre alkalmas lehet.
A becslés a hirdető által megadott adatokon alapul. A jelen tájékoztatás nem minősül ajánlattételnek és nem teljes körű, az egyes feltételek a hitelbírálat eredményétől függően változhatnak. Kérjük, a részletekről tájékozódj az OTP Bank fiókjaiban vagy az OTP Bank honlapján közzétett vonatkozó Üzletszabályzatokból és Hirdetményekből.
Vedd fel a kapcsolatot a hirdetővel
Bödör Dóra
OTPip - Budapest IX. kerület Üllői út 21 - OTP Ingatlanpont Iroda
Az iroda összes hirdetése +36 30 357 0
Vedd fel a kapcsolatot a hirdetővel
Bödör Dóra
OTPip - Budapest IX. kerület Üllői út 21 - OTP Ingatlanpont Iroda
Az iroda összes hirdetése +36 30 357 0
UI_KIT.CHARACTER_COUNTER__COMPONENT.ACTUAL_CHARACTER__SR_ONLY UI_KIT.CHARACTER_COUNTER__COMPONENT.MAXIMUM_CHARACTER__SR_ONLY
Hasonló eladó ingatlanok Budapest VIII. kerületben
Frissítve: 14 napja
20
105,49 millió Ft 2,03 millió Ft/m²
Eladó lakás, Budapest VIII. kerület

Feltöltve: 19 napja
11
110 millió Ft 1,26 millió Ft/m²
Eladó lakás, Budapest VIII. kerület

Frissítve: 20 napja
20
105 millió Ft 1,81 millió Ft/m²
Eladó lakás, Budapest VIII. kerület


Fedezd fel a
hasonló lakásokat!Még további lakások Budapest VIII. kerületben 108,5 M Ft körüli értékben
Tovább a hirdetésekhez Frissítve: ma
20
109 millió Ft 1,01 millió Ft/m²
Eladó lakás, Budapest VIII. kerület

Frissítve: ma
15
110 millió Ft 1,67 millió Ft/m²
Eladó lakás, Budapest VIII. kerület

Frissítve: ma
20
114,9 millió Ft 1,47 millió Ft/m²
Eladó lakás, Budapest VIII. kerület

