+17 fotó
Hirdetéskód: 8988722
Feltöltve: ma
Budapest XI. kerület eladó téglalakás 3+1 fél szobás: 159 millió Ft
159 millió Ft
1,71 millió Ft/m²
93 m²
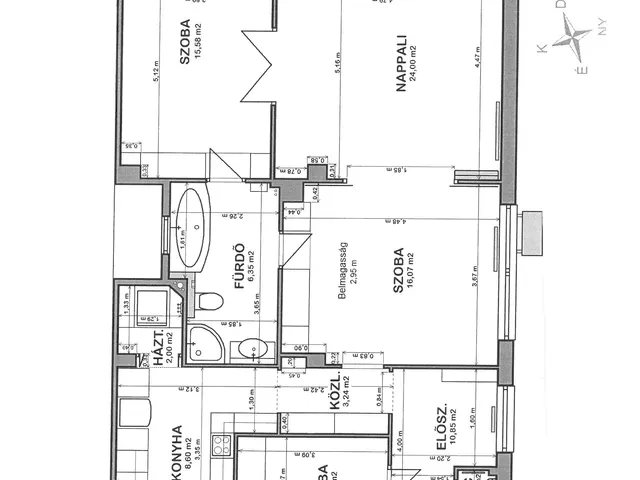
3+1 fél szoba
4. emelet
Leírás
XI. kerület szívében, a Feneketlen tó közelében elhelyezkedő, lakás eladó !
Budapest egyik legkeresettebb részén, a Feneketlen tó és a Móricz Zsigmond körtér közvetlen közelében kínálunk megvételre egy 93 m²-es, 3,5 szobás, magas emeleti lakást, egy 1935 ben épült karakteres, Bauhaus stílusú, liftes épületben.
A lakás teljes egészében délnyugati fekvésű, ennek köszönhetően rendkívül világos, napfényes terekkel rendelkezik egész nap. Az ingatlant 2003-2005 között teljes mértékben fel lett újítva igy a jelenlegi állapota átlagos, ugyanakkor a legfontosabb korszerűsítés a nyílászárók modern, műanyag, valamint biztonsági bejárati ajtó beépítése is megtörtént. Csodálatos hangulatot biztosit a nappaliból nyíló üvegveranda, ami kiválóan alkalmas egy meghitt, elvonuló kis saroknak vagy egy látványos télikertnek!
A fűtés házközponti rendszerű, egyedi mérővel.
A közös költség 50 000.-/hó, ami tartalmazza a szokásos költségeket, illetve a fűtésátalányt is!
Belmagassága 2,95 m.
Légkondival felszerelt.
Teljes berendezéssel eladó!
Az elhelyezkedés kiemelkedő. Móricz Zsigmond körtér közelsége miatt minden fontos közlekedési eszköz – metró, villamosok, buszok – pár lépésre elérhető, így a belváros akár percek alatt megközelíthető. A környék infrastruktúrája kiváló, üzletek, éttermek, egyetemek és szolgáltatások sokasága található a közelben.
Ez a lakás ideális választás lehet saját részre, de befektetésnek is kiváló lehetőség a frekventált elhelyezkedés miatt.
Ne hagyja ki ezt a remek adottságokkal rendelkező ingatlant!
Tulajdonságok
Téglalakás
6
Átlagos
Házközponti fűtés egyedi méréssel
1935
5 m²
F
Vedd fel a kapcsolatot a hirdetővel
+36 30 222 2
Hitelkalkulátor
Második évtől
684 264 Ft A 13. hónaptól
7,99%
Végig fix Futamidő: 20 év Banki visszahívás
Az OTP Bank munkatársai a neked megfelelő napszakban veszik fel veled a kapcsolatot.Hitelfelvétel esetén akár egy héttel rövidebb lehet az ügyintézés.
Ez az ingatlan a nálunk meglévő adatok alapján azonnali értékbecslésre alkalmas lehet.
A becslés a hirdető által megadott adatokon alapul. A jelen tájékoztatás nem minősül ajánlattételnek és nem teljes körű, az egyes feltételek a hitelbírálat eredményétől függően változhatnak. Kérjük, a részletekről tájékozódj az OTP Bank fiókjaiban vagy az OTP Bank honlapján közzétett vonatkozó Üzletszabályzatokból és Hirdetményekből.
Vedd fel a kapcsolatot a hirdetővel
+36 30 222 2
Vedd fel a kapcsolatot a hirdetővel
+36 30 222 2
UI_KIT.CHARACTER_COUNTER__COMPONENT.ACTUAL_CHARACTER__SR_ONLY UI_KIT.CHARACTER_COUNTER__COMPONENT.MAXIMUM_CHARACTER__SR_ONLY
Hasonló eladó ingatlanok Budapest XI. kerületben
Frissítve: 21 napja
20
169,9 millió Ft 2,3 millió Ft/m²
Eladó lakás, Budapest XI. kerület

Feltöltve: 12 napja
20
156,9 millió Ft 2,24 millió Ft/m²
Eladó lakás, Budapest XI. kerület

Frissítve: 2 hónapja
18
Sundell Port
143,6 millió Ft 2,99 millió Ft/m²
Eladó lakás, Budapest XI. kerület, Papp Elemér utca 6.

Fedezd fel a
hasonló lakásokat!Még további lakások Budapest XI. kerületben 159 M Ft körüli értékben
Tovább a hirdetésekhez Frissítve: 21 napja
16
150 millió Ft 1,49 millió Ft/m²
Eladó lakás, Budapest XI. kerület

Frissítve: 4 napja
5
Madeira Residence
162,2 millió Ft 2,35 millió Ft/m²
Eladó lakás, Budapest XI. kerület

Frissítve: 7 napja
20
169 millió Ft 1,88 millió Ft/m²
Eladó lakás, Budapest XI. kerület, Baranyai tér

