

+18 fotó
Hirdetéskód: 8736469
Referenciaszám: 388132
Feltöltve: 1 napja
Budapest XII. kerület eladó téglalakás 2 szobás: 130 millió Ft
130 millió Ft
1 300 000 Ft/m²
100 m²
2 szoba
1. emelet
Eladó téglalakás Budapest, XII. kerület, 100nm, 130.000.000Ft - Kútvölgy panorámás lakás!
Eladásra kínálunk Kútvölgy kedvelt részén egy Ősfás 1100 m2 területen elhelyezkedő patinás házban található 100 m2 panorámás lakást. Az ingatlanhoz 150-200 m2 kertrész is tartozik.
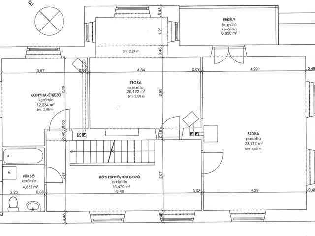
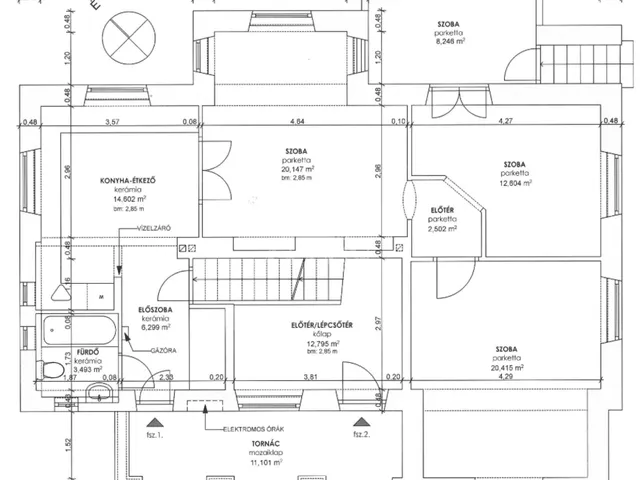
A 2 szobás 100 m2-es lakás az épület első emeltén helyezkedik el.
Lakás elrendezése:
Földszint:
• Lépcsőház - gardrob 12,7 m2
• Tornác 5,5 m2
Emelet:
• 2 db. szoba 20,1 m2 + 28,7 m2
• Közlekedő -dolgozó sarok 16,47 m2
• Konyha 12,2 m2
• Fürdőszoba 4,8 m2
• Erkély 7 m2
Kert:
• 150 - 200 m2 kertrész
A ház 1940-ben épült 55 cm vastag téglafalakkal. Az épület szerkezetileg jó állapotú – feljutása és korszerűsítése esedékes.
Az ingatlant fiatal pároknak -családoknak egyaránt ajánljuk.
A társasházban párhuzamosan kerül értékesítésre a hírdetésben szereplő 100 m2 és az az alatta található 93 m2 db.földszinti lakás.
Amennyiben Önnek a vásárláshoz szüksége lenne hitelre egyedi kedvezménnyel,kezdeményezheti a kapcsolatfelvételt bankfüggetlen hitelügyintézőinkkel, teljesen DÍJMENTESEN.
Az ingatlan részletes ismertetése és bemutatása előre egyeztetett időpontban lehetséges, melyet nagyon rugalmasan kezelünk, akár HÉTVÉGÉN is.
Amennyiben felkeltette az érdeklődését, további kérdéseivel kapcsolatban várom jelentkezését! ...TOVÁBBI, TÖBBEZRES INGATLAN KÍNÁLAT: www.gdn-ingatlan.hu - GDN azonosító: 388132
Tulajdonságok
Téglalakás
Felújítandó
Egyéb
1940
7 m²
5 m²
Nem adta meg a hirdető
Vedd fel a kapcsolatot a hirdetővel
+36 30 638 1
Hitelkalkulátor
Második évtől
559 461 Ft A 13. hónaptól
7,99%
Végig fix Futamidő: 20 év Banki visszahívás
Az OTP Bank munkatársai a neked megfelelő napszakban veszik fel veled a kapcsolatot.Hitelfelvétel esetén akár egy héttel rövidebb lehet az ügyintézés.
Ez az ingatlan a nálunk meglévő adatok alapján azonnali értékbecslésre alkalmas lehet.
A becslés a hirdető által megadott adatokon alapul. A jelen tájékoztatás nem minősül ajánlattételnek és nem teljes körű, az egyes feltételek a hitelbírálat eredményétől függően változhatnak. Kérjük, a részletekről tájékozódj az OTP Bank fiókjaiban vagy az OTP Bank honlapján közzétett vonatkozó Üzletszabályzatokból és Hirdetményekből.
Vedd fel a kapcsolatot a hirdetővel
+36 30 638 1
Vedd fel a kapcsolatot a hirdetővel
+36 30 638 1
UI_KIT.CHARACTER_COUNTER__COMPONENT.REMAINING_SPACE__SR_ONLYUI_KIT.CHARACTER_COUNTER__COMPONENT.MAXIMUM_CHARACTER__SR_ONLY
Hasonló eladó ingatlanok Kútvölgy városrészben
Frissítve: 10 napja

11
118,9 M Ft 2 331 373 Ft/m²
Eladó lakás, Budapest XII. kerület, Kútvölgy

Frissítve: 11 napja

9
124 M Ft 1 698 630 Ft/m²
Eladó lakás, Budapest XII. kerület, Kútvölgy

Frissítve: 11 napja

20
Citypark XII.
132,53 M Ft 2 208 850 Ft/m²
Eladó lakás, Budapest XII. kerület


Fedezd fel a
hasonló lakásokat!Még további lakások Budapest XII. kerületben 130 M Ft körüli értékben
Tovább a hirdetésekhez Frissítve: 11 napja

20
Citypark XII.
131,36 M Ft 2 189 250 Ft/m²
Eladó lakás, Budapest XII. kerület

Frissítve: 3 napja

20
136,8 M Ft
Eladó lakás, Budapest XII. kerület, Alkotás utca

Frissítve: 17 napja

20
119,7 M Ft 2 028 814 Ft/m²
Eladó lakás, Budapest XII. kerület, Orbánhegy


Töltsd fel hirdetésed ingyenesen!
Egyszerű