+16 fotó
Hirdetéskód: 8858946
Referenciaszám: H512546
Frissítve: 17 napja
Budapest XII. kerület eladó téglalakás 4 szobás: 295 millió Ft
295 millió Ft
1 657 303 Ft/m²
178 m²
4 szoba
1. emelet
Kivételes lehetőség a Szabadsághegyen!
Budapest XII. kerületében, Kútvölgyben, a Szabadság-hegyen egy kivételes adottságú, panorámás, kertkapcsolatos sorházi lakás, csendes, zöldövezeti környezetben.
A természet közelsége, a madárcsicsergés és a nyugalom garantált, miközben a városközpont 20 perc alatt elérhető (Széll Kálmán tér, Déli pályaudvar).
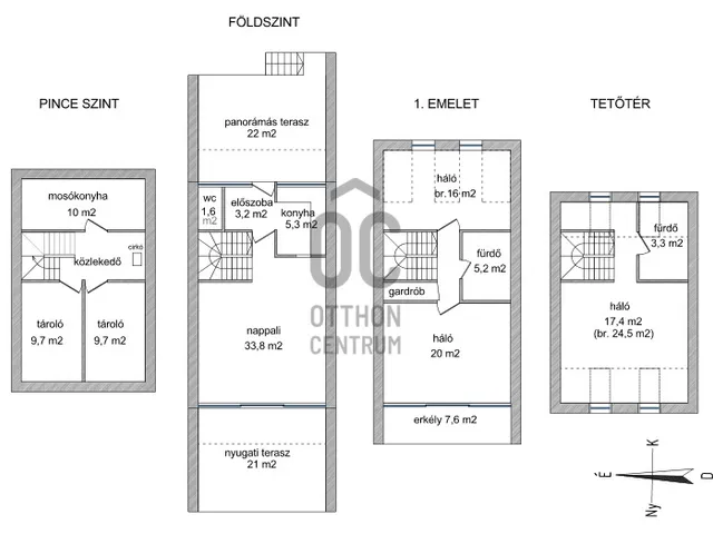
FŐBB JELLEMZŐK
•Lakóterület: 125 nm
•Teljes hasznos alapterület: 198 nm (pince + teraszok + erkély)
•4 belső szint
•2 kertkapcsolatos terasz (20–20 nm)
•Erkély (7,5 nm)
•3 hálószoba
•2 fürdőszoba+ wc
•Szuterén: 40 nm
•Saját kocsibeálló
•Nincs közös költség
•Alacsony rezsi
ELHELYEZKEDÉS
•Budapest XII. kerület, Kútvölgy
•Csendes, zöldövezeti környezet
•20 perc a belváros
•Autóval és tömegközlekedéssel is kiváló
•Két utcáról megközelíthető
•Közel: Normafa, János-hegy, Széchenyi-hegy
•Magyar iskola 10 perc, Német iskola 5 perc sétára
Kelet–nyugati tájolás, egész napos benapozottság.
A 4 szintes lakás kiválóan szeparált, ideális nagycsaládosoknak, többgenerációs együttélésre vagy otthoni munkavégzéshez.
A nagy üvegfelületeknek köszönhetően a lakás világos és napfényes. A nappali és a lépcsők ütésálló parafa burkolatot kaptak, az emeleti hálószobák padlószőnyegesek. Az egész lakás meleg, otthonos hangulatú.
Fűtés és meleg víz: cirkógáz kazán.
4 lakásos ház, minden lakáshoz saját előkert tartozik, a telek többi része közös használatú.
A hegyoldali beépítés miatt hosszú lépcsősor vezet a házhoz, ezért mozgáskorlátozottak számára nem ajánlott.
Amennyiben felkeltettük érdeklődését, keressen bizalommal.
Ez az ingatlan a "Hűség csomag" megbízási portfólióhoz tartozik. Részletek az Otthon Centrum weboldalán.
Tulajdonságok
Téglalakás
Gázkazán
1990
10 m²
40 m²
Nem adta meg a hirdető
Vedd fel a kapcsolatot a hirdetővel
+36 70 465 6
Hitelkalkulátor
Második évtől
1 269 546 Ft A 13. hónaptól
7,99%
Végig fix Futamidő: 20 év Banki visszahívás
Az OTP Bank munkatársai a neked megfelelő napszakban veszik fel veled a kapcsolatot. A becslés a hirdető által megadott adatokon alapul. A jelen tájékoztatás nem minősül ajánlattételnek és nem teljes körű, az egyes feltételek a hitelbírálat eredményétől függően változhatnak. Kérjük, a részletekről tájékozódj az OTP Bank fiókjaiban vagy az OTP Bank honlapján közzétett vonatkozó Üzletszabályzatokból és Hirdetményekből.
Vedd fel a kapcsolatot a hirdetővel
+36 70 465 6
Vedd fel a kapcsolatot a hirdetővel
+36 70 465 6
UI_KIT.CHARACTER_COUNTER__COMPONENT.ACTUAL_CHARACTER__SR_ONLY UI_KIT.CHARACTER_COUNTER__COMPONENT.MAXIMUM_CHARACTER__SR_ONLY
Hasonló eladó ingatlanok Kútvölgy városrészben
Frissítve: 14 napja
20
280 M Ft 1 435 892 Ft/m²
Eladó lakás, Budapest XII. kerület, Kútvölgy

Frissítve: 22 napja
14
760 000 Euro
285 M Ft 1 686 391 Ft/m²
Eladó lakás, Budapest XII. kerület

Frissítve: ma
14
760 000 Euro
285 M Ft 1 686 391 Ft/m²
Eladó lakás, Budapest XII. kerület


Fedezd fel a
hasonló lakásokat!Még további lakások Budapest XII. kerületben 295 M Ft körüli értékben
Tovább a hirdetésekhez Frissítve: 22 napja
5
297,9 M Ft 2 758 078 Ft/m²
Eladó lakás, Budapest XII. kerület, Zugliget

Frissítve: 17 napja
7
Árnyas 40 Villa Suites
268,4 M Ft 3 157 588 Ft/m²
Eladó lakás, Budapest XII. kerület

Frissítve: 17 napja
7
Árnyas 40 Villa Suites
299,94 M Ft 3 487 709 Ft/m²
Eladó lakás, Budapest XII. kerület

