Hirdetéskód: 8851539
Referenciaszám: P4726-V1-01-03-303
Frissítve: 11 napja
Eladó 2 szobás téglalakás 84,88 millió Ft értékben Budapest XIII. kerületben - K7 Residence lakóparkban
84,88 millió Ft
1 845 304 Ft/m²
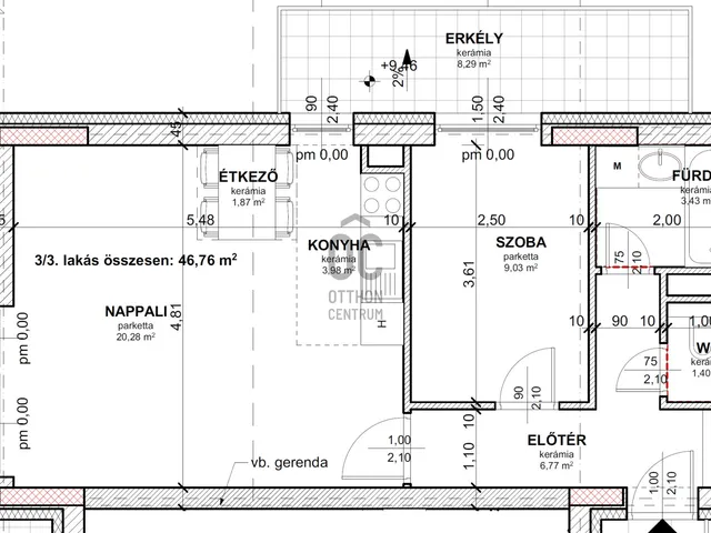
46 m²
2 szoba
3. emelet
Leírás
SZERKEZETKÉSZ
Projekt bemutatása
A XIII. kerület legfrekventáltabb részén, közel az M3-as metró Göncz Árpád Városközponti megállójához (Árpád híd) és az 1-es villamoshoz, csendes mellékutcában kínálunk eladásra újépítésű lakásokat, számos referenciával rendelkező, nagymúltú beruházó projektjében.
A lakások változatos méretűek: a stúdió lakástól a nagyteraszos, több szobásig minden típus megtalálható a házban. Mindegyikhez tartozik erkély vagy nagy méretű terasz. A földszinti lakások kertkapcsolatosak.
A társasház a jövő korának megfelelő, modern, hőszivattyús mennyezeti hűtés, -fűtéses rendszerű, lakásonként elkülönített szabályzókkal, ami minimális energiafelhasználást tesz lehetővé télen és nyáron egyaránt, minden tulajdonos számára. A technológiának köszönhetően a lakótereken belül nincs szükség külön fűtőtestekre, ami által a helyiségek berendezhetősége is optimális.
A beruházó rendkívüli rugalmassága lehetővé teszi minden vevő számára a belső kialakítás és beosztás változtatását is, így minden lakás teljesen személyre szabható.
Mind a környék infrastruktúrája, mind pedig a belváros közelsége biztosítja, hogy az itt lakók mindent elérjenek percek alatt: számos bevásárlási lehetőség, óvodák, iskolák, bevásárló központ, gyógyszertár, posta vagy játszótér, parkok vannak karnyújtásnyi távolságra.
A kiváló lokáció és az alacsony energiaigény miatt kiemelkedő az ingatlanok akár hosszú-, akár rövidtávú kiadhatósága is.
Tulajdonságok
Téglalakás
Új építésű
Hőszivattyú
2026
1,9 m²
8,3 m²
Nem adta meg a hirdető
Vedd fel a kapcsolatot a hirdetővel
+36 70 435 2
Hitelkalkulátor
Második évtől
365 302 Ft A 13. hónaptól
7,99% 8,49%
Végig fix Futamidő: 20 év Banki visszahívás
Az OTP Bank munkatársai a neked megfelelő napszakban veszik fel veled a kapcsolatot.Hitelfelvétel esetén akár egy héttel rövidebb lehet az ügyintézés.
Ez az ingatlan a nálunk meglévő adatok alapján azonnali értékbecslésre alkalmas lehet.
A becslés a hirdető által megadott adatokon alapul. A jelen tájékoztatás nem minősül ajánlattételnek és nem teljes körű, az egyes feltételek a hitelbírálat eredményétől függően változhatnak. Kérjük, a részletekről tájékozódj az OTP Bank fiókjaiban vagy az OTP Bank honlapján közzétett vonatkozó Üzletszabályzatokból és Hirdetményekből.
Vedd fel a kapcsolatot a hirdetővel
+36 70 435 2
Vedd fel a kapcsolatot a hirdetővel
+36 70 435 2
UI_KIT.CHARACTER_COUNTER__COMPONENT.ACTUAL_CHARACTER__SR_ONLY UI_KIT.CHARACTER_COUNTER__COMPONENT.MAXIMUM_CHARACTER__SR_ONLY
Hasonló eladó ingatlanok Angyalföld városrészben
Frissítve: 11 napja
15
85,8 M Ft 1 650 000 Ft/m²
Eladó lakás, Budapest XIII. kerület, Angyalföld

Frissítve: 11 napja
18
89 M Ft 978 022 Ft/m²
Eladó lakás, Budapest XIII. kerület, Angyalföld

Frissítve: 11 napja
4
84,4 M Ft 1 599 999 Ft/m²
Eladó lakás, Budapest XIII. kerület, Angyalföld


Fedezd fel a
hasonló lakásokat!Még további lakások Budapest XIII. kerület, Angyalföld városrészben 84,88 M Ft körüli értékben
Tovább a hirdetésekhez Frissítve: -1 napja
18
89 M Ft 978 022 Ft/m²
Eladó lakás, Budapest XIII. kerület, Angyalföld

Frissítve: 11 napja
4
84,69 M Ft 1 628 615 Ft/m²
Eladó lakás, Budapest XIII. kerület, Angyalföld

Frissítve: 2 hónapja
20
77,5 M Ft 1 047 297 Ft/m²
Eladó lakás, Budapest XIII. kerület, Angyalföld, Tatai utca

