Hirdetéskód: 8851554
Referenciaszám: P4726-V1-01-06-603
Frissítve: 3 napja
Eladó 3 szobás téglalakás 99,9 millió Ft értékben Budapest XIII. kerületben - K7 Residence lakóparkban
99,9 millió Ft
1 921 154 Ft/m²
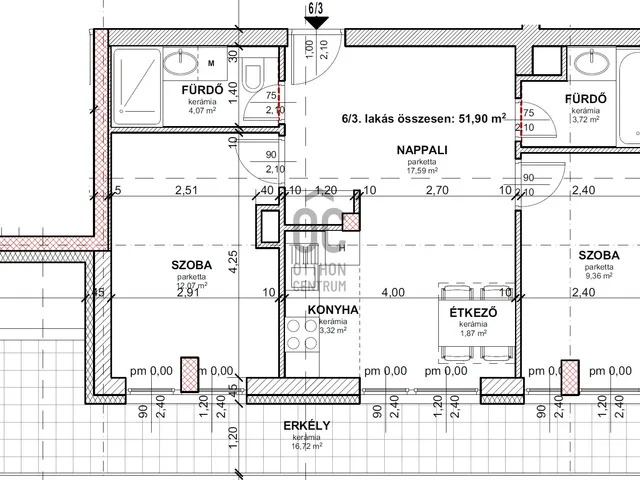
52 m²
3 szoba
6. emelet
Leírás
Projekt bemutatása
A XIII. kerület legfrekventáltabb részén, közel az M3-as metró Göncz Árpád Városközponti megállójához (Árpád híd) és az 1-es villamoshoz, csendes mellékutcában kínálunk eladásra újépítésű lakásokat, számos referenciával rendelkező, nagymúltú beruházó projektjében.
A lakások változatos méretűek: a stúdió lakástól a nagyteraszos, több szobásig minden típus megtalálható a házban. Mindegyikhez tartozik erkély vagy nagy méretű terasz. A földszinti lakások kertkapcsolatosak.
A társasház a jövő korának megfelelő, modern, hőszivattyús mennyezeti hűtés, -fűtéses rendszerű, lakásonként elkülönített szabályzókkal, ami minimális energiafelhasználást tesz lehetővé télen és nyáron egyaránt, minden tulajdonos számára. A technológiának köszönhetően a lakótereken belül nincs szükség külön fűtőtestekre, ami által a helyiségek berendezhetősége is optimális.
A beruházó rendkívüli rugalmassága lehetővé teszi minden vevő számára a belső kialakítás és beosztás változtatását is, így minden lakás teljesen személyre szabható.
Mind a környék infrastruktúrája, mind pedig a belváros közelsége biztosítja, hogy az itt lakók mindent elérjenek percek alatt: számos bevásárlási lehetőség, óvodák, iskolák, bevásárló központ, gyógyszertár, posta vagy játszótér, parkok vannak karnyújtásnyi távolságra.
A kiváló lokáció és az alacsony energiaigény miatt kiemelkedő az ingatlanok akár hosszú-, akár rövidtávú kiadhatósága is.
Tulajdonságok
Téglalakás
Új építésű
Hőszivattyú
2026
16,8 m²
Nem adta meg a hirdető
Vedd fel a kapcsolatot a hirdetővel
+36 70 435 2
Hitelkalkulátor
Második évtől
429 924 Ft A 13. hónaptól
7,99% 8,49%
Végig fix Futamidő: 20 év Banki visszahívás
Az OTP Bank munkatársai a neked megfelelő napszakban veszik fel veled a kapcsolatot.Hitelfelvétel esetén akár egy héttel rövidebb lehet az ügyintézés.
Ez az ingatlan a nálunk meglévő adatok alapján azonnali értékbecslésre alkalmas lehet.
A becslés a hirdető által megadott adatokon alapul. A jelen tájékoztatás nem minősül ajánlattételnek és nem teljes körű, az egyes feltételek a hitelbírálat eredményétől függően változhatnak. Kérjük, a részletekről tájékozódj az OTP Bank fiókjaiban vagy az OTP Bank honlapján közzétett vonatkozó Üzletszabályzatokból és Hirdetményekből.
Vedd fel a kapcsolatot a hirdetővel
+36 70 435 2
Vedd fel a kapcsolatot a hirdetővel
+36 70 435 2
UI_KIT.CHARACTER_COUNTER__COMPONENT.ACTUAL_CHARACTER__SR_ONLY UI_KIT.CHARACTER_COUNTER__COMPONENT.MAXIMUM_CHARACTER__SR_ONLY
Hasonló eladó ingatlanok Angyalföld városrészben
Frissítve: 7 napja
16
94 M Ft 1 773 585 Ft/m²
Eladó lakás, Budapest XIII. kerület, Angyalföld

Frissítve: 12 napja
4
101,44 M Ft 1 600 000 Ft/m²
Eladó lakás, Budapest XIII. kerület, Angyalföld

Frissítve: 7 napja
14
92 M Ft 1 735 849 Ft/m²
Eladó lakás, Budapest XIII. kerület, Angyalföld


Fedezd fel a
hasonló lakásokat!Még további lakások Budapest XIII. kerület, Angyalföld városrészben 99,9 M Ft körüli értékben
Tovább a hirdetésekhez Frissítve: ma
10
96,3 M Ft 1 719 643 Ft/m²
Eladó lakás, Budapest XIII. kerület, Angyalföld

Frissítve: 3 napja
3
90,83 M Ft 1 974 647 Ft/m²
Eladó lakás, Budapest XIII. kerület, Angyalföld

Frissítve: 5 hónapja
12
Dévai 14
104,8 M Ft 2 015 394 Ft/m²
Eladó lakás, Budapest XIII. kerület, Angyalföld, Dévai utca
