+17 fotó
Hirdetéskód: 8792304
Referenciaszám: M316976
Frissítve: 8 napja
Budapest XIII. kerület eladó téglalakás 2+1 fél szobás: 96 millió Ft
96 millió Ft
1,3 millió Ft/m² *
* A m² árat a hirdető adta meg.
72 m²
2+1 fél szoba
3. emelet
Leírás
FELÚJÍTANDÓ INGATLAN ÚJLIPÓTVÁROS SZÍVÉBEN!
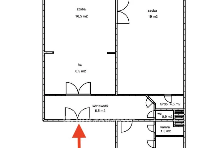
Eladó Budapest XIII. kerületének egyik legnépszerűbb területén, Újlipótvárosban, egy 72 m2-es, erkélyes lakás.
Az ingatlan egy Bauhaus stílusú, liftes társasház 3. emeletén található.
A lakásba a felújított, lépcsőházból egy elegáns kétszárnyú ajtón keresztül juthatunk be. A felújítandó ingatlanban 2,5 szoba hall, konyha, spájz, fürdőszoba, külön WC található.
Az utcára néző szobák és az erkély délkeleti fekvésűek. A északnyugati tájolású félszoba és a konyha egy rendezett belső udvarra néznek.
A fürdőszoba az előszobából és az egyik szobából is megközelíthető. A konyhából nyíló félszoba akár egy nagyobb étkezős konyhává is átalakítható igény szerint. Tulajdonosaik nagyon vigyáztak az ingatlanra, melynek köszönhetően (a ház kora ellenére), a szobákban és az előszobában lévő parketták jó állapotban vannak. Fűtése távfűtés.
A lakás jó fekvésének köszönhetően szép, napos, világos otthon kialakítására van lehetőség.
A társasház tiszta, rendezett, a lakóközössége kulturált.
A lokáció kitűnő, közel a Jászai Mari térhez, Duna-parthoz, Szent István parkhoz, Nyugati térhez, Westendhez és a Margitszigethez. Tömegközlekedéssel a város minden pontja rövid időn belül elérhető. Energetikai tanúsítvánnyal rendelkezik F besorolást kapott.
Amennyiben hirdetésem felkeltette érdeklődését, vagy szeretné megtekinteni az ingatlant, várom hívását!
Tulajdonságok
Téglalakás
Felújítandó
Távfűtés
1930
1,5 m²
Nem adta meg a hirdető
Vedd fel a kapcsolatot a hirdetővel

Hosszú Beáta
Budapest XIII. kerület Pannónia utca 25 - OTP Ingatlanpont Iroda
Az iroda összes hirdetése +36 70 389 8
Hitelkalkulátor
Második évtől
413 140 Ft A 13. hónaptól
7,99%
Végig fix Futamidő: 20 év Banki visszahívás
Az OTP Bank munkatársai a neked megfelelő napszakban veszik fel veled a kapcsolatot.Hitelfelvétel esetén akár egy héttel rövidebb lehet az ügyintézés.
Ez az ingatlan a nálunk meglévő adatok alapján azonnali értékbecslésre alkalmas lehet.
A becslés a hirdető által megadott adatokon alapul. A jelen tájékoztatás nem minősül ajánlattételnek és nem teljes körű, az egyes feltételek a hitelbírálat eredményétől függően változhatnak. Kérjük, a részletekről tájékozódj az OTP Bank fiókjaiban vagy az OTP Bank honlapján közzétett vonatkozó Üzletszabályzatokból és Hirdetményekből.
Vedd fel a kapcsolatot a hirdetővel

Hosszú Beáta
Budapest XIII. kerület Pannónia utca 25 - OTP Ingatlanpont Iroda
Az iroda összes hirdetése +36 70 389 8
Vedd fel a kapcsolatot a hirdetővel

Hosszú Beáta
Budapest XIII. kerület Pannónia utca 25 - OTP Ingatlanpont Iroda
Az iroda összes hirdetése +36 70 389 8
UI_KIT.CHARACTER_COUNTER__COMPONENT.ACTUAL_CHARACTER__SR_ONLY UI_KIT.CHARACTER_COUNTER__COMPONENT.MAXIMUM_CHARACTER__SR_ONLY
Hasonló eladó ingatlanok Budapest XIII. kerületben
Frissítve: ma
18
89 millió Ft 978 ezer Ft/m²
Eladó lakás, Budapest XIII. kerület

Frissítve: 16 napja
5
Cosmo Residence
103,8 millió Ft
Eladó lakás, Budapest XIII. kerület

Frissítve: 8 hónapja
5
Granat Club House By Astora
96,27 millió Ft 1,96 millió Ft/m²
Eladó lakás, Budapest XIII. kerület

Fedezd fel a
hasonló lakásokat!Még további lakások Budapest XIII. kerületben 96 M Ft körüli értékben
Tovább a hirdetésekhez Frissítve: 6 napja
18
89 millió Ft 978 ezer Ft/m²
Eladó lakás, Budapest XIII. kerület

Frissítve: 6 napja
17
94,1 millió Ft 990,5 ezer Ft/m²
Eladó lakás, Budapest XIII. kerület, Mosoly utca

Frissítve: 16 napja
5
Cosmo Residence
102,9 millió Ft
Eladó lakás, Budapest XIII. kerület

