

+16 fotó
Hirdetéskód: 8735585
Feltöltve: 1 napja
Budapest XIV. kerület eladó téglalakás 2 szobás: 76,8 millió Ft
76,8 millió Ft
1 200 000 Ft/m²
64 m²
2 szoba
3. emelet
Leírás
Eladó tulajdonostól 64 m²-es lakás Zugló Istvánmező városrészén, a Stefánia út közelében, mely a XIV. kerület egyik reprezentatív, zöldövezeti és elegáns sugárútja, amely összeköti a Városliget környékét Zugló belsőbb részeivel. A lakás egy négy emeletes tégla építésű társasház harmadik emeletén található, lift van. Per- és tehermentes az ingatlan.
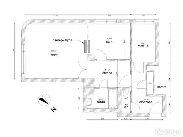
Két szoba, hall, nagyablakos konyha, kamra/gardrób, előszoba, fürdőszoba, különálló vécé (ld. alaprajz).
Fekvése: DK-DNY
Délnyugati és délkeleti tájolásának köszönhetően a lakás egész nap világos és napfényes, körbenapozott.
Állapot:
Felújítandó állapotú. A szobákban és a hallban csiszolást, lakkozást igénylő de jó állapotú parketta, a többi helyiségben járólap. A kisszobában és a konyhában jó állapotú műanyag ablakok, a nagy szobában eredeti, jó állapotú fa ablakok. A nagyszobában klíma. A cserépkályha Héra gázzal melegít. A kémény pár éve ki lett bélelve. A fürdőszobában gázbojler van, a konyhában villanybojler. Elektromos felújítás volt a házban, a víz alapcsatorna új. Tető rendben. Három éve van lakástakarékpénztárja a háznak.
Tartozék:
A lakáshoz tartozik egy 3-4 m²-es, különálló száraz tárolóhelyiség is a pincében.
Elhelyezkedés:
A lokáció kiváló: Puskás Stadion közelében az Egressy és Gizella út sarkán, nagyon jó közlekedéssel (1-es villamos, 75-ös és 77-es troli, a 2-es metró 1 megálló). Városliget 10 perc trolival, 15 perc gyalog. 5 perces gyalogtávolságban Spar, patika, étterem, étkezde, virágbolt, óvoda. A közelben Lidl, Penny, Tesco.
Ingatlanos segítséget nem kérek, köszönöm.
Tulajdonságok
Téglalakás
4
Felújítandó
Gáz (héra)
1962
E
Nincs
Vedd fel a kapcsolatot a hirdetővel
SE
Szakács Eszter
+36 20 382 7
Hitelkalkulátor
Második évtől
330 512 Ft A 13. hónaptól
7,99%
Végig fix Futamidő: 20 év Banki visszahívás
Az OTP Bank munkatársai a neked megfelelő napszakban veszik fel veled a kapcsolatot.Hitelfelvétel esetén akár egy héttel rövidebb lehet az ügyintézés.
Ez az ingatlan a nálunk meglévő adatok alapján azonnali értékbecslésre alkalmas lehet.
A becslés a hirdető által megadott adatokon alapul. A jelen tájékoztatás nem minősül ajánlattételnek és nem teljes körű, az egyes feltételek a hitelbírálat eredményétől függően változhatnak. Kérjük, a részletekről tájékozódj az OTP Bank fiókjaiban vagy az OTP Bank honlapján közzétett vonatkozó Üzletszabályzatokból és Hirdetményekből.
Vedd fel a kapcsolatot a hirdetővel
SE
Szakács Eszter
+36 20 382 7
Vedd fel a kapcsolatot a hirdetővel
SE
Szakács Eszter
+36 20 382 7
UI_KIT.CHARACTER_COUNTER__COMPONENT.REMAINING_SPACE__SR_ONLYUI_KIT.CHARACTER_COUNTER__COMPONENT.MAXIMUM_CHARACTER__SR_ONLY
Hasonló eladó ingatlanok Istvánmező városrészben
Frissítve: 18 napja

13
69,9 M Ft 1 294 445 Ft/m²
Eladó lakás, Budapest XIV. kerület, Istvánmező

Frissítve: ma

13
69,9 M Ft 1 294 444 Ft/m²
Eladó lakás, Budapest XIV. kerület, Istvánmező

Frissítve: 7 napja

20
69,9 M Ft 1 426 531 Ft/m²
Eladó lakás, Budapest XIV. kerület, Istvánmező, Hungária körút


Fedezd fel a
hasonló lakásokat!Még további lakások Budapest XIV. kerületben 76,8 M Ft körüli értékben
Tovább a hirdetésekhez Feltöltve: 18 napja

8
69,9 M Ft 1 205 172 Ft/m²
Eladó lakás, Budapest XIV. kerület, Istvánmező, Thököly út 55
Frissítve: ma

14
72,9 M Ft 1 195 082 Ft/m²
Eladó lakás, Budapest XIV. kerület, Istvánmező

Feltöltve: ma

20
82,5 M Ft 1 500 000 Ft/m²
Eladó lakás, Budapest XIV. kerület, Istvánmező


Töltsd fel hirdetésed ingyenesen!
Egyszerű