+6 fotó
Hirdetéskód: 8961838
Referenciaszám: M325924-5196450
Frissítve: 17 napja
Budapest XXI. kerület eladó téglalakás 1 szobás: 43,5 millió Ft
43,5 millió Ft
1,14 millió Ft/m²
38 m²
1 szoba
3. emelet
Eladó Lakás, Budapest 21. ker.
ELADÓ felújítandó lakás Csepelen - kiváló lehetőség!
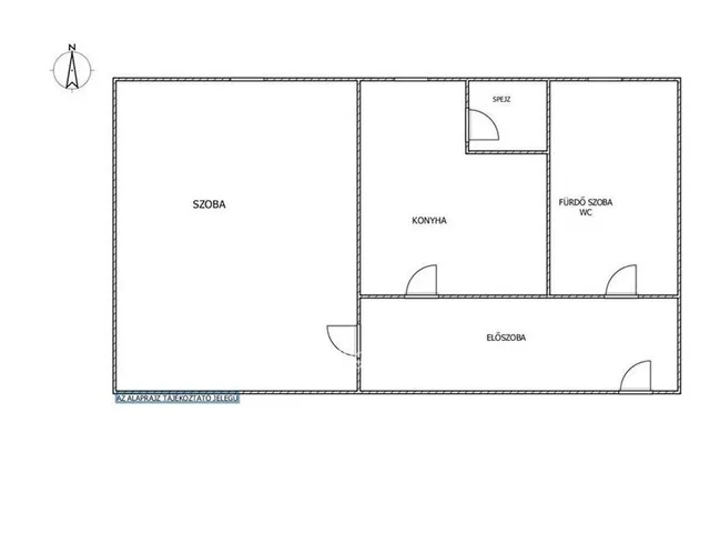
Csepelen eladó egy 38 m2-es, 1 szoba + konyhás lakás a 3. emeleten.
Főbb jellemzők:
38 m2 alapterület,
1 szoba, konyha, fürdőszoba, előszoba,
3. emeleti elhelyezkedés,
a lakás felett nincs lakó (csendes)
teljes felújítást igényel.
Lehetőség:
A lakás könnyen 2 szobássá alakítható, így kisebb ráfordítással akár 2 gyermekes család számára is alkalmassá tehető.
Épület: a társasház tavaly teljes hőszigetelést kapott.
Környék: boltok, közértek sétatávolságra buszmegállók a közelben.
Ajánljuk: befektetőknek, pároknak első lakásnak.
Kiváló lehetőség saját ízlés szerinti kialakításra!
Az energetikai tanúsítvány készítése folyamatban van, amint rendelkezésre áll, úgy azzal a hirdetés frissítésre kerül.
Tulajdonságok
Téglalakás
Felújítandó
Gáz (konvektor)
1950
Nem adta meg a hirdető
Vedd fel a kapcsolatot a hirdetővel

Terjék Nikolett Erzsébet
OTPip - Dunaharaszti Bocskai utca 10 - OTP Ingatlanpont Iroda
Az iroda összes hirdetése +36 70 941 9
Hitelkalkulátor
Második évtől
187 204 Ft A 13. hónaptól
7,99%
Végig fix Futamidő: 20 év Banki visszahívás
Az OTP Bank munkatársai a neked megfelelő napszakban veszik fel veled a kapcsolatot.Hitelfelvétel esetén akár egy héttel rövidebb lehet az ügyintézés.
Ez az ingatlan a nálunk meglévő adatok alapján azonnali értékbecslésre alkalmas lehet.
A becslés a hirdető által megadott adatokon alapul. A jelen tájékoztatás nem minősül ajánlattételnek és nem teljes körű, az egyes feltételek a hitelbírálat eredményétől függően változhatnak. Kérjük, a részletekről tájékozódj az OTP Bank fiókjaiban vagy az OTP Bank honlapján közzétett vonatkozó Üzletszabályzatokból és Hirdetményekből.
Vedd fel a kapcsolatot a hirdetővel

Terjék Nikolett Erzsébet
OTPip - Dunaharaszti Bocskai utca 10 - OTP Ingatlanpont Iroda
Az iroda összes hirdetése +36 70 941 9
Vedd fel a kapcsolatot a hirdetővel

Terjék Nikolett Erzsébet
OTPip - Dunaharaszti Bocskai utca 10 - OTP Ingatlanpont Iroda
Az iroda összes hirdetése +36 70 941 9
UI_KIT.CHARACTER_COUNTER__COMPONENT.ACTUAL_CHARACTER__SR_ONLY UI_KIT.CHARACTER_COUNTER__COMPONENT.MAXIMUM_CHARACTER__SR_ONLY
Hasonló eladó ingatlanok Budapest XXI. kerületben
Frissítve: 1 napja
15
43,5 millió Ft 1,21 millió Ft/m²
Eladó lakás, Budapest XXI. kerület

Frissítve: 3 napja
5
43,5 millió Ft 1,21 millió Ft/m²
Eladó lakás, Budapest XXI. kerület

Frissítve: 3 napja
14
39,9 millió Ft 1,02 millió Ft/m²
Eladó lakás, Budapest XXI. kerület


Fedezd fel a
hasonló lakásokat!Még további lakások Budapest XXI. kerületben 43,5 M Ft körüli értékben
Tovább a hirdetésekhez Frissítve: 3 napja
14
39,9 millió Ft 1,02 millió Ft/m²
Eladó lakás, Budapest XXI. kerület

Frissítve: ma
14
39,9 millió Ft 1,02 millió Ft/m²
Eladó lakás, Budapest XXI. kerület

Frissítve: ma
14
39,9 millió Ft 1,02 millió Ft/m²
Eladó lakás, Budapest XXI. kerület

