+17 fotó
Hirdetéskód: 8920970
Referenciaszám: 393412
Frissítve: ma
Budapest XXII. kerület eladó téglalakás 4 szobás: 138 millió Ft
138 millió Ft
1,25 millió Ft/m²
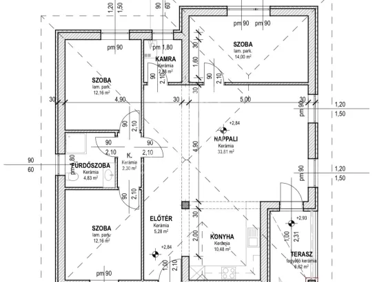
110 m²
4 szoba
1. emelet
Eladó téglalakás Budapest, XXII. kerület, 110nm, 138.000.000Ft - Nagytétény
Eladó új építésű otthonok Budapest–Nagytétényben – modern, fiatalos, energiatakarékos!
Ha egy új, kényelmes és modern otthont keresel nyugodt környezetben, akkor ezt érdemes megnézned!
Budapest XXII. kerületének kedvelt részén, Nagytétényben eladó egy új építésű, 2 lakásos társasház mindkét lakása.
Lakások főbb jellemzői
• 110 m²-es lakótér
• kb 350 nm saját telekrész
• amerikai konyhás nappali + 3 külön nyíló hálószoba
• 1 fürdőszoba
• 1 háztartási helyiség
• saját garázs mindkét lakáshoz
Modern műszaki tartalom
• energiatakarékos hőszivattyús fűtés lakásonként
• padlófűtés minden helyiségben
• klíma minden szobában
• 3 rétegű műanyag nyílászárók
• elektromos redőnyök
• 10 cm külső hőszigetelés
Biztonság és kényelem
• kamera- és riasztórendszer kiállások
• új kerítés
• elektromos kapu
A képek látványterveket tartalmaznak,melyek ötletet adnak a jövőbeni berendezés megvalósításához!
A lakások ideálisak családoknak vagy mindazoknak, akik új, alacsony rezsijű otthont keresnek Budapest zöldebb, nyugodtabb részén, mégis jó közlekedéssel.
A képeken az emeleti lakás látható, ami külön lépcsőházból megközelíthető. A telek két utcára nyílik, így a két lakás és a hozzájuk tartozó telekrész is külön utcáról bejáratos.
Amennyiben a megvásárláshoz hitelre van szükség, bankfüggetlen hitelcentrumunk díjmentesen áll ügyfeleink rendelkezésére.
További információért vagy megtekintésért keress bizalommal! ...TOVÁBBI, TÖBBEZRES INGATLAN KÍNÁLAT: www.gdn-ingatlan.hu - GDN azonosító: 393412
Tulajdonságok
Téglalakás
Új építésű
Hőszivattyú
2026
10 m²
Nem adta meg a hirdető
Vedd fel a kapcsolatot a hirdetővel
+36 30 491 8
Hitelkalkulátor
Második évtől
593 889 Ft A 13. hónaptól
7,99% 8,49%
Végig fix Futamidő: 20 év Banki visszahívás
Az OTP Bank munkatársai a neked megfelelő napszakban veszik fel veled a kapcsolatot.Hitelfelvétel esetén akár egy héttel rövidebb lehet az ügyintézés.
Ez az ingatlan a nálunk meglévő adatok alapján azonnali értékbecslésre alkalmas lehet.
A becslés a hirdető által megadott adatokon alapul. A jelen tájékoztatás nem minősül ajánlattételnek és nem teljes körű, az egyes feltételek a hitelbírálat eredményétől függően változhatnak. Kérjük, a részletekről tájékozódj az OTP Bank fiókjaiban vagy az OTP Bank honlapján közzétett vonatkozó Üzletszabályzatokból és Hirdetményekből.
Vedd fel a kapcsolatot a hirdetővel
+36 30 491 8
Vedd fel a kapcsolatot a hirdetővel
+36 30 491 8
UI_KIT.CHARACTER_COUNTER__COMPONENT.ACTUAL_CHARACTER__SR_ONLY UI_KIT.CHARACTER_COUNTER__COMPONENT.MAXIMUM_CHARACTER__SR_ONLY
Hasonló eladó ingatlanok Nagytétény városrészben
Frissítve: ma
12
138 millió Ft 1,25 millió Ft/m²
Eladó lakás, Budapest XXII. kerület, Nagytétény

Frissítve: 5 hónapja
1
144,9 millió Ft 1,04 millió Ft/m²
Eladó lakás, Budapest XXII. kerület, Nagytétény, Szilvafa u 7
Frissítve: 11 napja
15
138 millió Ft 1,48 millió Ft/m²
Eladó lakás, Budapest XXII. kerület, Budafok


Fedezd fel a
hasonló lakásokat!Még további lakások Budapesten 138 M Ft körüli értékben
Tovább a hirdetésekhez Frissítve: 8 napja
17
135 millió Ft 1,5 millió Ft/m²
Eladó lakás, Budapest XXII. kerület, Budafok
Feltöltve: 17 napja
1
149 millió Ft 2,26 millió Ft/m²
Eladó lakás, Budapest XXII. kerület, Budafok-Rózsavölgy, Lepke utca
Frissítve: ma
20
149,9 millió Ft 1,53 millió Ft/m²
Eladó lakás, Budapest XXII. kerület

