

Hirdetéskód: 8731531
Frissítve: 2 napja
Cegléd eladó téglalakás 2 szobás: 50 millió Ft
50 millió Ft
892 857 Ft/m²
56 m²
2 szoba
földszint
Leírás
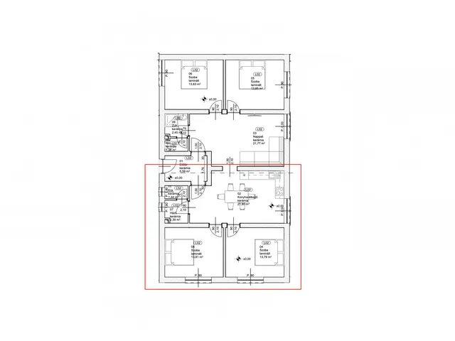
Eladó új építésű 2 szobás földszinti lakás Cegléden!
Tervezett átadás: 2026. nyarán.
Az ingatlan főbb jellemzői:
- 56,05 m2 hasznos alapterület,
- földszinti elhelyezkedés,
- Viablokk D-300 tégla falazat,
- cserép fedés,
- 2 szoba + nappali és étkező,
- A+++ energetikai besorolás,
- műanyag 3 rétegű hőszigetelt üvegezésű nyílászárók,
- összközműves,
- 3x25 A áramerősség,
- 3 fázisú levegő-víz hőszivattyú, padlófűtés és mennyezeti hűtés-fűtés,
- napelemrendszer,
- lakásonként 1 db parkoló,
- minőségi alapanyagokból, megbízható kivitelező által kivitelezett.
További részletekért és bővebb információért kérem hívjon! Amennyiben hitelre van szüksége, irodánk teljes körű ügyintézéssel, ingyenes és bankfüggetlen hiteltanácsadással várja. A hirdetésben szereplő információk a megbízótól kapott adatok alapján készültek, pontosságukért felelősséget nem vállalunk!
#legjobbotthoningatlaniroda #legjobbotthon #ingatlancegléd #cegléd #ceglédiingatlan #ceglédilakás #ceglédieladóingatlan #ceglédiház #eladóingatlancegléd #ceglédkörnyéke #ceglédingatlanos #1,5% #eladóingatlan #eladóház #eladólakás #ingatlan #ingatlanpiac #otthon #lakásvásárlás #házvásárlás #befektetés #ingatlanbefektetés #kiadó #kiadóingatlancegléd #CSOK #tápióság #csemő #albertirsa #ceglédbercel #pilis
Tulajdonságok
Téglalakás
3
Új építésű
Hőszivattyú
2026
A+++
Vedd fel a kapcsolatot a hirdetővel
+36 20 232 6
Hitelkalkulátor
Második évtől
215 177 Ft A 13. hónaptól
7,99% 8,49%
Végig fix Futamidő: 20 év Banki visszahívás
Az OTP Bank munkatársai a neked megfelelő napszakban veszik fel veled a kapcsolatot. A becslés a hirdető által megadott adatokon alapul. A jelen tájékoztatás nem minősül ajánlattételnek és nem teljes körű, az egyes feltételek a hitelbírálat eredményétől függően változhatnak. Kérjük, a részletekről tájékozódj az OTP Bank fiókjaiban vagy az OTP Bank honlapján közzétett vonatkozó Üzletszabályzatokból és Hirdetményekből.
Vedd fel a kapcsolatot a hirdetővel
+36 20 232 6
Vedd fel a kapcsolatot a hirdetővel
+36 20 232 6
UI_KIT.CHARACTER_COUNTER__COMPONENT.REMAINING_SPACE__SR_ONLYUI_KIT.CHARACTER_COUNTER__COMPONENT.MAXIMUM_CHARACTER__SR_ONLY
Hasonló eladó ingatlanok Cegléden
Frissítve: 8 napja

6
47,85 M Ft 550 000 Ft/m²
Eladó lakás, Cegléd

Frissítve: 30 napja

6
47,85 M Ft 550 000 Ft/m²
Eladó lakás, Cegléd
Frissítve: 30 napja

5
48,8 M Ft 625 641 Ft/m²
Eladó lakás, Cegléd

Fedezd fel a
hasonló lakásokat!Még további lakások Cegléden 50 M Ft körüli értékben
Tovább a hirdetésekhez Frissítve: 9 napja

6
47,85 M Ft 550 000 Ft/m²
Eladó lakás, Cegléd

Frissítve: 8 napja

20
48,5 M Ft 577 381 Ft/m²
Eladó lakás, Cegléd

Frissítve: 16 napja

20
48,5 M Ft 577 381 Ft/m²
Eladó lakás, Cegléd


Töltsd fel hirdetésed ingyenesen!
Egyszerű