+15 fotó
Zenga
Premier
Hirdetéskód: 8989805
Referenciaszám: M326269
Feltöltve: ma
Csongrád eladó téglalakás 2 szobás: 32,9 millió Ft
32,9 millió Ft
598,2 ezer Ft/m² *
* A m² árat a hirdető adta meg.
55 m²
2 szoba
3. emelet

Friss hirdetések, amiket nem találsz meg más ingatlankereső portálon.
Fedezd fel elsőként a Zenga Premier címkés eladó ingatlanokat! További részletek A Duna House, OTP Ingatlanpont, Otthon Centrum és további hálózatok új, kizárólagos hirdetéseinek nagy részét a zenga.hu és koltozzbe.hu ingatlankeresőn láthatod legelőször, és a feltöltéstől két hétig nem érhetők el más ingatlankeresőn!
Leírás
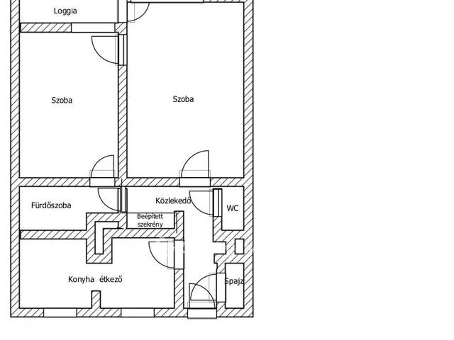
*** CSAK AZ OTP INGATLANPONT KÍNÁLATÁBAN! *** Csongrád központjában kínálunk megvételre egy felújítás állapotban lévő, 55 négyzetméteres erkélyes (loggia) lakást, mely ideális választás lehet azok számára, akik szeretnének egy kényelmes, jól elhelyezkedő otthont a város szívében. A lakás a 3. emeleten található, de nem zárószinti. A szobák ablakából a fák lombkoronáját lehet látni. Nem a forgalmas fő útra néznek, ezért csendesek. A társasházban rendezett a lépcsőház is. A lakásban 2 külön bejáratú világos szoba van. A kisebbet a fürdőszobából is meg lehet közelíteni, ezért hálószobának ideális. Külön helyiségben található a WC. A nagyobb szobából egy hangulatos loggia is nyílik, amely ideális egy reggeli kávé vagy egy nyugodt esti pihenés helyszínéül. A konyha praktikus kialakítású, melyhez egy étkező is kapcsolódik.
Az OTP Bankcsoport teljes körű ügyintézéssel áll az eladók és vevők rendelkezésére. A kínálatunkból választott ingatlan finanszírozásához kedvezményes hitelkonstrukciót biztosítunk. Az OTP Bank által közvetített Babaváró, CSOK+, Otthon Start vagy egyéb kölcsönök intézését vállaljuk. Az adásvételi szerződés megkötéséhez igény szerint ügyvédet biztosítunk. Irodáink Csongrád, Fő utca 54. és Szentes, Petőfi utca 12. (a buszpályaudvar felől) találhatók. Válasszuk ki együtt az Önnek legmegfelelőbb ajánlatot! Banki sorban állás nélkül!
Tulajdonságok
Téglalakás
Felújítandó
Gáz (konvektor)
1970
Nem adta meg a hirdető
Vedd fel a kapcsolatot a hirdetővel

+36 70 708 1
Hitelkalkulátor
Második évtől
141 587 Ft A 13. hónaptól
7,99%
Végig fix Futamidő: 20 év Banki visszahívás
Az OTP Bank munkatársai a neked megfelelő napszakban veszik fel veled a kapcsolatot. A becslés a hirdető által megadott adatokon alapul. A jelen tájékoztatás nem minősül ajánlattételnek és nem teljes körű, az egyes feltételek a hitelbírálat eredményétől függően változhatnak. Kérjük, a részletekről tájékozódj az OTP Bank fiókjaiban vagy az OTP Bank honlapján közzétett vonatkozó Üzletszabályzatokból és Hirdetményekből.
Vedd fel a kapcsolatot a hirdetővel

+36 70 708 1
Vedd fel a kapcsolatot a hirdetővel

+36 70 708 1
UI_KIT.CHARACTER_COUNTER__COMPONENT.ACTUAL_CHARACTER__SR_ONLY UI_KIT.CHARACTER_COUNTER__COMPONENT.MAXIMUM_CHARACTER__SR_ONLY
Hasonló eladó ingatlanok Csongrádon
Frissítve: 22 napja
12
34 millió Ft 656,3 ezer Ft/m²
Eladó lakás, Csongrád
Frissítve: 1 napja
1
34,9 millió Ft 505,8 ezer Ft/m²
Eladó lakás, Csongrád, Hársfa utca
Frissítve: 8 napja
18
I.
34,5 millió Ft 727,3 ezer Ft/m²
Eladó lakás, Tiszasziget


Fedezd fel a
hasonló lakásokat!Még további lakások Csongrád megyében 32,9 M Ft körüli értékben
Tovább a hirdetésekhez Frissítve: 8 napja
9
X.
34,5 millió Ft 727,3 ezer Ft/m²
Eladó lakás, Tiszasziget

Frissítve: 4 napja
1
32,5 millió Ft 677,1 ezer Ft/m²
Eladó lakás, Makó, Fűrész utca 9
Frissítve: 22 napja
10
32 millió Ft 653,1 ezer Ft/m²
Eladó lakás, Hódmezővásárhely
