+10 fotó
Hirdetéskód: 8900694
Referenciaszám: P4803-1-01-02-204
Feltöltve: ma
Debrecen eladó téglalakás 3 szobás: 94,05 millió Ft
94,05 millió Ft
1 516 871 Ft/m²
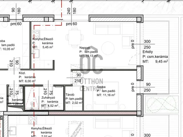
62 m²
3 szoba
2. emelet
Leírás
Projekt bemutatása
EXKLUZÍV ÚJ ÉPÍTÉSŰ LAKÁSOK DEBRECEN BELVÁROSÁBAN
Prémium életminőség | Időtálló érték | Bevezető ár: 1.399.000 Ft/m²
ELŐÉRTÉKESÍTÉS ALATT EXTRA NM-ÁR KEDVEZMÉNYEKKEL MÁRCIUS 1 -ig.
Standard felszereltségű lakásokra-hitelmentes konstrukció esetén, GOLD fizetési konstrukcióval ! 1.324.000 Ft/nm
Debrecen belvárosának közvetlen közelében, kisvárosias eleganciával övezett környezetben valósul meg a Társasház, ahol a modern városi luxus és a nyugodt, kifinomult életstílus találkozik.
A saroktelken elhelyezkedő épület elhelyezkedése kivételes: könnyű városi hozzáférés, mégis nyugodt, rendezett környezet – ideális választás azok számára, akik nem kötnek kompromisszumot.
Prémium lakáskoncepció
•Garzon, nappali + 1 és nappali + 2 szobás lakások
•Erkélyes és loggiás kialakítás
•Lakásméretek: 43–66 m²
•Földszinti lakások exkluzív, kizárólagos kertkapcsolattal, a hirdetési ár nem tartalmazza a zöldterület árát ( 50.000 Ft/m2)
Letisztult alaprajzok, kiváló térérzet, természetes fény – minden részlet az élhető luxust szolgálja.
Belső kert – privát városi nyugalom
A társasház belső udvara kertépítészeti terv alapján kialakított, parkosított pihenőkertként és közösségi térként funkcionál, ahol a zöld környezet diszkrét hátteret ad a mindennapi feltöltődéshez.
Diszkrét parkolási megoldások
•Pinceszinten kialakított, korszerű mélygarázs
•Saját teremgarázs parkolóhely vásárolható: 10.900.000 Ft
Felszini parkóló vásárlási lehetőség elektromos autó töltő kialakitással!
Magas műszaki tartalom – valódi prémium
•Hővisszanyerős gépészeti rendszer
•Padlófűtés minden lakásban
•Fan-coil hűtés a maximális komfortért
•POROTHERM X-Therm Rapid falazat, 15 cm hőszigeteléssel
•Egyedi gyártású, háromrétegű üvegezésű nyílászárók
•Távirányítású, elektromos alumínium redőnyök rejtett tokban
•Prémium szaniterek: RAVAK, HANSGROHE
•Falba épített WC-tartályok
•8 személyes, akadálymentes, átmenő lift a pinceszinttől a III. emeletig
Személyre szabható luxus
•3 felszereltségi szint: Standard | Médium | Prémium
•Többféle fizetési konstrukció, melyekkel exkluzív kedvezmények érhetők el
Ez nem csupán egy lakás, hanem egy életstílus.
Ideális választás azoknak, akik hosszú távon értékálló otthont vagy prémium befektetést keresnek Debrecen egyik legjobb lokációjában.
Részletes információ, elérhető lakások és alaprajzok érdeklődés esetén.
Tulajdonságok
Téglalakás
Új építésű
Hőszivattyú
2027
9,5 m²
Nem adta meg a hirdető
Vedd fel a kapcsolatot a hirdetővel
+36 70 465 6
Hitelkalkulátor
Második évtől
404 731 Ft A 13. hónaptól
7,99% 8,49%
Végig fix Futamidő: 20 év Banki visszahívás
Az OTP Bank munkatársai a neked megfelelő napszakban veszik fel veled a kapcsolatot.Hitelfelvétel esetén akár egy héttel rövidebb lehet az ügyintézés.
Ez az ingatlan a nálunk meglévő adatok alapján azonnali értékbecslésre alkalmas lehet.
A becslés a hirdető által megadott adatokon alapul. A jelen tájékoztatás nem minősül ajánlattételnek és nem teljes körű, az egyes feltételek a hitelbírálat eredményétől függően változhatnak. Kérjük, a részletekről tájékozódj az OTP Bank fiókjaiban vagy az OTP Bank honlapján közzétett vonatkozó Üzletszabályzatokból és Hirdetményekből.
Vedd fel a kapcsolatot a hirdetővel
+36 70 465 6
Vedd fel a kapcsolatot a hirdetővel
+36 70 465 6
UI_KIT.CHARACTER_COUNTER__COMPONENT.ACTUAL_CHARACTER__SR_ONLY UI_KIT.CHARACTER_COUNTER__COMPONENT.MAXIMUM_CHARACTER__SR_ONLY
Hasonló eladó ingatlanok Belváros városrészben
Frissítve: 4 napja
2
98,18 M Ft 1 227 260 Ft/m²
Eladó lakás, Debrecen, Belváros

Frissítve: 4 napja
6
98,18 M Ft 1 212 108 Ft/m²
Eladó lakás, Debrecen, Belváros
Frissítve: 4 napja
6
91,58 M Ft 1 366 803 Ft/m²
Eladó lakás, Debrecen, Belváros


Fedezd fel a
hasonló lakásokat!Még további lakások Debrecen, Belváros városrészben 94,05 M Ft körüli értékben
Tovább a hirdetésekhez Frissítve: 4 napja
7
95,93 M Ft 1 128 571 Ft/m²
Eladó lakás, Debrecen, Belváros

Frissítve: 4 napja
6
91,85 M Ft 1 350 782 Ft/m²
Eladó lakás, Debrecen, Belváros

Frissítve: 4 napja
9
91,79 M Ft 1 412 170 Ft/m²
Eladó lakás, Debrecen, Belváros


