+14 fotó
Hirdetéskód: 8737133
Referenciaszám: 122450
Frissítve: 2 napja
Debrecen eladó téglalakás 3 szobás: 115,92 millió Ft
115,92 millió Ft
1 505 468 Ft/m²
77 m²
3 szoba
földszint
NYULAS - ÚJÉPÍTÉSŰ FÖLDSZINTI LAKÁS KERTKAPCSOLATTAL
Újépítésű, kertkapcsolatos 2 hálószobás lakás eladó – Debrecen, Nyulas
Debrecen egyik legexkluzívabb újépítésű társasházában, a Lóverseny utcában eladó egy földszinti, kertkapcsolatos lakás, amely kiváló választás akár saját otthonnak, akár rendelőnek, irodának vagy befektetésnek.
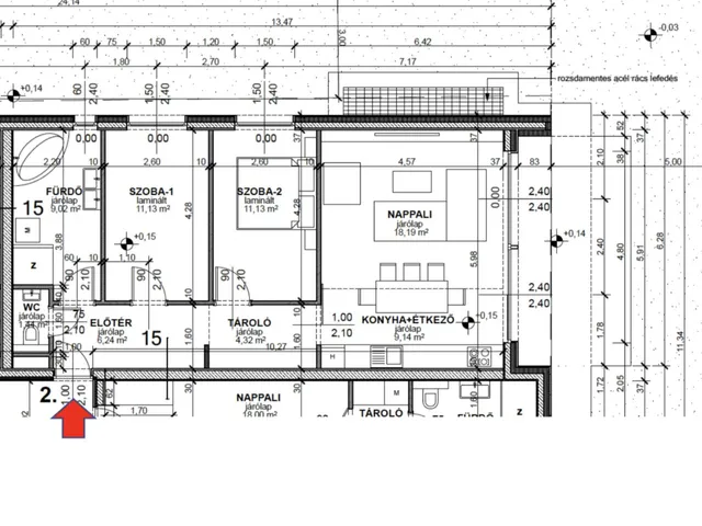
A lakás 76,5 m² összterületű, ebből a belső lakótér 70,61 m², a terasz 5,89 m², valamint 83 m² kizárólagos használatú kert tartozik hozzá.
Elosztás: nappali + konyha-étkező, 2 külön nyíló hálószoba, fürdő, külön WC, előtér, tároló és terasz.
Az elrendezés ideális akár családoknak, akár olyan vállalkozásoknak, akik nyugodt, zöldövezeti környezetben működnének (pl. orvosi rendelő, kozmetika, iroda, ügyvédi iroda).
A társasház A+ energetikai besorolású, talajszondás hőszivattyús rendszerrel és fan-coil fűtés-hűtéssel épül, így a lakások alacsony fenntartásúak és környezetbarátok.
Főbb jellemzők:
Lakás alapterülete: 70,61 m²
Terasz: 5,89 m²
Kert: 83 m² kizárólagos használat
A+ energiaosztály
Fan-coil hűtés-fűtés, padlófűtés a fürdőben
3 rétegű nyílászárók, prémium hő- és hangszigetelés
Okosotthon előkészítés, riasztórendszer, elektromos autótöltés előkészítés (opcionális)
Zárt, fedett parkolóhely vásárolható a pincében (13,9–14,1 M Ft között)
Kiváló elhelyezkedés: zöldövezet, közel az egyetemhez és a belvároshoz
Ár: 115 921 000 Ft
Átadás: 2026
Részletes műszaki információkért és bemutató anyagért hívjon bizalommal:
Bécsiné Kocsár Aliz – +36 20 502 2460
Tulajdonságok
Téglalakás
Új építésű
Nem adta meg a hirdető
Vedd fel a kapcsolatot a hirdetővel
+36 20 502 2
Hitelkalkulátor
Második évtől
498 871 Ft A 13. hónaptól
7,99% 8,49%
Végig fix Futamidő: 20 év Banki visszahívás
Az OTP Bank munkatársai a neked megfelelő napszakban veszik fel veled a kapcsolatot.Hitelfelvétel esetén akár egy héttel rövidebb lehet az ügyintézés.
Ez az ingatlan a nálunk meglévő adatok alapján azonnali értékbecslésre alkalmas lehet.
A becslés a hirdető által megadott adatokon alapul. A jelen tájékoztatás nem minősül ajánlattételnek és nem teljes körű, az egyes feltételek a hitelbírálat eredményétől függően változhatnak. Kérjük, a részletekről tájékozódj az OTP Bank fiókjaiban vagy az OTP Bank honlapján közzétett vonatkozó Üzletszabályzatokból és Hirdetményekből.
Vedd fel a kapcsolatot a hirdetővel
+36 20 502 2
Vedd fel a kapcsolatot a hirdetővel
+36 20 502 2
UI_KIT.CHARACTER_COUNTER__COMPONENT.REMAINING_SPACE__SR_ONLYUI_KIT.CHARACTER_COUNTER__COMPONENT.MAXIMUM_CHARACTER__SR_ONLY
Hasonló eladó ingatlanok Nyulas városrészben
Frissítve: 2 napja
16
122,09 M Ft 1 419 698 Ft/m²
Eladó lakás, Debrecen, Nyulas
Feltöltve: 1 napja
1
119,9 M Ft 1 498 750 Ft/m²
Eladó lakás, Debrecen, Nyulas
Frissítve: 2 napja
17
121,89 M Ft 1 434 047 Ft/m²
Eladó lakás, Debrecen, Nyulas

Fedezd fel a
hasonló lakásokat!Még további lakások Debrecenben 115,92 M Ft körüli értékben
Tovább a hirdetésekhez Frissítve: 25 napja
5
Belvárosi luxus társasház
118,94 M Ft 1 278 883 Ft/m²
Eladó lakás, Debrecen, Belváros

Frissítve: 24 napja
17
125 M Ft 1 644 737 Ft/m²
Eladó lakás, Debrecen, Belváros

Frissítve: 25 napja
7
120,46 M Ft 1 295 271 Ft/m²
Eladó lakás, Debrecen, Belváros

