+11 fotó
Hirdetéskód: 8897222
Referenciaszám: 5120
Feltöltve: 1 napja
Érd eladó téglalakás 3 szobás: 90,52 millió Ft
90,52 millió Ft
1 331 147 Ft/m²
68 m²
3 szoba
1. emelet
Kód: 5120
Hivatkozzon erre, kód: 5120
ELŐÉRTÉKESÍTÉS KERETÉBEN MOST 2mFt-TAL LEKÖTHETŐK A LAKÁSOK!
- MODERN, ENERGIATAKARÉKOS LAKÁSOK "H" TARIFÁVAL
- PRÉMIUM KATEGÓRIA
- HŐSZIVATTYÚ, PADLÓFŰTÉS, 1 DB. FAN-COIL (hűtő-fűtő)
- GARÁZS (3mFt / db.) VAGY FELSZÍNI BEÁLLÓ (1.5mFt / db.) + TÁROLÓ (2mFt / db., kivéve a nagy) - kötelezően megvásárolandó
- TÁRSASHÁZI ALAPÍTÓ OKIRAT, SAJÁT ALBETÉT
Érd Tisztviselőtelepen kertvárosias környezetben új építésű 16 lakásos társasházban alacsony fenntartású, prémium kategóriás nappali + 1-2-3 szobás lakások saját kerttel, erkéllyel, garázzsal / gk. beállóval, tárolóval, igény szerinti befejezéssel leköthetők!
Várható átadás: 2027. tavasz.
A kivitelező több éves tapasztalattal, számos referenciával rendelkezik! A fotók között már eladott ingatlanok képei láthatók!
JELEN HIRDETÉSBEN SZEREPLŐ LAKÁS:
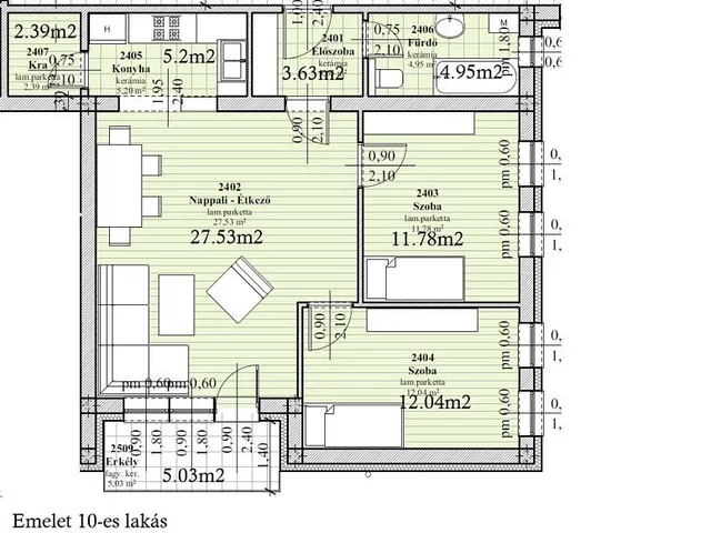
Emelet 10-es lakás / nappali + 2 szoba (67.52m2 + erkély 5.03m2 + tároló + parkoló), Ára: 90.518mFt + a tároló + a parkoló: előszoba (3.63m2), nappali (27.53m2), konyha (5.2m2), kamra (2.39m2), fürdőszoba (4.95m2), 2 szoba (11.78m2, 12.04m2). /Kód: 5120/
AZ ÉPÜLETBEN TALÁLHATÓ TOVÁBBI LAKÁS KÍNÁLATOK:
FÖLDSZINT:
1-es lakás / nappali + 2 szoba (51.38m2 + saját kert + tároló + parkoló), Ára: 66.9mFt + a tároló + a parkoló: előszoba (2.95m2), nappali (17.9m2), konyha (5.27m2), közlekedő (3.91m2), fürdőszoba (4m2), 2 szoba (9.28m2, 8.07m2). /Kód: 5111/
2-es lakás / nappali + 2 szoba (60.03m2 + saját kert + tároló + parkoló), Ára: 78mFt + a tároló + a parkoló: előszoba (4.4m2), nappali (23.2m2), konyha (5.05m2), közlekedő (1.46m2), fürdőszoba (4.79m2), 2 szoba (9.71m2, 11.42m2). /Kód: 5112/
3-as lakás / nappali + 2 szoba (52.66m2 + tároló + parkoló), Ára: 68.5mFt + a tároló + a parkoló: előszoba (2.8m2), wc (1.26m2), nappali (19.93m2) konyha (5.51m2), közlekedő (1.87m2), fürdőszoba (3.91m2), 2 szoba (8.28m2, 9.1m2). /Kód: 5113/
4-es lakás: ELADVA!
5-ös lakás / nappai + 2 szoba (70.9m2 + saját kert + tároló + parkoló), Ára: 91.9mFt + a tároló + a parkoló: előszoba (7.82m2), nappali (23.67m2), konyha (6.2m2), kamra (1.92m2), közlekedő (4.07m2), fürdőszoba (4.96m2), 2 szoba (11.3m2 / db.). /Kód: 5115/
6-os lakás / nappali + 1 szoba (49.71m2 + saját kert + tároló + parkoló), Ára: 64.5mFt + a tároló + a parkoló: előszoba (9.6m2), nappali (17.33m2), konyha (4.2m2), kamra (2.4m2), wc (1.7m2), fürdőszoba (4.08m2), szoba (10.4m2). /Kód: 5116/
EMELET:
7-es lakás / nappali + 2 szoba (51.54m2 + erkély 4.81m2 + tároló + parkoló), Ára: 69.886mFt + a tároló + a parkoló: előszoba (2.95m2), nappali (18.06m2), konyha (5.27m2), közlekedő (3.91m2), fürdőszoba (4m2), 2 szoba (9.28m2, 8.07m2). /Kód: 5117/
8-as lakás / nappali + 2 szoba (60.2m2 + erkély 4.74m2 + tároló + parkoló), Ára: 80.744mFt + a tároló + a parkoló: előszoba (4.4m2), nappali (23.37m2), konyha (5.05m2), közlekedő (1.46m2), fürdőszoba (4.79m2), 2 szoba (9.71m2, 11.42m2). /Kód: 5118/
9-es lakás / nappali + 2 szoba (61.46m2 + erkély 4.09m2 + tároló + parkoló), Ára: 82.354mFt + a tároló + a parkoló: előszoba (2.8m2), wc (1.26m2), nappali (19.41m2), konyha (5.51m2), közlekedő (2.31m2), fürdőszoba (5.03m2), 2 szoba (10.56m2, 14.58m2). /Kód: 5119/
11-es lakás / nappali + 3 szoba (107.65m2 + erkély 9.83m2 + tároló + parkoló), Ára: 140.398mFt + a tároló + a parkoló: előszoba (6.39m2), wc (3.15m2), nappali (35.61m2), konyha (7.8m2), kamra (2.52m2), közlekedő (7.31m2), fürdőszoba (6.8m2), 3 szoba (12.87m2, 12.08m2, 13.12m2). /Kód: 5121/
12-es lakás / nappali + 2 szoba (63.08m2 + erkély 7.7m2 + tároló + parkoló), Ára: 86.52mFt + a tároló + a parkoló: előszoba (4.59m2), wc (2.03m2), nappali (22.11m2), konyha (6m2), közlekedő (2.7m2), gardrób (1.95m2), fürdőszoba (4.48m2), 2 szoba (9.38m2, 9.84m2). /Kód: 5122/
13-as lakás / nappali + 2 szoba (63.99m2 + erkély 7.7m2 + tároló + parkoló), Ára: 87.62mFt + a tároló + a parkoló: előszoba (4.32m2), wc (2.03m2), nappali (21.61m2), konyha (7.11m2), közlekedő (2.2m2), gardrób (2.31m2), fürdőszoba (5.59m2), 2 szoba (9.27m2, 9.55m2). /Kód: 5123/
TETŐTÉR:
14-es lakás / nappali + 3 szoba + 2 fürdő (nettó 153.7m2, hasznos 101.31m2 + erkély 4.74m2 + tároló + parkoló), Ára: 123.844mFt + a tároló + a parkoló: előszoba (5.23m2), konyha (n° 150.1m2, haszn. 6.45m2) - étkező (n° 10.94m2, haszn. 6.92m2), közlekedő (3.91m2), nappali (33.97m2), közlekedő (2.02m2), 2 fürdőszoba (3.26m2, 6.59m2), gardrób (n° 16.12m2, haszn. 6.45m2), 3 szoba (n° 24.36m2 / haszn. 8.26m2, n° 16.53m2 / haszn. 10.23m2, n° 15.76m2 / haszn. 8.02m2). /Kód: 5124/
15-ös lakás / nappali + 3 szoba + 2 fürdő (nettó 112.02m2, hasznos 81.04m2 + erkély 5.03m2 + tároló + parkoló), Ára: 84.018mFt + a tároló + a parkoló: előszoba (5.44m2), konyha (8.14m2), nappali (33.19m2), közlekedő (2.14m2), 2 fürdőszoba (2.28m2, 7.24m2), gardrób (n° 2.4m2, haszn. 0.24m2), 3 szoba (n° 19.83m2 / haszn. 8.54m2, n° 17.94m2 / haszn. 5.9m2, n° 13.42m2 / haszn. 7.93m2). /Kód: 5125/
16-os lakás / nappali + 3 szoba (nettó 84.85m2, hasznos 68.87m2 + erkély 7.28m2 + tá
Tulajdonságok
Téglalakás
3
Új építésű
Hőszivattyú
2026
5 m²
Nem adta meg a hirdető
Vedd fel a kapcsolatot a hirdetővel
Otthon Plusz Ingatlaniroda Az iroda összes hirdetése
+36 20 582 9
Hitelkalkulátor
Második évtől
389 548 Ft A 13. hónaptól
7,99% 8,49%
Végig fix Futamidő: 20 év Banki visszahívás
Az OTP Bank munkatársai a neked megfelelő napszakban veszik fel veled a kapcsolatot.Hitelfelvétel esetén akár egy héttel rövidebb lehet az ügyintézés.
Ez az ingatlan a nálunk meglévő adatok alapján azonnali értékbecslésre alkalmas lehet.
A becslés a hirdető által megadott adatokon alapul. A jelen tájékoztatás nem minősül ajánlattételnek és nem teljes körű, az egyes feltételek a hitelbírálat eredményétől függően változhatnak. Kérjük, a részletekről tájékozódj az OTP Bank fiókjaiban vagy az OTP Bank honlapján közzétett vonatkozó Üzletszabályzatokból és Hirdetményekből.
Vedd fel a kapcsolatot a hirdetővel
Otthon Plusz Ingatlaniroda Az iroda összes hirdetése
+36 20 582 9
Vedd fel a kapcsolatot a hirdetővel
Otthon Plusz Ingatlaniroda Az iroda összes hirdetése
+36 20 582 9
UI_KIT.CHARACTER_COUNTER__COMPONENT.ACTUAL_CHARACTER__SR_ONLY UI_KIT.CHARACTER_COUNTER__COMPONENT.MAXIMUM_CHARACTER__SR_ONLY
Hasonló eladó ingatlanok Érden
Frissítve: 2 napja
4
89 M Ft 1 369 231 Ft/m²
Eladó lakás, Érd
Frissítve: 2 napja
18
86,9 M Ft 987 500 Ft/m²
Eladó lakás, Érd

Frissítve: 2 napja
4
89 M Ft 1 369 231 Ft/m²
Eladó lakás, Érd

Fedezd fel a
hasonló lakásokat!Még további lakások Érden 90,52 M Ft körüli értékben
Tovább a hirdetésekhez Frissítve: ma
17
94,9 M Ft 1 300 000 Ft/m²
Eladó lakás, Érd, Bakonyi utca

Frissítve: 2 napja
17
94,9 M Ft 1 300 000 Ft/m²
Eladó lakás, Érd

Frissítve: ma
17
94,9 M Ft 1 300 000 Ft/m²
Eladó lakás, Érd

