+10 fotó
Hirdetéskód: 8988626
Referenciaszám: 210600664
Feltöltve: ma
Győr eladó téglalakás 1 szobás: 45,61 millió Ft
45,61 millió Ft
1,27 millió Ft/m²
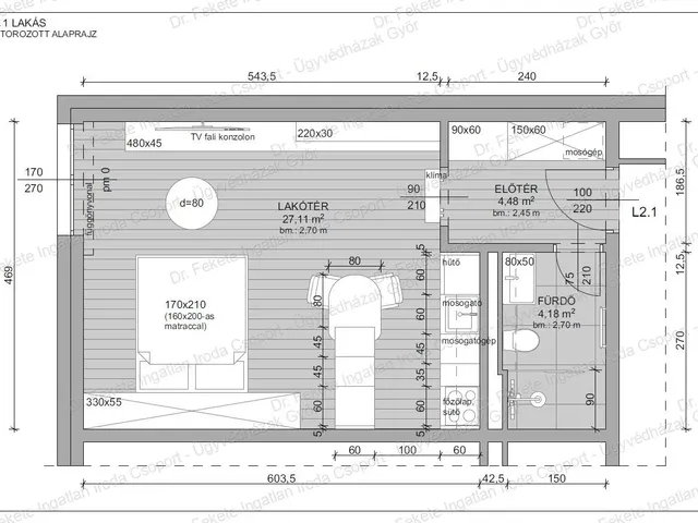
36 m²
1 szoba
3. emelet
IDEÁLIS ELSŐ OTTHON VAGY BIZTOS BEFEKTETÉS!
Győr egyik legkeresettebb városrészében, Nádorváros dinamikusan fejlődő környezetében kínálunk megvételre egy új építésű, 15 lakásos társasház egyik kiváló adottságú lakását.
A lakások 30 %-a már elkelt. NE MARADJ LE! Fűtéskész értékesítés.
A 3. emeleten elhelyezkedő, DK-i tájolású, franciaerkélyes, 35,77 nm-es garzonlakás tökéletes választás:
– első lakásnak,
– kiadásra (albérlet / rövid táv),
– vagy értékálló befektetésként.
Világos, élhető tér – alacsony rezsivel
A DK-i fekvésnek köszönhetően a lakás egész nap világos, míg az A / A+ energetikai besorolás garantálja az alacsony fenntartási költségeket – ami ma már nem extra, hanem elvárás.
2026.05.30-ig: - 2 M Ft kedvezmény a garázs árából, minden lakás mellé!
Műszaki tartalom – ami hosszú távon számít
3 rétegű hőszigetelt műanyag nyílászárók
Redőny előkészítés
20–30 cm vasbeton teherhordó szerkezet
20 cm kőzetgyapot homlokzati hőszigetelés
Intenzív zöldtető rendszer
Közösségi tetőterasz
Többrétegű talajnedvesség elleni szigetelés
Gépészet:
Központi gázkazán (2 db)
Padlófűtés – modern komfort
Elektromos törölközőszárító - kiállás
Klíma előkészítés - opcionális, külön fizetendő
Extra lehetőségek (limitált darabszám!)
– Mélygarázs beálló: 8,5 M Ft / db (16 db)
– Tároló (2–2,59 nm): 1,75 M Ft / db (6 db)
Átadás: Fűtéskész állapotban, tervezetten 2027-ben
Miért most érdemes lépned?
– Új építés → nincs felújítási kockázat
– Nádorváros → stabil, könnyen kiadható lokáció
– Kis méret → magas hozam, gyors bérbeadás
– Korai foglalás → jobb ár és választék
Ne csak gondolkodj rajta – foglald le most, és biztosítsd a helyed Győr egyik legígéretesebb projektjében!
A képek és látványtervek az értékesítést szolgálják, illusztrációk.
Tulajdonságok
Téglalakás
5
Új építésű
Gázkazán
2026
A+
Vedd fel a kapcsolatot a hirdetővel
Hartmann-né Ildikó Viki
Dr. Fekete Ingatlan Iroda Csoport - Ügyvédházak Győr
Az iroda összes hirdetése +36 20 481 3
Hitelkalkulátor
Második évtől
196 271 Ft A 13. hónaptól
7,99% 8,49%
Végig fix Futamidő: 20 év Banki visszahívás
Az OTP Bank munkatársai a neked megfelelő napszakban veszik fel veled a kapcsolatot.Hitelfelvétel esetén akár egy héttel rövidebb lehet az ügyintézés.
Ez az ingatlan a nálunk meglévő adatok alapján azonnali értékbecslésre alkalmas lehet.
A becslés a hirdető által megadott adatokon alapul. A jelen tájékoztatás nem minősül ajánlattételnek és nem teljes körű, az egyes feltételek a hitelbírálat eredményétől függően változhatnak. Kérjük, a részletekről tájékozódj az OTP Bank fiókjaiban vagy az OTP Bank honlapján közzétett vonatkozó Üzletszabályzatokból és Hirdetményekből.
Vedd fel a kapcsolatot a hirdetővel
Hartmann-né Ildikó Viki
Dr. Fekete Ingatlan Iroda Csoport - Ügyvédházak Győr
Az iroda összes hirdetése +36 20 481 3
Vedd fel a kapcsolatot a hirdetővel
Hartmann-né Ildikó Viki
Dr. Fekete Ingatlan Iroda Csoport - Ügyvédházak Győr
Az iroda összes hirdetése +36 20 481 3
UI_KIT.CHARACTER_COUNTER__COMPONENT.ACTUAL_CHARACTER__SR_ONLY UI_KIT.CHARACTER_COUNTER__COMPONENT.MAXIMUM_CHARACTER__SR_ONLY
Hasonló eladó ingatlanok Nádorváros városrészben
Frissítve: 2 hónapja
12
46,5 millió Ft 845,5 ezer Ft/m²
Eladó lakás, Győr, Nádorváros
Frissítve: 21 napja
20
43,9 millió Ft 1,05 millió Ft/m²
Eladó lakás, Győr, Nádorváros
Frissítve: 9 napja
9
49,9 millió Ft 941,5 ezer Ft/m²
Eladó lakás, Győr, Nádorváros


Fedezd fel a
hasonló lakásokat!Még további lakások Győr, Nádorváros városrészben 45,61 M Ft körüli értékben
Tovább a hirdetésekhez Feltöltve: 21 napja
1
45 millió Ft 849,1 ezer Ft/m²
Eladó lakás, Győr, Nádorváros
Frissítve: ma
16
47,09 millió Ft 1,27 millió Ft/m²
Eladó lakás, Győr, Nádorváros, Szigethy A L3
Frissítve: 5 napja
20
48,9 millió Ft 922,6 ezer Ft/m²
Eladó lakás, Győr, Nádorváros
