Hirdetéskód: 8866736
Referenciaszám: 196400852
Frissítve: 22 napja
Győr eladó téglalakás 2 szobás: 49,99 millió Ft
49,99 millió Ft
1,11 millió Ft/m²
45 m²
2 szoba
földszint
Nappali + 1 szobás lakás
Győr-Szabadhegy mellékutcájában új építésű 28 lakásos társasházban különböző alapterületű lakások eladók.
A modern társasházban nappali + 1 szobás, nappali + 2 szobás és nappali + 3 szobás lakások kerülnek kialakításra. A földszinti lakások kertkapcsolattal és terasszal, az emeleti lakások erkéllyel, galériával és tetőterasszal, a penthouse lakások tetőterasszal rendelkeznek.
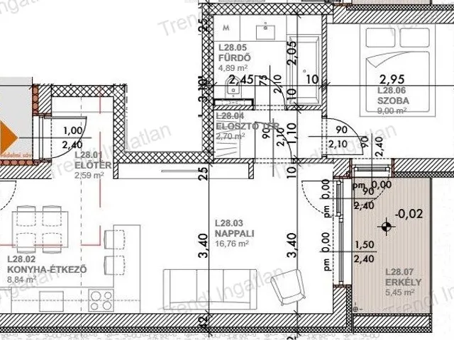
A meghirdetett földszinten található 44,78 nm-es lakásban amerikai konyhás nappali, szoba, fürdőszoba és előtér található. Nappaliból 5,45 nm-es terasz nyílik.
A lakás fűtéskész ára: 49.990.000 Ft. Kulcsrakész befejezés kérhető.
Gépkocsibeállló ára: 2.900.000 Ft
Fedett gépkocsibeálló ára: 4.900.000 Ft
Lehetőség van tároló vásárlására is, ára: 3.500.000 Ft – 3.900.000 Ft
A társasház 30 cm-es falazóelemből, 15 cm-es homlokzati hőszigeteléssel épül. A homlokzati műanyag nyílászárók 3 rétegűek. Az ingatlanok fűtése kondenzációs gázkazánnal történik, lakásonként egyedi hőmennyiségmérővel és hőmérséklet szabályozó termosztáttal, hőleadás padlófűtéssel. Az ár 1 db klímaelőkészítést tartalmaz.
Várható átadás: 2027 tavasz
Bővebb információkért forduljon hozzám bizalommal.
Hétköznap és hétvégén is várom hívását!
Díjmentes, bankfüggetlen hitelügyintézéssel állunk rendelkezésére.
A hirdetésben feltüntetett képek illusztrációk.
Tulajdonságok
Téglalakás
1
Új építésű
Gázkazán
Nem adta meg a hirdető
Vedd fel a kapcsolatot a hirdetővel
+36 70 886 6
Hitelkalkulátor
Második évtől
215 134 Ft A 13. hónaptól
7,99% 8,49%
Végig fix Futamidő: 20 év Banki visszahívás
Az OTP Bank munkatársai a neked megfelelő napszakban veszik fel veled a kapcsolatot.Hitelfelvétel esetén akár egy héttel rövidebb lehet az ügyintézés.
Ez az ingatlan a nálunk meglévő adatok alapján azonnali értékbecslésre alkalmas lehet.
A becslés a hirdető által megadott adatokon alapul. A jelen tájékoztatás nem minősül ajánlattételnek és nem teljes körű, az egyes feltételek a hitelbírálat eredményétől függően változhatnak. Kérjük, a részletekről tájékozódj az OTP Bank fiókjaiban vagy az OTP Bank honlapján közzétett vonatkozó Üzletszabályzatokból és Hirdetményekből.
Vedd fel a kapcsolatot a hirdetővel
+36 70 886 6
Vedd fel a kapcsolatot a hirdetővel
+36 70 886 6
UI_KIT.CHARACTER_COUNTER__COMPONENT.ACTUAL_CHARACTER__SR_ONLY UI_KIT.CHARACTER_COUNTER__COMPONENT.MAXIMUM_CHARACTER__SR_ONLY
Hasonló eladó ingatlanok Szabadhegy városrészben
Frissítve: 22 napja
15
47,9 millió Ft 638,7 ezer Ft/m²
Eladó lakás, Győr, Szabadhegy
Frissítve: 22 napja
14
45,71 millió Ft 1,11 millió Ft/m²
Eladó lakás, Győr, Szabadhegy
Frissítve: 1 napja
15
47,9 millió Ft 748,4 ezer Ft/m²
Eladó lakás, Győr, Szabadhegy


Fedezd fel a
hasonló lakásokat!Még további lakások Győr, Szabadhegy városrészben 49,99 M Ft körüli értékben
Tovább a hirdetésekhez Frissítve: 6 napja
18
47,9 millió Ft 760,3 ezer Ft/m²
Eladó lakás, Győr, Szabadhegy
Frissítve: 1 napja
10
48 millió Ft 1,33 millió Ft/m²
Eladó lakás, Győr, Szabadhegy

Frissítve: 22 napja
1
48,99 millió Ft 889,1 ezer Ft/m²
Eladó lakás, Győr, Szabadhegy

