+1 fotó
Hirdetéskód: 8866738
Referenciaszám: 196400854
Feltöltve: 1 napja
Győr eladó téglalakás 3 szobás: 57,99 millió Ft
57,99 millió Ft
1 094 151 Ft/m²
53 m²
3 szoba
1. emelet
Tágas nappali + 1 szobás lakás
Győr-Szabadhegy mellékutcájában új építésű 28 lakásos társasházban különböző alapterületű lakások eladók.
A modern társasházban nappali + 1 szobás, nappali + 2 szobás és nappali + 3 szobás lakások kerülnek kialakításra. A földszinti lakások kertkapcsolattal és terasszal, az emeleti lakások erkéllyel, galériával és tetőterasszal, a penthouse lakások tetőterasszal rendelkeznek.
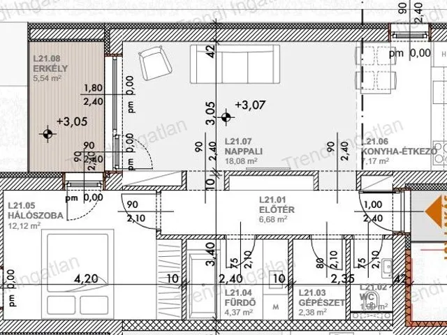
A meghirdetett 1. emeleten található 52,66 nm-es lakásban amerikai konyhás nappali, szoba, fürdőszoba, külön WC, közlekedő, háztartási helyiség/gépészet és előtér található. Nappaliból 5,54 nm-es erkély nyílik.
A lakás fűtéskész ára: 57.990.000 Ft. Kulcsrakész befejezés kérhető.
Gépkocsibeállló ára: 2.900.000 Ft
Fedett gépkocsibeálló ára: 4.900.000 Ft
Lehetőség van tároló vásárlására is, ára: 3.500.000 Ft – 3.900.000 Ft
A társasház 30 cm-es falazóelemből, 15 cm-es homlokzati hőszigeteléssel épül. A homlokzati műanyag nyílászárók 3 rétegűek. Az ingatlanok fűtése kondenzációs gázkazánnal történik, lakásonként egyedi hőmennyiségmérővel és hőmérséklet szabályozó termosztáttal, hőleadás padlófűtéssel. Az ár 1 db klímaelőkészítést tartalmaz.
Várható átadás: 2027 tavasz
Bővebb információkért forduljon hozzám bizalommal.
Hétköznap és hétvégén is várom hívását!
Díjmentes, bankfüggetlen hitelügyintézéssel állunk rendelkezésére.
A hirdetésben feltüntetett képek illusztrációk.
Tulajdonságok
Téglalakás
1
Új építésű
Gázkazán
Nem adta meg a hirdető
Vedd fel a kapcsolatot a hirdetővel
+36 70 886 6
Hitelkalkulátor
Második évtől
249 563 Ft A 13. hónaptól
7,99% 8,49%
Végig fix Futamidő: 20 év Banki visszahívás
Az OTP Bank munkatársai a neked megfelelő napszakban veszik fel veled a kapcsolatot.Hitelfelvétel esetén akár egy héttel rövidebb lehet az ügyintézés.
Ez az ingatlan a nálunk meglévő adatok alapján azonnali értékbecslésre alkalmas lehet.
A becslés a hirdető által megadott adatokon alapul. A jelen tájékoztatás nem minősül ajánlattételnek és nem teljes körű, az egyes feltételek a hitelbírálat eredményétől függően változhatnak. Kérjük, a részletekről tájékozódj az OTP Bank fiókjaiban vagy az OTP Bank honlapján közzétett vonatkozó Üzletszabályzatokból és Hirdetményekből.
Vedd fel a kapcsolatot a hirdetővel
+36 70 886 6
Vedd fel a kapcsolatot a hirdetővel
+36 70 886 6
UI_KIT.CHARACTER_COUNTER__COMPONENT.REMAINING_SPACE__SR_ONLYUI_KIT.CHARACTER_COUNTER__COMPONENT.MAXIMUM_CHARACTER__SR_ONLY
Hasonló eladó ingatlanok Szabadhegy városrészben
Frissítve: 7 napja
1
54,99 M Ft 1 000 911 Ft/m²
Eladó lakás, Győr, Szabadhegy

Frissítve: 7 napja
17
55,9 M Ft 965 458 Ft/m²
Eladó lakás, Győr, Szabadhegy

Frissítve: 26 napja
1
54,99 M Ft 859 219 Ft/m²
Eladó lakás, Győr, Szabadhegy


Fedezd fel a
hasonló lakásokat!Még további lakások Győr, Szabadhegy városrészben 57,99 M Ft körüli értékben
Tovább a hirdetésekhez Frissítve: 2 napja
13
57,9 M Ft 998 276 Ft/m²
Eladó lakás, Győr, Szabadhegy

Frissítve: 10 napja
7
62,22 M Ft 1 131 224 Ft/m²
Eladó lakás, Győr, Szabadhegy
Frissítve: ma
15
54,9 M Ft 915 000 Ft/m²
Eladó lakás, Győr, Szabadhegy

