+1 fotó
Hirdetéskód: 8817477
Referenciaszám: 52694
Frissítve: 11 napja
Győr eladó téglalakás 2 szobás: 56,07 millió Ft
56,07 millió Ft
1 121 400 Ft/m² *
* A m² árat a hirdető adta meg.
50 m²
2 szoba
1. emelet
Leírás
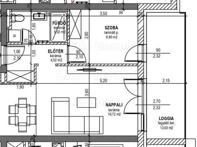
Lido Home győri irodája eladásra kínál egy ÚJ ÉPITÉSŰ lakóparkban ENERGIATAKARÉKOS lakásokat Győr-Szitásdomb lakóparkban! Az ingatlan közigazgatásilag Vámosszabadihoz tartozik, de fizikailag Győrhöz szervesen kapcsolódva helyezkedik el a Szitásdomb lakóparkban. A 35 lakásos, modern épület kivitelezése már zajlik, az átadás 2026 őszre várható! A kínálatban különböző méretű, nappali + 1 hálószobás vagy nappali + 2 hálószobás lakások szerepelnek, amelyek mindegyike tágas erkéllyel és praktikus elosztással rendelkezik. Az otthonok világosak, jól szigeteltek, így alacsony rezsiköltséggel fenntarthatók. Lakásadatok: 1. emelet L1 -Nettó alapterület: 49,57 m² -Erkély: 13 m² -Elosztás: amerikai konyhás nappali, hálószoba, fürdőszoba, erkély További lehetőségek: -1 db udvari parkolóhely vásárlása kiélező Ára: 1,7M -Zárható tárolók 1,5–2,5 m² méretben, 1,58–2,45 millió Ft között Műszaki tartalom: -Teherhordó szerkezet: 30 cm Porotherm tégla -Hanggátló falazat: Leier hangszigetelt téglák -Homlokzati hőszigetelés: 15 cm vastag Austrotherm grafitos rendszer -Nyílászárók: VEKA háromrétegű, 5 légkamrás ablakok -Fűtés-hűtés: központi levegő-víz hőszivattyú, egyedi hőmennyiségmérő -Padló- és mennyezetfűtés minden lakásban -Fürdő: padlófűtéssel ellátva Az árak emeltszintű fűtéskész állapotra vonatkoznak, de lehetőség van kulcsrakész átadásra is – igény szerint, rövid határidővel. Ez a projekt tökéletes választás mindazoknak, akik minőségi, modern otthont keresnek Győr közelében, csendes, zöld környezetben, de mégis pár percre a városi élettől. Ideális választás saját otthonnak vagy értékálló befektetésnek is! Érdeklődj még ma, és foglald le új otthonod, amíg a legjobb lakások elérhetők! Amennyiben a Lido Home által kínált lakás vagy bármely, a kínálatunkban található ingatlan felkeltette érdeklődését, hívjon a megadott telefonszámon! Vásárolna, de nincs rá keret? Kollégám díjmentes, banksemleges hitelügyintézéssel áll rendelkezésére. Lido Home - Ingatlanok egy életen át!
Tulajdonságok
Téglalakás
3
Új építésű
Hőszivattyú
2025
13 m²
Nem adta meg a hirdető
Vedd fel a kapcsolatot a hirdetővel
+36 70 904 6
Hitelkalkulátor
Második évtől
241 300 Ft A 13. hónaptól
7,99% 8,49%
Végig fix Futamidő: 20 év Banki visszahívás
Az OTP Bank munkatársai a neked megfelelő napszakban veszik fel veled a kapcsolatot.Hitelfelvétel esetén akár egy héttel rövidebb lehet az ügyintézés.
Ez az ingatlan a nálunk meglévő adatok alapján azonnali értékbecslésre alkalmas lehet.
A becslés a hirdető által megadott adatokon alapul. A jelen tájékoztatás nem minősül ajánlattételnek és nem teljes körű, az egyes feltételek a hitelbírálat eredményétől függően változhatnak. Kérjük, a részletekről tájékozódj az OTP Bank fiókjaiban vagy az OTP Bank honlapján közzétett vonatkozó Üzletszabályzatokból és Hirdetményekből.
Vedd fel a kapcsolatot a hirdetővel
+36 70 904 6
Vedd fel a kapcsolatot a hirdetővel
+36 70 904 6
UI_KIT.CHARACTER_COUNTER__COMPONENT.ACTUAL_CHARACTER__SR_ONLY UI_KIT.CHARACTER_COUNTER__COMPONENT.MAXIMUM_CHARACTER__SR_ONLY
Hasonló eladó ingatlanok Szitásdomb városrészben
Frissítve: 17 napja
6
52,36 M Ft 935 000 Ft/m²
Eladó lakás, Győr, Szitásdomb

Frissítve: 17 napja
7
55,44 M Ft 924 000 Ft/m²
Eladó lakás, Győr, Szitásdomb

Frissítve: 17 napja
6
53,13 M Ft 1 180 667 Ft/m²
Eladó lakás, Győr, Szitásdomb


Fedezd fel a
hasonló lakásokat!Még további lakások Győr, Szitásdomb városrészben 56,07 M Ft körüli értékben
Tovább a hirdetésekhez Frissítve: 3 napja
6
54,56 M Ft 1 212 444 Ft/m²
Eladó lakás, Győr, Szitásdomb
Frissítve: 17 napja
6
54,56 M Ft 1 212 444 Ft/m²
Eladó lakás, Győr, Szitásdomb

Frissítve: 3 napja
9
53,13 M Ft 948 750 Ft/m²
Eladó lakás, Győr, Szitásdomb

