+16 fotó
Hirdetéskód: 8975527
Referenciaszám: M321815-5204232
Feltöltve: 1 napja
Hajdúnánás eladó téglalakás 2 szobás: 46,3 millió Ft
46,3 millió Ft
1 052 273 Ft/m²
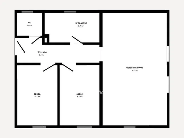
44 m²
2 szoba
földszint
Eladó Lakás, Hajdúnánás
Eladó 2 szobás, kiváló állapotú lakás Hajdúnánás szívében !
Hajdúnánás belvárosában kínáljuk ezt a 44 nm-es, téglaépítésű, 2 szobás, modern lakást, ahol minden fontos szolgáltatás és üzlet gyalogosan elérhető, a tökéletes elhelyezkedés biztosítja a kényelmet a mindennapokra.
Az ingatlan 2009-ben épült, folyamatosan karbantartott, és 2022-ben korszerű gázkazánnal lett felszerelve. A klímaberendezés még komfortosabbá teszi a lakást a nyári hónapokban.
Belső zárt udvarán biztonságos parkolás biztosított, illetve a kialakított zöld övezet ideális családi események helyszínéhez.
Az ingatlan alacsony fenntartású, ideális választás saját otthonként vagy befektetés céljára, kiváló lakóközösség, kedves szomszédok várják új tulajdonosát.
A bútorok az ingatlan méreteihez készültek, így igény szerint megegyezés tárgyát képezhetik. Rövid időn belül költözhető.
Ne hagyja ki ezt a kiváló lehetőséget Hajdúnánás szívében!
OTP Banki hátterünknek köszönhetően finanszírozási igényekben (pl. Otthon Start Hitelprogram, Babaváró, Falusi CSOK, CSOK Plusz, Lakáshitel, Személyi kölcsön stb.), illetve biztosítások tekintetében is díjmentesen, soron kívüli ügyintézéssel segítem ügyfeleim! Referenciaszám: M321815
Virtuáris séta:
Tulajdonságok
Téglalakás
Felújított
Gázkazán
2009
Nem adta meg a hirdető
Vedd fel a kapcsolatot a hirdetővel
Kiss Zoltán Bence OTPip - Nyíregyháza Bocskai utca 18-20 - OTP Ingatlanpont Iroda Az iroda összes hirdetése
+36 30 181 3
Hitelkalkulátor
Második évtől
199 254 Ft A 13. hónaptól
7,99%
Végig fix Futamidő: 20 év Banki visszahívás
Az OTP Bank munkatársai a neked megfelelő napszakban veszik fel veled a kapcsolatot. A becslés a hirdető által megadott adatokon alapul. A jelen tájékoztatás nem minősül ajánlattételnek és nem teljes körű, az egyes feltételek a hitelbírálat eredményétől függően változhatnak. Kérjük, a részletekről tájékozódj az OTP Bank fiókjaiban vagy az OTP Bank honlapján közzétett vonatkozó Üzletszabályzatokból és Hirdetményekből.
Vedd fel a kapcsolatot a hirdetővel
Kiss Zoltán Bence OTPip - Nyíregyháza Bocskai utca 18-20 - OTP Ingatlanpont Iroda Az iroda összes hirdetése
+36 30 181 3
Vedd fel a kapcsolatot a hirdetővel
Kiss Zoltán Bence OTPip - Nyíregyháza Bocskai utca 18-20 - OTP Ingatlanpont Iroda Az iroda összes hirdetése
+36 30 181 3
UI_KIT.CHARACTER_COUNTER__COMPONENT.ACTUAL_CHARACTER__SR_ONLY UI_KIT.CHARACTER_COUNTER__COMPONENT.MAXIMUM_CHARACTER__SR_ONLY
Hasonló eladó ingatlanok Hajdúnánáson
Feltöltve: 5 hónapja
1
43 M Ft 796 296 Ft/m²
Eladó lakás, Hajdúnánás, Ady Endre 31
Feltöltve: 4 hónapja
1
42 M Ft 560 000 Ft/m²
Eladó lakás, Hajdúnánás, Bocskai utca 34
Frissítve: 12 napja
7
42 M Ft 560 000 Ft/m²
Eladó lakás, Hajdúnánás


Fedezd fel a
hasonló lakásokat!Még további lakások Hajdú-Bihar megyében 46,3 M Ft körüli értékben
Tovább a hirdetésekhez Frissítve: ma
7
42 M Ft 560 000 Ft/m²
Eladó lakás, Hajdúnánás

Frissítve: 12 napja
7
42 M Ft 560 000 Ft/m²
Eladó lakás, Hajdúnánás

Frissítve: 12 napja
19
46,3 M Ft 1 052 273 Ft/m²
Eladó lakás, Hajdúnánás

