+17 fotó
Hirdetéskód: 8939318
Referenciaszám: M325281
Frissítve: 3 napja
Hévíz eladó téglalakás 3+1 fél szobás: 80,7 millió Ft
80,7 millió Ft
564,3 ezer Ft/m² *
* A m² árat a hirdető adta meg.
143 m²
3+1 fél szoba
Leírás
Meghitt otthon Hévízen - tágas terek, kert és nyugalom
Egy meghitt, lélekkel teli otthon, amibe könnyű beleszeretni - ahol minden térnek története van, és ahol a mindennapok valóban jólesően, nyugalomban telnek.
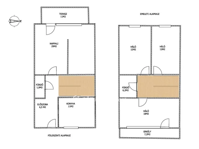
Hévíz kertvárosi részén, csendes zsákutcában kínálunk megvételre egy 143 m2-es, kétszintes sorházi otthont, amely nem csupán tágas és praktikus, hanem igazán szerethető is. Itt minden családtagnak jut saját élettér, miközben az otthon egészét áthatja az a különleges, bensőséges hangulat, amitől az ember az első pillanatban azt érzi: MEGÉRKEZTEM!
A ház egyik legnagyobb értéke a kiváló elosztás, a nagy méretű, külön nyíló szobák, amelyek lehetőséget adnak arra, hogy minden családtagnak megvan a saját meghitt, nyugodt tere. A földszinten egy nagy méretű nappali - a közös pillanatokhoz -, konyha-étkező - a családi vacsorákhoz -és egy fürdőszoba kapott helyet. A gondosan karbantartott fa lépcsőn haladva érkezünk meg az emeletre, ahol kis előtérből nyíló három külön bejáratú, nagy méretű szoba és egy kádas fürdőszoba kapott helyet. Minden szobában klíma biztosítja a kellemes hőérzetet, a fűtésről cirkó kazán gondoskodik. A kelet-nyugati tájolásnak köszönhetően a lakás egész nap napfényes, ami különleges melegséget ad az otthonnak. A nappalihoz kapcsolódó nagy terasz, valamint a saját kert - magaságyással, termő gyümölcsfákkal - tökéletes helyszíne lehet baráti, családi összejöveteleknek. Energetikai tanusítvány nem állrendelkezésre.
Amiért az Ön családja igazán szeretni fogja:
Az ingatlan igényes kivitelezése és folyamatos gondos karbantartása azonnal érezhető: ide valóban csak megérkezni kell.
Legyen szó állandó otthonról vagy egy nyugodt pihenést nyújtó második otthonról, ez a ház mindkét szerepben magától értetődően működik.
A környezet csendes és élhető, mégis minden a közelben van: néhány perces sétával elérhető a bolt, az óvoda és az iskola, így a mindennapok kényelmesen, rohanás nélkül szervezhetők.
Praktikum a mindennapokban
- 143 m2 lakótér, 2 szinten
- garázs + zárt udvari parkolás
- 4 külön nyíló szoba
- gáz cirkó fűtés
- klíma minden szobában és a konyhában
- saját gondozott kert
- pince és tároló, garázs
- a tetőhéjazat nemrégiben felújításra került, a homlokzat korszerű szigetelést kapott.
További előny, hogy Keszthely Hévíz és Zalaegerszeg tömegközlekedéssel és gyakori járatokkal is könnyen megközelíthető.
Itt valóban adott minden egy kiegyensúlyozott, nyugodt családi élethez.
A finanszírozásban is számíthat rám.
Ingatlan- és lakáshitel szakértőként segítek megtalálni az Ön családja számára legkedvezőbb megoldást, és végigkísérem a teljes folyamatot, hogy a vásárlás biztonságos és kiszámítható legyen. Használja ki a támogatott hitelek nyújtotta lehetőségeket!
Keressen bizalommal - örömmel mutatom meg Önöknek ezt a szerethető, családbarát otthont.
Tulajdonságok
Téglalakás
2
Átlagos
Egyéb kazán
1974
7,2 m²
11 m²
Nem adta meg a hirdető
Vedd fel a kapcsolatot a hirdetővel

+36 70 719 8
Hitelkalkulátor
Második évtől
347 296 Ft A 13. hónaptól
7,99%
Végig fix Futamidő: 20 év Banki visszahívás
Az OTP Bank munkatársai a neked megfelelő napszakban veszik fel veled a kapcsolatot. A becslés a hirdető által megadott adatokon alapul. A jelen tájékoztatás nem minősül ajánlattételnek és nem teljes körű, az egyes feltételek a hitelbírálat eredményétől függően változhatnak. Kérjük, a részletekről tájékozódj az OTP Bank fiókjaiban vagy az OTP Bank honlapján közzétett vonatkozó Üzletszabályzatokból és Hirdetményekből.
Vedd fel a kapcsolatot a hirdetővel

+36 70 719 8
Vedd fel a kapcsolatot a hirdetővel

+36 70 719 8
UI_KIT.CHARACTER_COUNTER__COMPONENT.ACTUAL_CHARACTER__SR_ONLY UI_KIT.CHARACTER_COUNTER__COMPONENT.MAXIMUM_CHARACTER__SR_ONLY
Hasonló eladó ingatlanok Hévízen
Frissítve: 3 napja
20
79,9 millió Ft 1,11 millió Ft/m²
Eladó lakás, Hévíz

Frissítve: 1 napja
20
80,26 millió Ft 955,4 ezer Ft/m²
Eladó lakás, Hévíz

Frissítve: 1 éve
1
75 millió Ft 1,21 millió Ft/m²
Eladó lakás, Hévíz

Fedezd fel a
hasonló lakásokat!Még további lakások Hévízen 80,7 M Ft körüli értékben
Tovább a hirdetésekhez Frissítve: 1 hónapja
18
82,9 millió Ft 746,8 ezer Ft/m²
Eladó lakás, Hévíz
Feltöltve: 1 hónapja
1
77 millió Ft 962,5 ezer Ft/m²
Eladó lakás, Hévíz
Frissítve: 3 hónapja
17
84,9 millió Ft 933 ezer Ft/m²
Eladó lakás, Hévíz
