+1 fotó
Hirdetéskód: 8954156
Referenciaszám: U0049622
Frissítve: ma
Keszthely eladó téglalakás 2 szobás: 45,48 millió Ft
45,48 millió Ft
1 196 842 Ft/m²
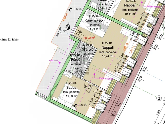
38 m²
2 szoba
3. emelet
Leírás
AHOL A CSALÁD MINDEN TAGJA JÓL ÉREZHETI MAGÁT!
KESZTHELY BELVÁROSÁBAN, közel a sétáló utcához, különböző méretű
lakások, épülő 26 lakásos társasházban, 2028. II. negyedév végi átadással
leköthetők!
A minőségi beépített anyagok kizárólag nagymúltú gyártók termékei közül
kerül ki. Egyedi tervezésének köszönhetően, hosszú távra kiváló otthon
érzetét kelti.
Az építkezés kezdete: 2026. április
Kulcsrakész átadás: 2028. július
MŰSZAKI TARTALOM:
-Pontalapozás 25 cm vastag vasbeton lemezalapra
-Monolit vasbeton vázzal és statikailag méretezett födémekkel, kerámia és
pórusbeton kitöltő falakkal
-A pincefalak és a lépcsőházak vasbetonból, míg a külső falak Porotherm
vázkerámia és Silka pórusbeton falazatok
-Hőszigetelés és hangszigetelés a legmodernebb anyagokkal, a komfortos
lakóterekért
-Monolit vasbeton födémek, rejtett gerendákkal és akusztikai szigeteléssel
-A műanyag homlokzati nyílászárók három rétegű üvegezéssel, jó légzárással,
redőnyszekrénnyel és motoros mozgatás előkészítéssel rendelkeznek
-Az erkélyek csúszásmentes és fagyálló gres burkolattal
-Homlokzat 15 cm-es hőszigetelés, fehér nemes vakolat
-Kleemann 8 személyes lift EPH védelemmel
-Melegvíz, Ariston Velis bojler
-Padlófűtés „Daikin” hőszivattyú
-Riasztó előkészítés
-Konyha: gépészet, elektromos kiállások kialakítva, bútor nélkül
-Épített zuhany, üveg fallal
-Vizes helyiségek: kerámia 7 500.- FT + áfa / nm
-Szobák: laminált parketta 7 500.-Ft. + áfa / nm
-Falak: diszperziós festés fehér Baumit anyagokkal
-Kapacitás: lakásonként 32 A
- Lakás méretek: 38 M2 - 68 M2-Ig
ÉRTÉKESÍTÉSI ÜTEMTERV:
- Foglaló: 10% + 10% vételár előleg
KÜLÖN HOZZÁVÁSÁROLHATÓ
A projekthez 29 teremgarázs tartozik: 6,5 M Ft/ db.
Tulajdonságok
Téglalakás
Új építésű
2026
Nem adta meg a hirdető
Vedd fel a kapcsolatot a hirdetővel
+36 70 435 2
Hitelkalkulátor
Második évtől
195 725 Ft A 13. hónaptól
7,99% 8,49%
Végig fix Futamidő: 20 év Banki visszahívás
Az OTP Bank munkatársai a neked megfelelő napszakban veszik fel veled a kapcsolatot. A becslés a hirdető által megadott adatokon alapul. A jelen tájékoztatás nem minősül ajánlattételnek és nem teljes körű, az egyes feltételek a hitelbírálat eredményétől függően változhatnak. Kérjük, a részletekről tájékozódj az OTP Bank fiókjaiban vagy az OTP Bank honlapján közzétett vonatkozó Üzletszabályzatokból és Hirdetményekből.
Vedd fel a kapcsolatot a hirdetővel
+36 70 435 2
Vedd fel a kapcsolatot a hirdetővel
+36 70 435 2
UI_KIT.CHARACTER_COUNTER__COMPONENT.ACTUAL_CHARACTER__SR_ONLY UI_KIT.CHARACTER_COUNTER__COMPONENT.MAXIMUM_CHARACTER__SR_ONLY
Hasonló eladó ingatlanok Keszthelyen
Frissítve: 19 napja
14
42,9 M Ft 794 444 Ft/m²
Eladó lakás, Keszthely
Frissítve: ma
12
49 M Ft 590 361 Ft/m²
Eladó lakás, Keszthely

Frissítve: 10 napja
20
49,9 M Ft 978 431 Ft/m²
Eladó lakás, Keszthely, Kossuth Lajos utca


Fedezd fel a
hasonló lakásokat!Még további lakások Keszthelyen 45,48 M Ft körüli értékben
Tovább a hirdetésekhez Frissítve: ma
9
47,9 M Ft 1 330 556 Ft/m²
Eladó lakás, Keszthely

Frissítve: ma
5
49,9 M Ft 1 279 487 Ft/m²
Eladó lakás, Keszthely

Frissítve: ma
13
48,9 M Ft 873 214 Ft/m²
Eladó lakás, Keszthely

