+18 fotó
Hirdetéskód: 8488942
Referenciaszám: M300114-4909335
Frissítve: ma
Kiskunhalas eladó téglalakás 2 szobás: 39,9 millió Ft
39,9 millió Ft
570 000 Ft/m²
70 m²
2 szoba
földszint
Eladó Lakás, Kiskunhalas
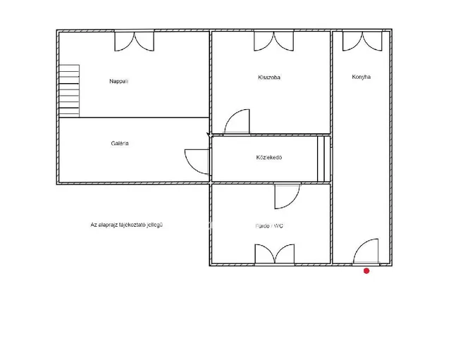
Bács-Kiskun vármegyében, Kiskunhalas belvárosában, két szobás 70 nm-es azonnal költözhető házrész eladó!
A vegyes falazatú, négy lakrészből álló ház osztatlan közös tulajdonú telken fekszik. Az eladásra kínált ingatlan egy belső lakrész, mely a közös udvarból, egy kerítéssel elválasztott, kedves hangulatú előkertből közelíthető meg.
A 2018-ban teljeskörűen felújított lakásban előszoba, konyha, közlekedő, hálógalériás nappali, szoba, fürdő és WC egy helyiségben kerültek kialakításra. Az otthon melegét gázkonvektorok biztosítják, a melegvizet villanybojler szolgáltatja. A felújítás során az elektromos vezetékek, vízvezeték ki lettek cserélve, az összes helyiség új járólapot, laminált padló burkolást kapott.
A lakrészhez saját udvari garázs és tároló mellett egy 250 nm-es kertrész is tartozik.
Az ingatlan infrastruktúrája nagyon jó, pár perc sétával elérhető a belváros, hivatalok, üzletek, iskola, óvoda, valamint a városi kórház és a városi fürdő is.
Kiváló választás fiatalok, idősebbek, vagy akár befektetési céllal is.
Megvásárlásához Babaváró és kedvezményes hitel is igénybe vehető, melynek ügyintézésében szakszerű segítséggel állunk a kedves vásárló rendelkezésére, igény szerint segítünk az adásvételi szerződés lebonyolításában, a szerződés megkötésétől a bírtokba adásig.
Referencia szám: M300114
Tulajdonságok
Téglalakás
Jó állapotú
Gáz (konvektor)
1920
Nem adta meg a hirdető
Vedd fel a kapcsolatot a hirdetővel
+36 20 449 7
Hitelkalkulátor
Második évtől
171 711 Ft A 13. hónaptól
7,99%
Végig fix Futamidő: 20 év Banki visszahívás
Az OTP Bank munkatársai a neked megfelelő napszakban veszik fel veled a kapcsolatot. A becslés a hirdető által megadott adatokon alapul. A jelen tájékoztatás nem minősül ajánlattételnek és nem teljes körű, az egyes feltételek a hitelbírálat eredményétől függően változhatnak. Kérjük, a részletekről tájékozódj az OTP Bank fiókjaiban vagy az OTP Bank honlapján közzétett vonatkozó Üzletszabályzatokból és Hirdetményekből.
Vedd fel a kapcsolatot a hirdetővel
+36 20 449 7
Vedd fel a kapcsolatot a hirdetővel
+36 20 449 7
UI_KIT.CHARACTER_COUNTER__COMPONENT.REMAINING_SPACE__SR_ONLYUI_KIT.CHARACTER_COUNTER__COMPONENT.MAXIMUM_CHARACTER__SR_ONLY
Hasonló eladó ingatlanok Kiskunhalason
Frissítve: ma
20
39,9 M Ft 570 000 Ft/m²
Eladó lakás, Kiskunhalas

Frissítve: 2 napja
20
39,9 M Ft 570 000 Ft/m²
Eladó lakás, Kiskunhalas

Frissítve: ma
20
39,9 M Ft 570 000 Ft/m²
Eladó lakás, Kiskunhalas


Fedezd fel a
hasonló lakásokat!Még további lakások Bács-Kiskun megyében 39,9 M Ft körüli értékben
Tovább a hirdetésekhez Frissítve: 1 napja
20
41,9 M Ft 375 112 Ft/m²
Eladó lakás, Baja

Frissítve: 1 napja
20
43,2 M Ft 540 000 Ft/m²
Eladó lakás, Baja

Frissítve: 1 napja
8
41,9 M Ft 654 688 Ft/m²
Eladó lakás, Baja


Töltsd fel hirdetésed ingyenesen!
Egyszerű