+13 fotó
Hirdetéskód: 8840137
Referenciaszám: PR070900/LK/26065-5116124
Frissítve: 27 napja
Kozármisleny eladó téglalakás 3 szobás: 86,9 millió Ft
86,9 millió Ft
812,1 ezer Ft/m²
107 m²
3 szoba
1. emelet
Eladó lakás, Kozármisleny
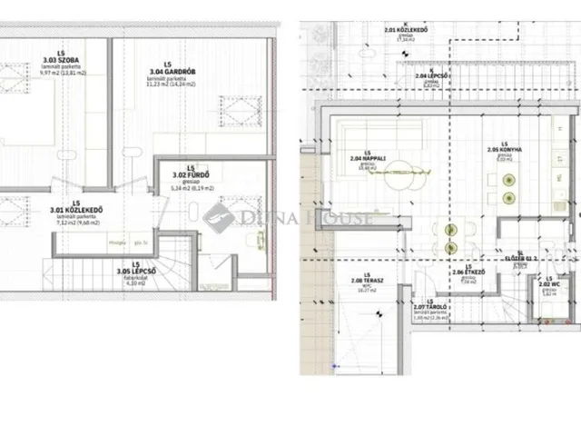
Első emeleti belső kétszintes 102m2-es lakás, 2 hálószobával, terasszal, saját autó beállóval és tárolóval.
7. Lakás első emeleti 83/102m2
Helyiség lista:
- Előtér
- Nappali
- Konyha
- Étkező
- Terasz 10,27m2
- Külön WC helyiség
- Tároló helyiség
Tetőtér:
- 2 db szoba
- Fürdőszoba
A lakópark modern, energia hatékony rendszerekkel épül. A lakások kényelmes, modern, funkcionális elrendezéssel, szép panorámával, prémium minőségű anyagok felhasználásával készülnek.
Minden lakáshoz díjmentes parkolóhely tartozik, a földszinti lakások saját kerttel, az emeleti lakások terasszal rendelkeznek.
Az L alakú épület egy védett közösségi teret ölel körül, ahol egy közös park kerül kialakításra.
Ez a védett közösségi tér az igények szerint alakítható. Lehet találkozási pont, akár medence és játszótér is megvalósítható erre a területre. A környezet kisgyermekes családok részére is biztonságos, sebességkorlátozott övezet, a közelben új óvoda, kiváló iskola is várja a gyerekeket.
Főbb műszaki adatok:
- 30cm X-Therm vázkerámia falazó-blok, 12cm grafitos hőszigetelés
- 30cm födém szigetelés
- Hőszigetelt műanyag nyílászárók
- Földszinti gépházban kialakított hőszivattyús padlófűtésrendszer és lakásonként fan-coil gyors felfűtésre és hűtésre alkalmas rendszer, HMV körben kialakított használati melegvíz cirkulációs rendszer
- Konyhákban, fürdőszobákban, Wc-ben kialakított szellőztetőrendszer közvetlenül a szabadba vezetve
Az épületben még több lakás elérhető, érdeklődjön a lakások után!
Tulajdonságok
Téglalakás
Új építésű
Hőszivattyú
2026
Nem adta meg a hirdető
Vedd fel a kapcsolatot a hirdetővel

+36 72 999 1
Hitelkalkulátor
Második évtől
373 978 Ft A 13. hónaptól
7,99% 8,49%
Végig fix Futamidő: 20 év Banki visszahívás
Az OTP Bank munkatársai a neked megfelelő napszakban veszik fel veled a kapcsolatot. A becslés a hirdető által megadott adatokon alapul. A jelen tájékoztatás nem minősül ajánlattételnek és nem teljes körű, az egyes feltételek a hitelbírálat eredményétől függően változhatnak. Kérjük, a részletekről tájékozódj az OTP Bank fiókjaiban vagy az OTP Bank honlapján közzétett vonatkozó Üzletszabályzatokból és Hirdetményekből.
Vedd fel a kapcsolatot a hirdetővel

+36 72 999 1
Vedd fel a kapcsolatot a hirdetővel

+36 72 999 1
UI_KIT.CHARACTER_COUNTER__COMPONENT.ACTUAL_CHARACTER__SR_ONLY UI_KIT.CHARACTER_COUNTER__COMPONENT.MAXIMUM_CHARACTER__SR_ONLY
Hasonló eladó ingatlanok Kozármislenyen
Frissítve: 1 hónapja
10
82,16 millió Ft 955,4 ezer Ft/m²
Eladó lakás, Kozármisleny
Frissítve: ma
20
89,99 millió Ft 796,4 ezer Ft/m²
Eladó lakás, Kozármisleny

Frissítve: 2 napja
10
2.Ütem
90,23 millió Ft 1,1 ezer Ft/m²
Eladó lakás, Kozármisleny


Fedezd fel a
hasonló lakásokat!Még további lakások Kozármislenyen 86,9 M Ft körüli értékben
Tovább a hirdetésekhez Feltöltve: 6 hónapja
6
94,9 millió Ft 1,1 millió Ft/m²
Eladó lakás, Kozármisleny, 1

Feltöltve: ma
10
79,99 millió Ft 1,08 millió Ft/m²
Eladó lakás, Kozármisleny
Frissítve: 15 napja
18
89 millió Ft 695,3 ezer Ft/m²
Eladó lakás, Kozármisleny
