+17 fotó
Hirdetéskód: 8923724
Referenciaszám: M322490-5170584
Frissítve: 21 napja
Miskolc eladó téglalakás 3 szobás: 59,9 millió Ft
59,9 millió Ft
721,7 ezer Ft/m²
83 m²
3 szoba
földszint
Eladó Lakás, Miskolc
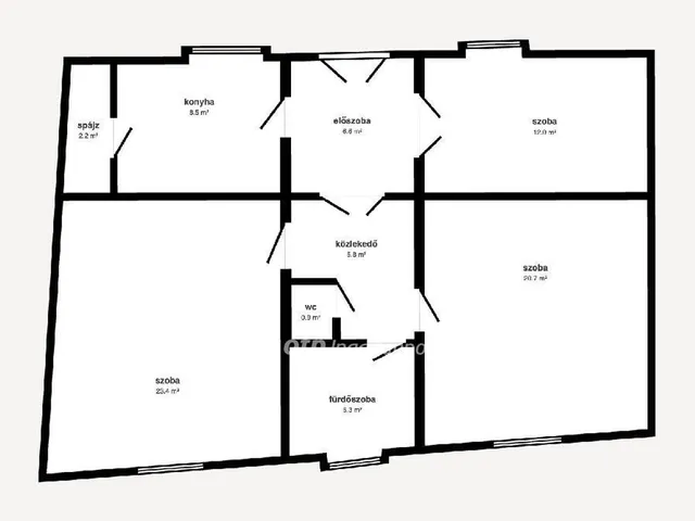
Miskolc belvárosának egyik legkedveltebb részén kínálunk megvételre egy 83 nm alapterületű, három tágas szobával rendelkező lakást, amely ideális választás mindazok számára, akik a városi élet kényelmét szeretnék élvezni, mégis nyugodt, zöld környezetben keresnek otthont.
Az ingatlan praktikus elrendezésű: három külön nyíló, világos szoba, fürdőszoba, külön WC, spájz, kényelmes előtér és közlekedő biztosítja a komfortos mindennapokat. A lakás előtt található parkosított, elzárt udvar különleges hangulatot teremt. A lakáshoz tartozik egy 28 nm-es pince is, amely kiváló tárolási lehetőséget biztosít.
Az ingatlan jó állapotú, az elmúlt években több korszerűsítés történt: ennek keretében megújult a fürdőszoba, valamint új kondenzációs gázkazán került beépítésre. Az elektromos hálózat részben felújított. A fürdőszoba különlegessége a masszázsfunkciós kádas zuhanykabin, amely extra kényelmet biztosít. Az elhelyezkedésének és adottságainak köszönhetően a lakás ideális lehet családoknak, pároknak vagy akár befektetési célra is. Hívjon és tekintsük meg együtt! Jöjjön és tekintsük meg együtt, akár hétvégén is! OTP Banki hátterünknek köszönhetően finanszírozási igényekben (pl. Otthon Start Hitelprogram, Babaváró, Falusi CSOK, CSOK Plusz, Lakáshitel, Személyi kölcsön stb.), illetve biztosítások tekintetében is állunk ügyfeleink rendelkezésére! Hívása során hivatkozzon az M322490-es referenciaszámra.
Referencia szám: M322490
Tulajdonságok
Téglalakás
Átlagos
Egyéb kazán
1930
Nem adta meg a hirdető
Vedd fel a kapcsolatot a hirdetővel

Dandásné Fábián Klaudia
OTPip - Miskolc Corvin utca 1-3 - OTP Ingatlanpont Iroda
Az iroda összes hirdetése +36 30 340 6
Hitelkalkulátor
Második évtől
257 782 Ft A 13. hónaptól
7,99%
Végig fix Futamidő: 20 év Banki visszahívás
Az OTP Bank munkatársai a neked megfelelő napszakban veszik fel veled a kapcsolatot.Hitelfelvétel esetén akár egy héttel rövidebb lehet az ügyintézés.
Ez az ingatlan a nálunk meglévő adatok alapján azonnali értékbecslésre alkalmas lehet.
A becslés a hirdető által megadott adatokon alapul. A jelen tájékoztatás nem minősül ajánlattételnek és nem teljes körű, az egyes feltételek a hitelbírálat eredményétől függően változhatnak. Kérjük, a részletekről tájékozódj az OTP Bank fiókjaiban vagy az OTP Bank honlapján közzétett vonatkozó Üzletszabályzatokból és Hirdetményekből.
Vedd fel a kapcsolatot a hirdetővel

Dandásné Fábián Klaudia
OTPip - Miskolc Corvin utca 1-3 - OTP Ingatlanpont Iroda
Az iroda összes hirdetése +36 30 340 6
Vedd fel a kapcsolatot a hirdetővel

Dandásné Fábián Klaudia
OTPip - Miskolc Corvin utca 1-3 - OTP Ingatlanpont Iroda
Az iroda összes hirdetése +36 30 340 6
UI_KIT.CHARACTER_COUNTER__COMPONENT.ACTUAL_CHARACTER__SR_ONLY UI_KIT.CHARACTER_COUNTER__COMPONENT.MAXIMUM_CHARACTER__SR_ONLY
Hasonló eladó ingatlanok Miskolcon
Frissítve: 21 napja
13
59,9 millió Ft 809,5 ezer Ft/m²
Eladó lakás, Miskolc

Frissítve: 21 napja
20
59 millió Ft 418,4 ezer Ft/m²
Eladó lakás, Miskolc

Feltöltve: 7 napja
13
59,9 millió Ft 809,5 ezer Ft/m²
Eladó lakás, Miskolc


Fedezd fel a
hasonló lakásokat!Még további lakások Miskolcon 59,9 M Ft körüli értékben
Tovább a hirdetésekhez Feltöltve: 7 napja
20
55,49 millió Ft 880,8 ezer Ft/m²
Eladó lakás, Miskolc

Frissítve: 7 napja
7
64 millió Ft 64 millió Ft/m²
Eladó lakás, Miskolc

Frissítve: 21 napja
20
55,49 millió Ft 880,8 ezer Ft/m²
Eladó lakás, Miskolc

