+10 fotó
Hirdetéskód: 8923942
Referenciaszám: M322344-5170839
Frissítve: 21 napja
Miskolc eladó téglalakás 3 szobás: 59,9 millió Ft
59,9 millió Ft
809,5 ezer Ft/m²
74 m²
3 szoba
3. emelet
Eladó Lakás, Miskolc
Csak az OTP INGATLANPONT ajánlatában!
Eladásra kínálunk a nyüzsgő belváros szívében, közvetlenül a PLÁZA mellett, egy 74 nm-es, 3. emeleti, klimatizált, 3 szobás lakást, ami kiválóan megfelel a környék hangulatát kedvelő családi otthonnak, esetleg cégnek, irodának, orvosi rendelőnek vagy az elhelyezkedése miatt bármilyen vállalkozásnak, illetve Airbnb hasznosításra.
Az ingatlan 3 szintes, téglából épült 2010-ben, és fontosnak tartom megjegyezni, hogy ebben az épületben a válaszfalak is téglából készültek.
Belvárosi pezsgő élet, éttermek, üzletek, óvoda, iskola, gimnázium, bank, busz pályaudvar, mindez pár perces sétával elérhető.
Az ingatlan liftes, szépen rendben tartott, zárt, a tavalyi évben teljesen felújított lépcsőházból nyílik.
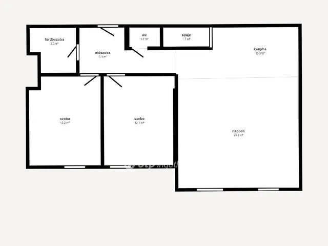
2 hálószobából, 1 amerikai konyhás nappaliból,1 közlekedőből,1 fürdőszobából, 1 WC-ből és egy kicsi tároló helyiségből áll.
Minden szoba külön bejáratú, a fürdő és a WC szintén különálló.
A szobák laminált parkettával fedettek, a többi helyiség hideg burkolattal ellátott.
A lakás elrendezése kiváló, könnyű átalakítani saját elképzelés szerint.
Rendkívül világos, minden helyisége ablakos, a nappali franciaerkélyes.
Az ablakok hő- és hangszigeteltek, háromrétegű üvegezéssel, szúnyoghálóval és redőnnyel felszereltek.
Az épületben több, főleg irodai és orvosi vállalkozás működik, jelen pillanatban is.
Nézze meg, nem fogja megbánni!
Az ingatlan előzetes egyeztetés után megtekinthető, akár hétvégén is!
Várjuk hívását és kérjük, hivatkozzon a következő referenciaszámra: M323244
OTP Banki hátterünknek köszönhetően finanszírozási igényekben (pl. Otthon Start Hitelprogram, Babaváró, Falusi CSOK, CSOK Plusz, Lakáshitel, Személyi kölcsön stb.), illetve biztosítások tekintetében is díjmentesen, soron kívüli ügyintézéssel segítem ügyfeleim!
Tulajdonságok
Téglalakás
Jó állapotú
Távfűtés egyedi méréssel
2010
Nem adta meg a hirdető
Vedd fel a kapcsolatot a hirdetővel

Spéth Gábor György
OTPip - Miskolc Szemere Bertalan utca 20 - OTP Ingatlanpont Iroda
Az iroda összes hirdetése +36 20 361 5
Hitelkalkulátor
Második évtől
257 782 Ft A 13. hónaptól
7,99%
Végig fix Futamidő: 20 év Banki visszahívás
Az OTP Bank munkatársai a neked megfelelő napszakban veszik fel veled a kapcsolatot.Hitelfelvétel esetén akár egy héttel rövidebb lehet az ügyintézés.
Ez az ingatlan a nálunk meglévő adatok alapján azonnali értékbecslésre alkalmas lehet.
A becslés a hirdető által megadott adatokon alapul. A jelen tájékoztatás nem minősül ajánlattételnek és nem teljes körű, az egyes feltételek a hitelbírálat eredményétől függően változhatnak. Kérjük, a részletekről tájékozódj az OTP Bank fiókjaiban vagy az OTP Bank honlapján közzétett vonatkozó Üzletszabályzatokból és Hirdetményekből.
Vedd fel a kapcsolatot a hirdetővel

Spéth Gábor György
OTPip - Miskolc Szemere Bertalan utca 20 - OTP Ingatlanpont Iroda
Az iroda összes hirdetése +36 20 361 5
Vedd fel a kapcsolatot a hirdetővel

Spéth Gábor György
OTPip - Miskolc Szemere Bertalan utca 20 - OTP Ingatlanpont Iroda
Az iroda összes hirdetése +36 20 361 5
UI_KIT.CHARACTER_COUNTER__COMPONENT.ACTUAL_CHARACTER__SR_ONLY UI_KIT.CHARACTER_COUNTER__COMPONENT.MAXIMUM_CHARACTER__SR_ONLY
Hasonló eladó ingatlanok Miskolcon
Frissítve: 7 napja
9
54,45 millió Ft 1,07 millió Ft/m²
Eladó lakás, Miskolc

Frissítve: 21 napja
19
59,9 millió Ft 721,7 ezer Ft/m²
Eladó lakás, Miskolc

Frissítve: 21 napja
20
59,9 millió Ft 599 ezer Ft/m²
Eladó lakás, Miskolc


Fedezd fel a
hasonló lakásokat!Még további lakások Miskolcon 59,9 M Ft körüli értékben
Tovább a hirdetésekhez Frissítve: 21 napja
20
59,9 millió Ft 721,7 ezer Ft/m²
Eladó lakás, Miskolc

Frissítve: 21 napja
20
59 millió Ft 418,4 ezer Ft/m²
Eladó lakás, Miskolc

Frissítve: 21 napja
13
59,9 millió Ft 809,5 ezer Ft/m²
Eladó lakás, Miskolc

