+8 fotó
Hirdetéskód: 8646750
Referenciaszám: 210600613
Frissítve: 2 napja
Mosonmagyaróvár eladó téglalakás 3 szobás: 58,8 millió Ft
58,8 millió Ft
980 ezer Ft/m²
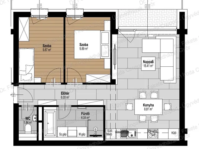
60 m²
3 szoba
földszint
Kertkapcsolatos lakás!
Vásárolj most újépítésű lakást kedvező áron Mosonmagyaróvár kiváló helyén.
Csak 17 db lakás, 2 lépcsőházból történő megközelítés.
Zárt udvari parkolás, igény esetén garázs vásárlási lehetőség.
A meghirdetett ingatlan földszinti, kertkapcsolatos
Lakótér 58,86 nm, nappali + 2 szobás + 4 nm-es terasszal, valamint 54,4 nm-es kerttel rendelkező lakás.
A földszinten, csak 4 db ingatlan készül! Fűtéskész átadásra 2026 év végén kerül sor.
A vételár tartalma:
3 rétegű 6 kamrás műanyag nyílászárók (KÖMMERLING), kívül antracit, belül fehér színben.
Antracit színű alumínium könyöklő külső oldalon.
Elektromos alumínium redőny kiépítése
Az épületek fűtését a gépészeti helyiségben elhelyezett gázkazán és a lapostetőre telepített levegő-víz hőszivattyúk biztosítják.
A hőleadás módja: padlófűtés
Klíma előkészítés
A lakások részére önálló lakásfogadó blokkot kerül kialakításra, melyben a hidegvíz és melegvíz fogyasztásmérők mellett a hőmennyiségmérő is helyet kap.
A lakásokban a nappaliban önálló hűtő-fűtő rendszerhez alkalmas termosztát kerül elhelyezésre, mely a lakás önállóan szabályozott működtetését is biztosítja.
Az egyes helyiségek egyedi igényeit a lakáshoz tartozó padlófűtés osztón található kézi beszabályozó szelepek állításával lehet beállítani
Villany vezetékek kiépítése, dobozok elhelyezése előre leegyeztetett pozícióba.
Kábel TV előkészítés. (Vidanet)
Az épület teljes külső szigetelése, homlokzati színezése (BAUMIT Silikon Top).
Lábazatra, sötétszürke színű homlokzati színvakolat (BAUMIT Silikon Top).
Belső felületkezelés: belső gépi vakolat.
Telekhatár mentén kerítés készítése. Hátsó oldalon elemes beton kerítés. Utcafronton és oldalhatáron lévő kerítések 3D-s kivitelben készülnek, antracit színben.
Utcafronton betonkerítés készítése az épülettel megegyező homlokzati színezéssel, látványterven látható módon készül.
Épület körüli térkő burkolat kiépítése építész terveknek megfelelően, Leier Piazza betonszürke színben, 6 cm vastagságban.
Telken belül biztosított parkolóknál Leier Verde gyeprács kerül beépítésre 10 cm vastagságban.
Zárt udvari parkoló: + 1 650 000 Ft / db (kötelező tétel)
Garázs ára: nettó 7.290.000 br.: 9.258.300 Ft /db (opcionális)
Szerkezeti anyagok:
- Alap szerkezete: Sávalap
- Külső falazat: LEIERTHERM N+F 30-as falazó elem
- Lakáselválasztó szerkezet: Silka HM 300 NF+GT
- Térelválasztó szerkezetek: Leier Leiertherm 10/50 N+F válaszfaltégla
- Belső felületképzés: mész-cement vakolat + belső glettelés.
- Padló szigetelése: 12 cm vtg. AUSTROTHERM AT-N100 hőszigetelő lemez.
- Külső fal szigetelés: 15 cm vtg. AUSTROTHERM AT-H80 hőszigetelő lemez.
Hozz egy jó döntést, és hívj! Hartmann-né Viki Tel.: +36 20 481 3369
Tulajdonságok
Téglalakás
3
Új építésű
Padlófűtés
2025
Nem adta meg a hirdető
Vedd fel a kapcsolatot a hirdetővel
Hartmann-né Ildikó Viki
Dr. Fekete Ingatlan Iroda Csoport - Ügyvédházak Győr
Az iroda összes hirdetése +36 20 481 3
Hitelkalkulátor
Második évtől
253 048 Ft A 13. hónaptól
7,99% 8,49%
Végig fix Futamidő: 20 év Banki visszahívás
Az OTP Bank munkatársai a neked megfelelő napszakban veszik fel veled a kapcsolatot. A becslés a hirdető által megadott adatokon alapul. A jelen tájékoztatás nem minősül ajánlattételnek és nem teljes körű, az egyes feltételek a hitelbírálat eredményétől függően változhatnak. Kérjük, a részletekről tájékozódj az OTP Bank fiókjaiban vagy az OTP Bank honlapján közzétett vonatkozó Üzletszabályzatokból és Hirdetményekből.
Vedd fel a kapcsolatot a hirdetővel
Hartmann-né Ildikó Viki
Dr. Fekete Ingatlan Iroda Csoport - Ügyvédházak Győr
Az iroda összes hirdetése +36 20 481 3
Vedd fel a kapcsolatot a hirdetővel
Hartmann-né Ildikó Viki
Dr. Fekete Ingatlan Iroda Csoport - Ügyvédházak Győr
Az iroda összes hirdetése +36 20 481 3
UI_KIT.CHARACTER_COUNTER__COMPONENT.ACTUAL_CHARACTER__SR_ONLY UI_KIT.CHARACTER_COUNTER__COMPONENT.MAXIMUM_CHARACTER__SR_ONLY
Hasonló eladó ingatlanok Mosonmagyaróváron
Frissítve: 2 napja
20
59,9 millió Ft 982 ezer Ft/m²
Eladó lakás, Mosonmagyaróvár
Feltöltve: 9 hónapja
2
57,75 millió Ft 995,7 ezer Ft/m²
Eladó lakás, Mosonmagyaróvár
Frissítve: 23 napja
11
59,9 millió Ft 788,2 ezer Ft/m²
Eladó lakás, Mosonmagyaróvár


Fedezd fel a
hasonló lakásokat!Még további lakások Mosonmagyaróváron 58,8 M Ft körüli értékben
Tovább a hirdetésekhez Frissítve: 23 napja
10
52,99 millió Ft 679,4 ezer Ft/m²
Eladó lakás, Mosonmagyaróvár

Frissítve: 23 napja
11
53 millió Ft 530 ezer Ft/m²
Eladó lakás, Mosonmagyaróvár

Frissítve: ma
20
52,99 millió Ft 1,04 millió Ft/m²
Eladó lakás, Mosonmagyaróvár

