+2 fotó
Hirdetéskód: 8987676
Feltöltve: ma
Pécs eladó téglalakás 2 szobás: 71,9 millió Ft
71,9 millió Ft
1,18 millió Ft/m²
61 m²
2 szoba
földszint
Szigeti úton kertes, teraszos felújított tégla lakás tárolóval is eladó
KIZÁRÓLAG NÁLUNK - KIVÁLÓ BEFEKTETÉSI LEHETŐSÉG PÉCSETT AZ ORVOSI KARTÓL NEM MESSZE!
Pécs-Egyetemváros szívében, a Szigeti úton, az Orvosi Kartól mindössze pár perc sétára kis létszámú, mindössze 10 lakásos, földszintes, sorházas elrendezésű, szigetelt társasházban nagyon elegáns, teljes mértékben, igényesen és fiatalosan felújított, belső kettőszintes konyha-étkező-nappali és egy külön nyíló hálószobás, egyedi gázkazánokkal szerelt, padlófűtéses, és (dupla)klímahűtéses (H-tarifás), műanyag nyílászárós, nagyon alacsony rezsivel bíró, bruttó 61,21/nettó 48,34 m² alapterületű téglalakás saját, kizárólagos használatú 15,68 m²-es kerttel, 5 m²-es terasszal, 5 m² nagyságú tárolóval, kedvező fizetési ütemezés mellett, 2026. augusztus végi átadással már eladó.
A beruházói szándéknak hála, a korábbi 10 lakásos társasház teljes mértékben megújul, az eddig meglévő albetétek, és ezzel összhangban a lakáskiosztások is maradnak, viszont az épület egésze, annak építészeti jegyei, a korábbi lakások belső helyiségkiosztása, valamint minden egyéb műszaki paraméter teljes felújításon, illetve megújuláson esik át, így jóllehet jogilag nem, de műszakilag egy teljesen új és korszerű épület lesz a végeredmény, amelyben már leköthetők a nemsokára elkészülő ingatlanok.
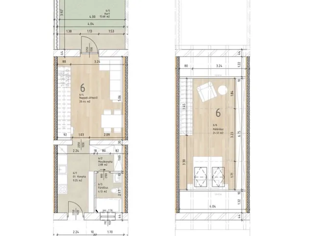
A meghirdetett ingatlan a földszint 6. számú lakásnak felel meg, kiváló az elosztása, mivel a földszinten zuhannyal szerelt (és ablakkal is rendelkező) fürdő-WC, konyha és mosókonyha, valamint kényelmes nappali kerül kialakításra (ahonnan közvetlen kijáratot létesítettek a saját kertbe), míg a nappaliból jutunk a tetőtéri, szintén kényelmes hálószobába.
A lakásban a - földszinti padló és az emeleti radiátoros - fűtést, valamint a használati meleg vizet a saját gázkazán, míg a hűtést szintenként egy-egy 3,5 kWh-s hűtő/fűtő klíma biztosítja. A felújításkor alkalmazott technológia megoldások, valamint a fűtési rendszer miatt a lakás minimális rezsivel üzemeltethető és A+-os energetikai besorolást fog kapni.
A teljes körű felújítások túl valamennyi lakásban gépészettel szerelt (négylapos tűzhely, sütő, páraelszívó, mosogatógép és hűtő) konyhabútor kerül beépítésre.
A vételár tehát tartalmazza a kulcsrakész lakás, a gépészettel szerelt konyhabútor, a terasz, kizárólagos használatú kert, és a saját tároló együttes ellenértékét, azzal, hogy igény esetén az adott lakáshoz a társasház belső, zárt udvarában (nem fedett) gk. beállót is lehet vásárolni, egységesen 6 mFt/db irányáron.
Mivel a társasház ennyire közel fekszik az Orvosi Karhoz, ezért különös tekintettel ajánljuk mindazon kedves érdeklődőnk figyelmébe, akik Pécsett kifejezetten befektetési szándékkal kívánnak ingatlant vásárolni (ideértve természetesen azokat a szülőket is, akik gyermekeik lakhatását kívánják ily módon megoldani), tekintettel arra, hogy a Pécsett tanuló legtöbb külföldi orvostanhallgató leginkább ebben a szektorban kíván lakni. Vásárlás esetén társaságunk természetesen vállalja az ingatlan jövőbeni kiadását és igény esetén a lakáskezelést is.
FONTOS: a részletes műszaki tartalom, a fizetési ütemezés, és befektetési cél támogatása esetében a kiadhatóság kérdéskörében, valamint a helyszíni bejárás időpontjának előzetes egyeztetése vonatkozásában kérünk minden Kedves Érdeklődőnket, hogy hívja a hirdetés feladóját.
Iár.: 71,9 mFt Elérhetőség: 30/773-9436
Tulajdonságok
Téglalakás
2
Felújított
Gázkazán
5 m²
A++
Vedd fel a kapcsolatot a hirdetővel
Szentendrei Zsanett Az iroda összes hirdetése
+36 30 773 9
Hitelkalkulátor
Második évtől
309 425 Ft A 13. hónaptól
7,99%
Végig fix Futamidő: 20 év Banki visszahívás
Az OTP Bank munkatársai a neked megfelelő napszakban veszik fel veled a kapcsolatot.Hitelfelvétel esetén akár egy héttel rövidebb lehet az ügyintézés.
Ez az ingatlan a nálunk meglévő adatok alapján azonnali értékbecslésre alkalmas lehet.
A becslés a hirdető által megadott adatokon alapul. A jelen tájékoztatás nem minősül ajánlattételnek és nem teljes körű, az egyes feltételek a hitelbírálat eredményétől függően változhatnak. Kérjük, a részletekről tájékozódj az OTP Bank fiókjaiban vagy az OTP Bank honlapján közzétett vonatkozó Üzletszabályzatokból és Hirdetményekből.
Vedd fel a kapcsolatot a hirdetővel
Szentendrei Zsanett Az iroda összes hirdetése
+36 30 773 9
Vedd fel a kapcsolatot a hirdetővel
Szentendrei Zsanett Az iroda összes hirdetése
+36 30 773 9
UI_KIT.CHARACTER_COUNTER__COMPONENT.ACTUAL_CHARACTER__SR_ONLY UI_KIT.CHARACTER_COUNTER__COMPONENT.MAXIMUM_CHARACTER__SR_ONLY
Hasonló eladó ingatlanok Egyetemváros városrészben
Frissítve: 13 napja
3
65,46 millió Ft 0 ezer Ft/m²
Eladó lakás, Pécs, Egyetemváros
Frissítve: 13 napja
3
69,89 millió Ft 0 ezer Ft/m²
Eladó lakás, Pécs, Egyetemváros
Frissítve: 13 napja
4
70 millió Ft 0 ezer Ft/m²
Eladó lakás, Pécs, Egyetemváros

Fedezd fel a
hasonló lakásokat!Még további lakások Pécs, Egyetemváros városrészben 71,9 M Ft körüli értékben
Tovább a hirdetésekhez Frissítve: 20 napja
13
70,01 millió Ft 1,56 millió Ft/m²
Eladó lakás, Pécs, Egyetemváros

Frissítve: 13 napja
4
74,77 millió Ft 0 ezer Ft/m²
Eladó lakás, Pécs, Egyetemváros
Frissítve: 20 napja
4
Green Corner
65,46 millió Ft 1,39 millió Ft/m²
Eladó lakás, Pécs, Egyetemváros

