+2 fotó
Hirdetéskód: 8991433
Referenciaszám: U0049757
Feltöltve: ma
Pécs eladó téglalakás 2 szobás: 65,13 millió Ft
65,13 millió Ft
1,25 millió Ft/m²
52 m²
2 szoba
2. emelet
Leírás
Pécs belvárosának peremén, nyugodt, családi házas környezetben egy elismert referenciákkal és jelentős szakmai tapasztalattal rendelkező generálkivitelező 2025 telén induló projektjében épül egy modern, téglaépítésű társasház. A két épületből álló, háromszintes ingatlan összesen 4 lakást és 4 gépkocsi-beállót foglal magában. A magas műszaki színvonalon, exkluzív kivitelezéssel készülő, „A” energetikai besorolású, kulcsrakész lakások várhatóan 2026 őszén kerülnek átadásra, és már most leköthetők.
A lakások fűtéséről egyedi gázkazánok gondoskodnak, míg a hűtést klímaberendezések biztosítják. Az egész lakásban padlófűtés működik, amely a nappaliban és a hálószobákban külön szabályozható. A fürdőszobában elektromos törölközőszárítós radiátor is helyet kap. A nyílászárók háromrétegű üvegezésű, motoros redőnnyel ellátott, világosszürke alumínium szerkezetek lesznek. A 40 cm vastag falazatra további 15 cm szigetelés kerül. A lakások tágas, világos terekkel, nagy ablakokkal és csendes hálószobákkal készülnek.
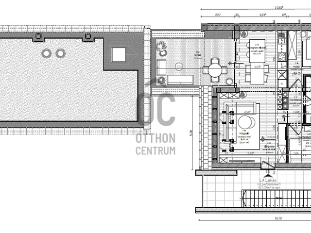
A bemutatott lakás a földszinten található (a tervrajzon L4 jelöléssel), 51,2 m² lakóterülettel rendelkezik.
A lakáshoz opcionálisan vásárolható egy 10 m²-es fedett, belső udvari gépkocsibeálló, valamint egy 4,1 m²-es tárolóhelyiség. A parkolóhelyek mindegyikében kiépített elektromosautó-töltési lehetőség áll rendelkezésre.
Az ingatlan elhelyezkedése különösen kedvező, mivel a város egyetemisták által kedvelt részén található, így kiváló választás befektetési célra is. Igény esetén segítséget nyújtunk a lakás bérbeadásában is.
Figyelem: a megadott ár nettó, amelyre 5% áfa kerül felszámításra.
Tulajdonságok
Téglalakás
Új építésű
Gázkazán
2026
16,2 m²
Nem adta meg a hirdető
Vedd fel a kapcsolatot a hirdetővel
+36 70 467 9
Hitelkalkulátor
Második évtől
280 268 Ft A 13. hónaptól
7,99% 8,49%
Végig fix Futamidő: 20 év Banki visszahívás
Az OTP Bank munkatársai a neked megfelelő napszakban veszik fel veled a kapcsolatot.Hitelfelvétel esetén akár egy héttel rövidebb lehet az ügyintézés.
Ez az ingatlan a nálunk meglévő adatok alapján azonnali értékbecslésre alkalmas lehet.
A becslés a hirdető által megadott adatokon alapul. A jelen tájékoztatás nem minősül ajánlattételnek és nem teljes körű, az egyes feltételek a hitelbírálat eredményétől függően változhatnak. Kérjük, a részletekről tájékozódj az OTP Bank fiókjaiban vagy az OTP Bank honlapján közzétett vonatkozó Üzletszabályzatokból és Hirdetményekből.
Vedd fel a kapcsolatot a hirdetővel
+36 70 467 9
Vedd fel a kapcsolatot a hirdetővel
+36 70 467 9
UI_KIT.CHARACTER_COUNTER__COMPONENT.ACTUAL_CHARACTER__SR_ONLY UI_KIT.CHARACTER_COUNTER__COMPONENT.MAXIMUM_CHARACTER__SR_ONLY
Hasonló eladó ingatlanok Ispitaalja városrészben
Frissítve: 23 napja
18
59,9 millió Ft 880,9 ezer Ft/m²
Eladó lakás, Pécs, Ispitaalja

Frissítve: 23 napja
18
59,9 millió Ft 880,9 ezer Ft/m²
Eladó lakás, Pécs, Ispitaalja
Feltöltve: 6 napja
7
67,9 millió Ft 998,5 ezer Ft/m²
Eladó lakás, Pécs, Ispitaalja, Mártírok útja

Fedezd fel a
hasonló lakásokat!Még további lakások Pécsett 65,13 M Ft körüli értékben
Tovább a hirdetésekhez Frissítve: 23 napja
8
63,9 millió Ft 1,36 millió Ft/m²
Eladó lakás, Pécs

Frissítve: 16 napja
3
65,46 millió Ft 0 ezer Ft/m²
Eladó lakás, Pécs, Egyetemváros
Frissítve: ma
8
62,7 millió Ft 1,39 millió Ft/m²
Eladó lakás, Pécs

