+12 fotó
Hirdetéskód: 8905777
Referenciaszám: M317803-5158769
Frissítve: 1 napja
Siófok eladó téglalakás 4 szobás: 134,9 millió Ft
134,9 millió Ft
970,5 ezer Ft/m²
139 m²
4 szoba
földszint
Eladó Lakás, Siófok
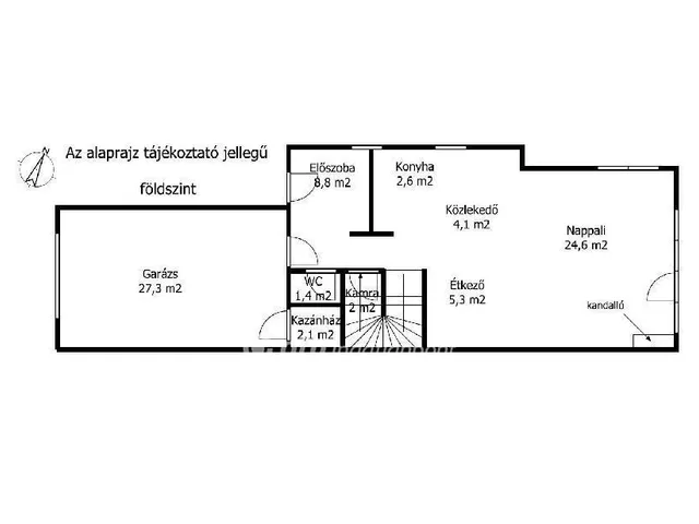
Siófok kedvelt Foki-hegy városrészében kínálom megvételre ezt az új építésű, igényes kivitelezésű ikerházfelet, amely a Balaton déli partjának egyik dinamikusan fejlődő környezetében helyezkedik el, 432 nm-es, saját használatú telekrészen, befejezett állapotban. Az ingatlan földszintjén tágas, amerikai konyhás nappali, emellett háztartási helyiség és éléskamra szolgálja a mindennapi kényelmet, míg az emeleti szinten három különálló hálószoba és három, magas műszaki tartalommal megvalósított fürdőszoba került kialakításra, továbbá lehetőség nyílik egy különálló, teljes értékű lakrész kialakítására is, akár kétgenerációs felhasználás céljából.
Az épület megtervezése során a kivitelező nagy hangsúlyt fektetett a minőségi alapanyagokra, amelyet a duplasoros SILKA hangszigetelő falazat, a porotherm 30-as külső falazat 15 cm hőszigeteléssel, valamint a háromrétegű üvegezésű nyílászárók is bizonyítanak. Az otthon komfortját a gázkazános padlófűtés, a négy darab hőszivattyús hűtő-fűtő klíma, a nappaliban található exkluzív, fatüzelésű kandalló, továbbá az elektromos redőnyökkel felszerelt nyílászárók, illetve az elektromos működtetésű garázs- és kertkapuk biztosítják, miközben a földszinti garázs mellett külön második gépkocsi-beállási lehetőség is rendelkezésre áll.
A három terasz - a Balatonra néző nyugati emeleti terasz, a hátsó emeleti pihenőrész, valamint a földszinti kertkapcsolatos terasz - kivételes lehetőséget nyújt a pihenésre és a balatoni hangulat mindennapos megélésére. Az ingatlan rendelkezik használatbavételi engedéllyel, tehermentes, azonnal birtokba vehető, így akár állandó lakhatásra, akár nyaralóként is ideális választás lehet, ráadásul az ikerház másik fele szintén elérhető azon érdeklődők számára, akik nagyobb családi vagy befektetési célban gondolkodnak. A közelben általános iskola és hipermarket is megtalálható, ami tovább növeli a lokáció értékét. Az OTP Bank stabil hátterének köszönhetően kollégáink díjmentes, személyre szabott hitel- és támogatási tanácsadással és ügyintézéssel állnak rendelkezésére.
Megtekintés egyeztetéséhez várom megtisztelő hívását.
Tulajdonságok
Téglalakás
Új építésű
Gázkazán
2025
Nem adta meg a hirdető
Vedd fel a kapcsolatot a hirdetővel

+36 30 322 9
Hitelkalkulátor
Második évtől
580 548 Ft A 13. hónaptól
7,99% 8,49%
Végig fix Futamidő: 20 év Banki visszahívás
Az OTP Bank munkatársai a neked megfelelő napszakban veszik fel veled a kapcsolatot. A becslés a hirdető által megadott adatokon alapul. A jelen tájékoztatás nem minősül ajánlattételnek és nem teljes körű, az egyes feltételek a hitelbírálat eredményétől függően változhatnak. Kérjük, a részletekről tájékozódj az OTP Bank fiókjaiban vagy az OTP Bank honlapján közzétett vonatkozó Üzletszabályzatokból és Hirdetményekből.
Vedd fel a kapcsolatot a hirdetővel

+36 30 322 9
Vedd fel a kapcsolatot a hirdetővel

+36 30 322 9
UI_KIT.CHARACTER_COUNTER__COMPONENT.ACTUAL_CHARACTER__SR_ONLY UI_KIT.CHARACTER_COUNTER__COMPONENT.MAXIMUM_CHARACTER__SR_ONLY
Hasonló eladó ingatlanok Siófokon
Frissítve: 7 napja
18
Balatonparti panorámás lakások az Ezüstparton
126,77 millió Ft 1,86 millió Ft/m²
Eladó lakás, Siófok, Liszt Ferenc sétány

Frissítve: 7 napja
7
Azonnal költözhető új építésű vízparti lakások Siófokon
125,9 millió Ft 125,9 millió Ft/m²
Eladó lakás, Siófok

Frissítve: ma
20
140 millió Ft 1,13 millió Ft/m²
Eladó lakás, Siófok


Fedezd fel a
hasonló lakásokat!Még további lakások Siófokon 134,9 M Ft körüli értékben
Tovább a hirdetésekhez Frissítve: ma
20
123,78 millió Ft 1,77 millió Ft/m²
Eladó lakás, Siófok

Frissítve: 7 napja
20
Ideiglenes ütem - 2024-04-19 18:33 / Tóth Krisztina.
123,78 millió Ft 1,74 millió Ft/m²
Eladó lakás, Siófok

Frissítve: 7 napja
7
Azonnal költözhető új építésű vízparti lakások Siófokon
139,6 millió Ft 139,6 millió Ft/m²
Eladó lakás, Siófok

