

+9 fotó
Hirdetéskód: 8220926
Referenciaszám: M286576
Frissítve: 13 napja
Szántód eladó téglalakás 2 szobás: 62,9 millió Ft
62,9 millió Ft
1 135 380 Ft/m² *
* A m² árat a hirdető adta meg.
55 m²
2 szoba
Leírás
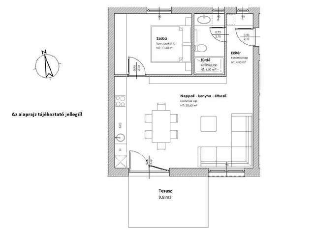
Balaton Déli parton, Szántódon, 55,4 m2-es lakás eladó. Az 50,5 m2 alapterületű, 9,8 m2 terasszal kiegészített lakás egy két szintes ház földszintjén helyezkedik el, 25 m2 saját kerttel és saját parkolóval rendelkezik. A ház a település kertvárosias, természetközeli lakóövezetében, örökpanorámával a közvetlen szomszédságában elterülő, a Balatoni Nemzeti Park részét képező területre, 500 méterre a Balatontól. Az ingatlan hőszigetelt, fűtését kombi gázkazán biztosítja, amit padlófűtés és hűtő-fűtő klíma egészít ki, a nyílászárókon elektromos távirányítós redőny, szúnyogháló. Kiváló lehetőség akár állandó lakhatásra akár nyaralásra, de befektetésnek, kiadásra is tökéletes megoldás. A Balaton-part és strandolási lehetőség, a Balaland 5* szálloda és élményfürdő gyalog 10 perc, a Szántódpusztai Majorság autóval pár perc távolságra található, így a pihenés számos módja könnyen elérhető minden korosztály számára. A lakáshoz tartozó parkoló ára 3 M Ft, amit nem tartalmaz a hirdetési ár. Várható befejezés 2025. október. Otthon Start Hitelprogram. Bővebb információért vagy a többi elérhető lakással kapcsoltban keressen telefonon!
Tulajdonságok
Téglalakás
Új építésű
2024
9,8 m²
Nem adta meg a hirdető
Vedd fel a kapcsolatot a hirdetővel
+36 70 316 3
Hitelkalkulátor
Második évtől
270 693 Ft A 13. hónaptól
7,99% 8,49%
Végig fix Futamidő: 20 év Banki visszahívás
Az OTP Bank munkatársai a neked megfelelő napszakban veszik fel veled a kapcsolatot. A becslés a hirdető által megadott adatokon alapul. A jelen tájékoztatás nem minősül ajánlattételnek és nem teljes körű, az egyes feltételek a hitelbírálat eredményétől függően változhatnak. Kérjük, a részletekről tájékozódj az OTP Bank fiókjaiban vagy az OTP Bank honlapján közzétett vonatkozó Üzletszabályzatokból és Hirdetményekből.
Vedd fel a kapcsolatot a hirdetővel
+36 70 316 3
Vedd fel a kapcsolatot a hirdetővel
+36 70 316 3
UI_KIT.CHARACTER_COUNTER__COMPONENT.REMAINING_SPACE__SR_ONLYUI_KIT.CHARACTER_COUNTER__COMPONENT.MAXIMUM_CHARACTER__SR_ONLY
Hasonló eladó ingatlanok Szántódon
Frissítve: 14 napja

12
62,9 M Ft 1 133 334 Ft/m²
Eladó lakás, Szántód

Frissítve: ma

12
62,9 M Ft 1 143 636 Ft/m²
Eladó lakás, Szántód

Frissítve: ma

14
62,9 M Ft 1 143 636 Ft/m²
Eladó lakás, Szántód


Fedezd fel a
hasonló lakásokat!Még további lakások Somogy megyében 62,9 M Ft körüli értékben
Tovább a hirdetésekhez Frissítve: 2 napja

14
62,9 M Ft 1 143 636 Ft/m²
Eladó lakás, Szántód

Frissítve: 2 napja

14
62,9 M Ft 1 143 636 Ft/m²
Eladó lakás, Szántód

Frissítve: 2 napja

15
58,9 M Ft 1 308 888 Ft/m²
Eladó lakás, Balatonboglár


Töltsd fel hirdetésed ingyenesen!
Egyszerű