

+3 fotó
Hirdetéskód: 8753698
Referenciaszám: 360151006-549
Feltöltve: ma
Százhalombatta eladó téglalakás 3 szobás: 69 millió Ft
69 millió Ft
704 081 Ft/m² *
* A m² árat a hirdető adta meg.
98 m²
3 szoba
tetőtér
Százhalombatta, urbárium részén 67,5 nm-es, 3 szobás, duplakomfortos téglaépítésű tetŐtÉri lakás eladÓ!
A ötlakásos ház 2025-ben lesz átalakítva, kivitelezve.
Az emeleten két lakás, a tetőtérben egy lakás lesz kialakítva. (A földszinten a két lakás eladva.)
A tetőtéri lakás 67,5 nm-es.
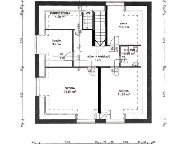
Helyiségek:
- Közlekedő: 8 nm
- Nappali: 21,81 nm
- Szoba: 11,28 nm
- Szoba: 9,32 nm
- Konyha: 9,6 nm
- Fürdő + WC: 4,29 nm
- Zuhanyzó + WC: 3,2 nm
A ház 1976-ban épült D-K tájolással. Falazata Porotherm 38-as tégla, 5 cm-es Dryvit szigeteléssel. Vasbeton gerenda födém, kontyolt tető, zsindelyborítás. A fűtést az első emeleten kondenzációs gáz cirkó biztosítja, hőleadás radiátor által. A tetőtérben elektromos padlófűtés terveztek. Külső nyílászáró 3 rétegű, 6 légkamrás hőszigetelt műanyag. Burkolatok: A szobákban parketta, a többi helyiségben járólap lesz lerakva.
- Központi helyen van, minden kényelmes sétával elérhető, mégis távol a város zajától
- Saját mérőórák minden lakáshoz
- Egy autóbeálló minden lakáshoz kereten belül (+ 1 megegyezés szerint)
- 60 nm-es telekterület lakásonként
- 2,5 nm-es pince/lakás (megegyezés szerint)
- Választható burkolatok: 4000.-Ft./nm
Választható lakások:
Első emelet 2-es LAKÁS: 58 millió Ft. (52,66 nm) 2 szoba, erkély
Első emelet 3-as LAKÁS: 46 millió Ft. (43,13 nm) 1 szoba
Tetőtéri LAKÁS: 69 millió Ft. (70 nm) 3 szoba
Osztatlan közös tulajdon, ügyvéd általi használati megosztással.
A Tulajdonos elsősorban készpénzes vevők érdeklődését várja.
Buszmegálló, vasútállomás, vásárlási lehetőség, iskola, óvoda pár perces sétára található.
Százhalombatta BP-től DNY-i irányban, kb.25 km távolságra, fekszik. Kiváló oktatási és nevelési intézmények, magas szintű egészségügyi ellátás, jó közbiztonság, változatos sportolási lehetőségek, játszóterek, kiemelkedő kulturális események jellemzik. A településen uszoda, strand, sportközpontok, lovarda, múzeum, hangulatos éttermek találhatóak. A 6-os, 7-es és M6-os úton könnyedén megközelíthető a főváros.
-----------------------------------------------------------------------------------------------------------------
Gacsó Ház Ingatlanközvetítő Kft.
INGATLAN HITEL BIZTOSÍTÁS
Irodáink:
1163 Budapest, Veres Péter út 39.
2440 Százhalombatta, Erkel Ferenc körút 1. (üzletsor)
Hívjon bizalommal!
Buzás Mária: +36-20-225-6407; buzas.maria@gacsohaz.hu
Szívügyünk az otthonod!
Az ingatlanoknak mérete és ára van. Az otthon igazi értéke viszont felbecsülhetetlen - ezért az értékbecsléstől a birtokbaadásig végigkísérünk az ingatlan adásvétel folyamatán, hogy végig anyagi, jogi és érzelmi biztonságban legyél.
Tulajdonságok
Téglalakás
Újszerű
Elektromos
1976
Nem adta meg a hirdető
Vedd fel a kapcsolatot a hirdetővel
+36 20 225 6
Hitelkalkulátor
Második évtől
296 945 Ft A 13. hónaptól
7,99%
Végig fix Futamidő: 20 év Banki visszahívás
Az OTP Bank munkatársai a neked megfelelő napszakban veszik fel veled a kapcsolatot.Hitelfelvétel esetén akár egy héttel rövidebb lehet az ügyintézés.
Ez az ingatlan a nálunk meglévő adatok alapján azonnali értékbecslésre alkalmas lehet.
A becslés a hirdető által megadott adatokon alapul. A jelen tájékoztatás nem minősül ajánlattételnek és nem teljes körű, az egyes feltételek a hitelbírálat eredményétől függően változhatnak. Kérjük, a részletekről tájékozódj az OTP Bank fiókjaiban vagy az OTP Bank honlapján közzétett vonatkozó Üzletszabályzatokból és Hirdetményekből.
Vedd fel a kapcsolatot a hirdetővel
+36 20 225 6
Vedd fel a kapcsolatot a hirdetővel
+36 20 225 6
UI_KIT.CHARACTER_COUNTER__COMPONENT.REMAINING_SPACE__SR_ONLYUI_KIT.CHARACTER_COUNTER__COMPONENT.MAXIMUM_CHARACTER__SR_ONLY
Hasonló eladó ingatlanok Százhalombattán
Frissítve: 21 napja

20
Battai Új Lakások
71 M Ft 1 365 385 Ft/m²
Eladó lakás, Százhalombatta

Frissítve: 21 napja

20
Battai Új Lakások
73 M Ft 1 403 846 Ft/m²
Eladó lakás, Százhalombatta

Frissítve: 24 napja

20
68,4 M Ft 963 381 Ft/m²
Eladó lakás, Százhalombatta


Fedezd fel a
hasonló lakásokat!Még további lakások Százhalombattán 69 M Ft körüli értékben
Tovább a hirdetésekhez Frissítve: 1 napja

20
68,4 M Ft 963 380 Ft/m²
Eladó lakás, Százhalombatta

Frissítve: 4 napja

20
68,4 M Ft 963 380 Ft/m²
Eladó lakás, Százhalombatta

Frissítve: ma

20
68,4 M Ft 963 380 Ft/m²
Eladó lakás, Százhalombatta


Töltsd fel hirdetésed ingyenesen!
Egyszerű