+8 fotó
Hirdetéskód: 8945465
Referenciaszám: 351479
Frissítve: 21 napja
Szeged eladó téglalakás 3 szobás: 137,5 millió Ft
137,5 millió Ft
1,54 millió Ft/m² *
* A m² árat a hirdető adta meg.
89 m²
3 szoba
földszint
Eladó Lakás, Szeged 137.500.000 Ft
Újépítésű, kulcsrakész társasházi lakások, leköthetők. Alacsony rezsivel kulcsrakész átadással, Szeged-Felsőváros frekventált részén!
10 lakásos társasházban jó elrendezésű lakások.
A társasház és lakások jellemzői:
- Elhelyezkedés: Szege-Felsőváros
- Összesen 4 szint, lift nélkül
- 600 m2-es telken, tégla építésű társasház A+ energetikai besorolással
- Tervezett átadás: 2026. dec.
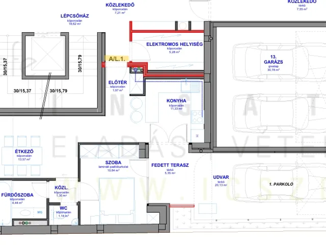
Hirdetett Lakás: földszinti 1. lakás: 83,32 m2 (5,35 m2-es terasszal)
Leköthető lakások:
5. lakás: 93,62 m2 + erkély: 3,04 + loggia: 2,81 m2 Vételár: 174,034 millió Ft
10. lakás: 110,13 m2 + loggia: 3.34.m2 +terasz: 27,61 + fedett terasz: 36,81 m2 Vételár: 237,923 millió Ft
Műszaki jellemzők:
- szerkezet Porptherm X-Therm 30 cm téglából+15 cm EPS szigetelés
- lakások válaszfala hangszigetelt tégla
- fűtés-hűtés hőszivattyúval, padlófűtés
- gázbekötés nincs
- szellőztetés lakásonként
- energetika: A+
- garázsok megvásárolhatók
- választható szaniterek, ajtók, burkolóanyagok prémium minőségben
- egyedi mérők, hőmennyiségmérők, vizóra, villanyóra lakásonként
- lakáshoz tágas erkély tartozik
Az ár kulcsrakész ár, és az ÁFA-t is tartalmazza!
Pontosabb műszaki tartalmat rendelkezésre tudunk bocsátani.
Következő családtámogatások vehetők fel az ingatlanra:
1. CSOK Plusz 2024 - Családi Otthonteremtési Kedvezmény
2. Kamattámogatott CSOK-hitel többgyermekeseknek
3. Babaváró - egy speciális gyermekvállalási támogatás
4. Illetékkedvezmény
A legújabb energetikai követelményeknek megfelelő kivitelezés.
Referencialakás és építkezés megtekinthető.
További információkért keressen bizalommal!
Tulajdonságok
Téglalakás
4
Új építésű
2026
A+
Vedd fel a kapcsolatot a hirdetővel
+36 70 385 2
Hitelkalkulátor
Második évtől
591 737 Ft A 13. hónaptól
7,99% 8,49%
Végig fix Futamidő: 20 év Banki visszahívás
Az OTP Bank munkatársai a neked megfelelő napszakban veszik fel veled a kapcsolatot.Hitelfelvétel esetén akár egy héttel rövidebb lehet az ügyintézés.
Ez az ingatlan a nálunk meglévő adatok alapján azonnali értékbecslésre alkalmas lehet.
A becslés a hirdető által megadott adatokon alapul. A jelen tájékoztatás nem minősül ajánlattételnek és nem teljes körű, az egyes feltételek a hitelbírálat eredményétől függően változhatnak. Kérjük, a részletekről tájékozódj az OTP Bank fiókjaiban vagy az OTP Bank honlapján közzétett vonatkozó Üzletszabályzatokból és Hirdetményekből.
Vedd fel a kapcsolatot a hirdetővel
+36 70 385 2
Vedd fel a kapcsolatot a hirdetővel
+36 70 385 2
UI_KIT.CHARACTER_COUNTER__COMPONENT.ACTUAL_CHARACTER__SR_ONLY UI_KIT.CHARACTER_COUNTER__COMPONENT.MAXIMUM_CHARACTER__SR_ONLY
Hasonló eladó ingatlanok Felsőváros városrészben
Frissítve: 24 napja
9
135 millió Ft 1,38 millió Ft/m²
Eladó lakás, Szeged, Felsőváros
Frissítve: 5 napja
20
124,9 millió Ft 925,2 ezer Ft/m²
Eladó lakás, Szeged, Felsőváros
Frissítve: 3 hónapja
18
124,65 millió Ft 884,1 ezer Ft/m²
Eladó lakás, Szeged, Felsőváros


Fedezd fel a
hasonló lakásokat!Még további lakások Szegeden 137,5 M Ft körüli értékben
Tovább a hirdetésekhez Frissítve: 30 napja
20
124,65 millió Ft 884,1 ezer Ft/m²
Eladó lakás, Szeged, Felsőváros

Frissítve: 21 napja
16
138 millió Ft 836,4 ezer Ft/m²
Eladó lakás, Szeged, Felsőváros, Felső Tisza-Part utca
Frissítve: 17 napja
20
124,65 millió Ft 884,1 ezer Ft/m²
Eladó lakás, Szeged, Felsőváros

