

+5 fotó
Hirdetéskód: 8757703
Referenciaszám: 388691
Feltöltve: 1 napja
Szeged eladó téglalakás 2 szobás: 67,38 millió Ft
67,38 millió Ft
1 403 719 Ft/m²
48 m²
2 szoba
1. emelet
Eladó téglalakás Szeged, 48nm, 67.378.500Ft - Szeged
Eladásra kínálunk újépítésű lakásokat Szeged Rókus városrész belvárosához közeli csendes utcájában.
Társasházban változatos alapterületű lakások köthetőek le 22 m2-től -78 m2-ig, amelyek 31,6 -108,7 M. forintos áron vásárolhatóak meg.
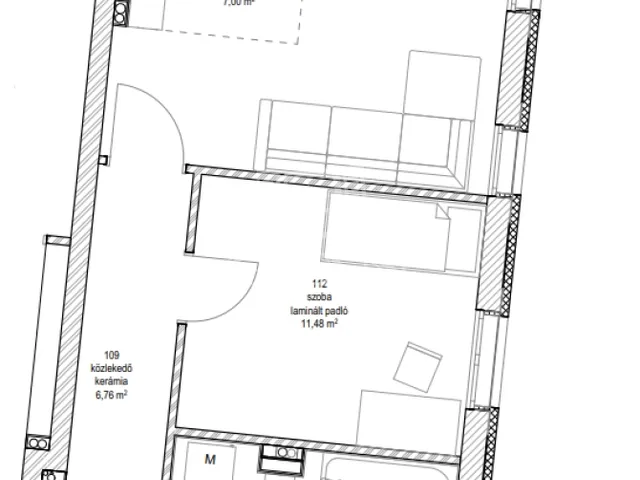
A társasház első emeltén található 48 m2-es lakás elrendezése:
• Amerikai konyhás nappali 23,49 m2
• Hálószoba 11,48 m2
• Fürdőszoba 6,6 m2
• Közlekedő 6,67 m2
Parkolás az utcán vagy a társasházban megvásárolható beálló vagy süllyesztett parkolóliftes beállási helyeken oldható meg.
• Süllyesztett parkolólift ár 4,5 M. forint / db
• Kocsibeálló ára 4,65 M. forint / db
Társasház magas színvonalú kivitelezéssel és minőségi alapanyagok felhasználásával, valamint korszerű energiatakarékos műszaki tartalommal kerül megépítésre.
A generálkivitelező cég évek óta minőségi kivitelezéssel épít ingatlanokat.
A kulcsrakész átadás tervezett időpontja 2026 első félévében.
Kedvezményes hiteligénylés, CSOK, BABAVÁRÓ támogatás esetén, kezdeményezheti a kapcsolatfelvételt díjmentesen bankfüggetlen hitelszakértő munkatársunkkal.
Az ingatlan megtekintése előre egyeztetett időpontban lehetséges, akár hétvégén is.
Amennyiben felkeltette az érdeklődését, további kérdéseivel kapcsolatban várom a jelentkezését. ...TOVÁBBI, TÖBBEZRES INGATLAN KÍNÁLAT: www.gdn-ingatlan.hu - GDN azonosító: 388691
Tulajdonságok
Téglalakás
Új építésű
Geotermikus
2025
A
Vedd fel a kapcsolatot a hirdetővel
+36 30 638 1
Hitelkalkulátor
Második évtől
289 966 Ft A 13. hónaptól
7,99% 8,49%
Végig fix Futamidő: 20 év Banki visszahívás
Az OTP Bank munkatársai a neked megfelelő napszakban veszik fel veled a kapcsolatot.Hitelfelvétel esetén akár egy héttel rövidebb lehet az ügyintézés.
Ez az ingatlan a nálunk meglévő adatok alapján azonnali értékbecslésre alkalmas lehet.
A becslés a hirdető által megadott adatokon alapul. A jelen tájékoztatás nem minősül ajánlattételnek és nem teljes körű, az egyes feltételek a hitelbírálat eredményétől függően változhatnak. Kérjük, a részletekről tájékozódj az OTP Bank fiókjaiban vagy az OTP Bank honlapján közzétett vonatkozó Üzletszabályzatokból és Hirdetményekből.
Vedd fel a kapcsolatot a hirdetővel
+36 30 638 1
Vedd fel a kapcsolatot a hirdetővel
+36 30 638 1
UI_KIT.CHARACTER_COUNTER__COMPONENT.REMAINING_SPACE__SR_ONLYUI_KIT.CHARACTER_COUNTER__COMPONENT.MAXIMUM_CHARACTER__SR_ONLY
Hasonló eladó ingatlanok Rókus városrészben
Frissítve: 12 napja

20
66,9 M Ft 760 227 Ft/m²
Eladó lakás, Szeged, Rókus
Frissítve: 27 napja

11
66 M Ft 942 857 Ft/m²
Eladó lakás, Szeged, Rókus
Frissítve: 12 napja

20
63,9 M Ft 998 438 Ft/m²
Eladó lakás, Szeged, Rókus

Fedezd fel a
hasonló lakásokat!Még további lakások Szeged, Rókus városrészben 67,38 M Ft körüli értékben
Tovább a hirdetésekhez Frissítve: 1 napja

2
71 M Ft 1 339 622 Ft/m²
Eladó lakás, Szeged, Rókus
Frissítve: 19 napja

17
69,9 M Ft 1 075 385 Ft/m²
Eladó lakás, Szeged, Rókus
Feltöltve: 2 hónapja

19
72 M Ft 1 161 290 Ft/m²
Eladó lakás, Szeged, Rókus

Töltsd fel hirdetésed ingyenesen!
Egyszerű