+4 fotó
Hirdetéskód: 8886228
Referenciaszám: M322139-5146661
Frissítve: 4 napja
Szeged eladó téglalakás 4 szobás: 83,2 millió Ft
83,2 millió Ft
1,21 millió Ft/m²
69 m²
4 szoba
3. emelet
Eladó Lakás, Szeged
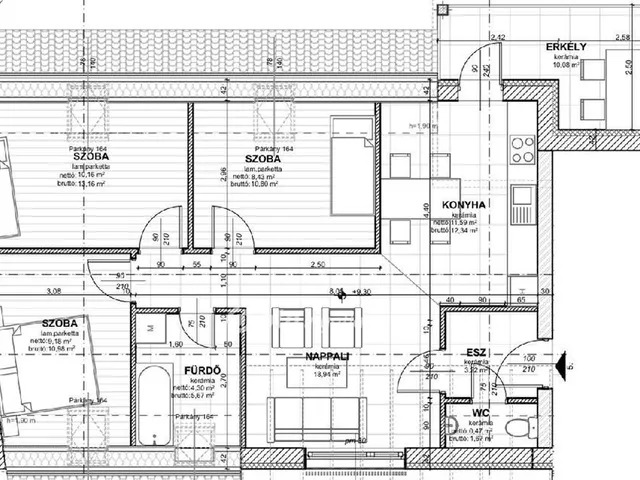
Szeged, Csemegi-tó közelében 69,17 m2-es, 3+1 szobás, 3. emeleti, újépítésű téglalakás, tulajdonos-kivitelezőtől, kulcsrakész állapotban eladó. Az átadás tervezett időpontja: 2026.12.31. A lakásban amerikai konyhás nappali + 2,5 szoba, fürdőszoba, wc és erkély található. A szobák laminált parketta-, a többi helyiség járólap burkolatot kapnak. Az otthon melegét hőszivattyús fűtés biztosítja. A lakáshoz opcionálisan, udvari beálló, vagy garázs is vásárolható. Tökéletes természetközeli elhelyezkedése miatt kedvező lehetőség lehet diákoknak, pároknak és befektetőknek, akár rövid-, akár hosszútávú kiadásra egyaránt. Az ingatlan megvásárlásához kedvező hitel is igényelhető, melynek intézéséhez szakszerű segítség áll a leendő vásárló rendelkezésére.
Referencia szám: M322139
Tulajdonságok
Téglalakás
Új építésű
Hőszivattyú
2026
Nem adta meg a hirdető
Vedd fel a kapcsolatot a hirdetővel

Puskásné Ember Ninette
OTPip - Szeged Széchenyi tér 6 - OTP Ingatlanpont Iroda
Az iroda összes hirdetése +36 30 733 5
Hitelkalkulátor
Második évtől
358 055 Ft A 13. hónaptól
7,99% 8,49%
Végig fix Futamidő: 20 év Banki visszahívás
Az OTP Bank munkatársai a neked megfelelő napszakban veszik fel veled a kapcsolatot.Hitelfelvétel esetén akár egy héttel rövidebb lehet az ügyintézés.
Ez az ingatlan a nálunk meglévő adatok alapján azonnali értékbecslésre alkalmas lehet.
A becslés a hirdető által megadott adatokon alapul. A jelen tájékoztatás nem minősül ajánlattételnek és nem teljes körű, az egyes feltételek a hitelbírálat eredményétől függően változhatnak. Kérjük, a részletekről tájékozódj az OTP Bank fiókjaiban vagy az OTP Bank honlapján közzétett vonatkozó Üzletszabályzatokból és Hirdetményekből.
Vedd fel a kapcsolatot a hirdetővel

Puskásné Ember Ninette
OTPip - Szeged Széchenyi tér 6 - OTP Ingatlanpont Iroda
Az iroda összes hirdetése +36 30 733 5
Vedd fel a kapcsolatot a hirdetővel

Puskásné Ember Ninette
OTPip - Szeged Széchenyi tér 6 - OTP Ingatlanpont Iroda
Az iroda összes hirdetése +36 30 733 5
UI_KIT.CHARACTER_COUNTER__COMPONENT.ACTUAL_CHARACTER__SR_ONLY UI_KIT.CHARACTER_COUNTER__COMPONENT.MAXIMUM_CHARACTER__SR_ONLY
Hasonló eladó ingatlanok Szegeden
Frissítve: 1 napja
11
87 millió Ft 1,24 millió Ft/m²
Eladó lakás, Szeged

Frissítve: 4 napja
11
83,81 millió Ft 1,23 millió Ft/m²
Eladó lakás, Szeged

Frissítve: ma
20
85,9 millió Ft 1,23 millió Ft/m²
Eladó lakás, Szeged


Fedezd fel a
hasonló lakásokat!Még további lakások Szegeden 83,2 M Ft körüli értékben
Tovább a hirdetésekhez Frissítve: 4 napja
20
89,8 millió Ft 831,5 ezer Ft/m²
Eladó lakás, Szeged
Frissítve: 1 hónapja
20
81,59 millió Ft 849,9 ezer Ft/m²
Eladó lakás, Szeged

Frissítve: 2 napja
11
83,81 millió Ft 1,23 millió Ft/m²
Eladó lakás, Szeged

