Hirdetéskód: 8828124
Referenciaszám: EL0605
Feltöltve: ma
Székesfehérvár eladó téglalakás 2 szobás: 85,9 millió Ft
85,9 millió Ft
1 684 314 Ft/m²
51 m²
2 szoba
2. emelet
Leírás
Új építésű lakások a belváros szélén !
Eladásra kínáljuk a történelmi belvárostó 10 pernyi sétára épülő 7 lakásos társasház lakásait.
A jó elhelyezkedésének köszönhetően a lakások gyorsan fogynak. Ne maradjon le róla.
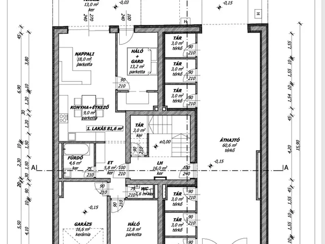
Szabad lakások:
2. lakás 1.em. 82,8 nm+ 13 nm terasz / N + 3 szoba+ gardrob 133 900 000,- Ft
3. lakás 1.em. 82,8 nm+ 13 nm terasz / N + 3 szoba+ gardrob 133 900 000,- Ft
5. lakás 2.em. 51,0 nm +13 nm terasz / N + 2 szoba + gardrob 85 900 000,- Ft
6. lakás 2.em. 50,0 nm +13 nm terasz / N + 2 szoba + gardrob 84 800 000,- Ft
tároló 3 nm 3 000 000,- Ft/db
Merőleges állású szabvány méretű parkoló: 4 000 000,- Ft/db
MŰSZAKI TARTALOM:
SZERKEZET
•Vasbeton alapozás modifikált bitumenes vízszigeteléssel
•Monolit vasbeton pillérek, födémek, lépcsőszerkezet
•Hang- és rezgéscsillapító akusztikai elemek
•Hőhídmentes kialakítás
FALAZAT
•Külső és belső tartófalak Porotherm Klima 30
•30 cm hanggátló tégla
•10 cm válaszfal elemek
TETŐ
•38 fokos hajlásszögű nyeregtető
•Fűrészelt fa szerkezet, cserépfedés
•Alsó oldalán tűzgátló gipszkarton burkolat
NYÍLÁSZÁRÓK
•Műanyag homlokzati nyílászárók
•Utólag szerelhető furnéros beltéri ajtók
•Biztonsági bejárati ajtók
VAKOLAT ÉS BURKOLATOK
•Belső simított gépi vakolat
•Homlokzaton 10 cm kőzetgyapot + 15 cm EPS hőszigetelés, nemesvakolat
•Hidegburkolat: kerámialap
•Melegburkolat: laminált parketta
•Külső terek: fagyálló kerámia vagy térkő
ZAJ- ÉS REZGÉSVÉDELEM
•Lépéshanggátló réteg a födémek alatt
•Tervezett műszaki megoldásokkal megfelel a tűzbiztonsági, energiahatékonysági és akusztikai előírásoknak
Fűtése hőszivattyús rendszer.
Parkolás: 1 db garázs, 6 db nyitott parkoló (2,5 x 5 m) (plusz költség)
Az alsó szinten a ház földszintjén kerül kialakításra a garázs és lakásonként tároló.
Az utcai bejárati kapu kaputelefonos távnyitó kiépítésével épül.
A beruházás elkészülte 2026. 12. hó végére tehető. A beruházónak több referencia munkája is van.
Kérésre bővebb műszaki tartalmat küldünk.
Igénybevehető támogatások: Csok+, OSP, babaváró hitel felvehető rá.
Bankfüggetlen személyre szabott, díjmentes hiteltanácsadás.
Tel.: 06705032673
Tulajdonságok
Téglalakás
3
Új építésű
Hőszivattyú
2026
13 m²
Nem adta meg a hirdető
Vedd fel a kapcsolatot a hirdetővel
Beropex Consulting Ingatlaniroda Az iroda összes hirdetése
+36 70 331 0
Hitelkalkulátor
Második évtől
369 674 Ft A 13. hónaptól
7,99% 8,49%
Végig fix Futamidő: 20 év Banki visszahívás
Az OTP Bank munkatársai a neked megfelelő napszakban veszik fel veled a kapcsolatot.Hitelfelvétel esetén akár egy héttel rövidebb lehet az ügyintézés.
Ez az ingatlan a nálunk meglévő adatok alapján azonnali értékbecslésre alkalmas lehet.
A becslés a hirdető által megadott adatokon alapul. A jelen tájékoztatás nem minősül ajánlattételnek és nem teljes körű, az egyes feltételek a hitelbírálat eredményétől függően változhatnak. Kérjük, a részletekről tájékozódj az OTP Bank fiókjaiban vagy az OTP Bank honlapján közzétett vonatkozó Üzletszabályzatokból és Hirdetményekből.
Vedd fel a kapcsolatot a hirdetővel
Beropex Consulting Ingatlaniroda Az iroda összes hirdetése
+36 70 331 0
Vedd fel a kapcsolatot a hirdetővel
Beropex Consulting Ingatlaniroda Az iroda összes hirdetése
+36 70 331 0
UI_KIT.CHARACTER_COUNTER__COMPONENT.REMAINING_SPACE__SR_ONLYUI_KIT.CHARACTER_COUNTER__COMPONENT.MAXIMUM_CHARACTER__SR_ONLY
Hasonló eladó ingatlanok Belváros városrészben
Frissítve: 18 napja
10
82,99 M Ft 911 978 Ft/m²
Eladó lakás, Székesfehérvár, Belváros

Frissítve: 3 hónapja
4
83,9 M Ft 1 712 245 Ft/m²
Eladó lakás, Székesfehérvár, Belváros, Budai út 8. B épület
Frissítve: 10 napja
19
87,84 M Ft 1 597 091 Ft/m²
Eladó lakás, Székesfehérvár, Belváros


Fedezd fel a
hasonló lakásokat!Még további lakások Székesfehérvár, Belváros városrészben 85,9 M Ft körüli értékben
Tovább a hirdetésekhez Frissítve: 5 napja
14
79,9 M Ft 783 333 Ft/m²
Eladó lakás, Székesfehérvár, Belváros
Frissítve: 10 napja
20
90 M Ft 714 286 Ft/m²
Eladó lakás, Székesfehérvár, Belváros

Frissítve: 10 napja
15
93,13 M Ft 1 862 560 Ft/m²
Eladó lakás, Székesfehérvár, Belváros


Töltsd fel hirdetésed ingyenesen!
Egyszerű