+4 fotó
Hirdetéskód: 8942332
Referenciaszám: 5201
Frissítve: 21 napja
Tárnok eladó téglalakás 4 szobás: 89,7 millió Ft
89,7 millió Ft
1,3 millió Ft/m²
69 m²
4 szoba
1. emelet
Kód: 5201TSZ I. em-i N+3 szobás új lakás, udvari beálló, önálló hrsz, saját mérőórák
Hivatkozzon erre, kód: 5201TSZ
- ÚJ ÉPÍTÉS
- TÁRSASHÁZ ALAPÍTÓ OKIRAT (önálló albetét)
- NAPPALI + 2-3 SZOBÁS LAKÁSOK
- AJÁNDÉK UDVARI BEÁLLÓ
- MEGBÍZHATÓ BERUHÁZÓ, TÖBB ÉVES TAPASZTALAT
Tárnokligeten kiváló környezetben új építésű 6 lakásos társasházban földszinti és emeleti nappali + 2-3 szobás lakások igény szerinti befeejzéssel, ajándék udvari beállóval leköthetők!
Várható átadás: 2026. december.
JELEN HIRDETÉSBEN SZEREPLŐ LAKÁS:
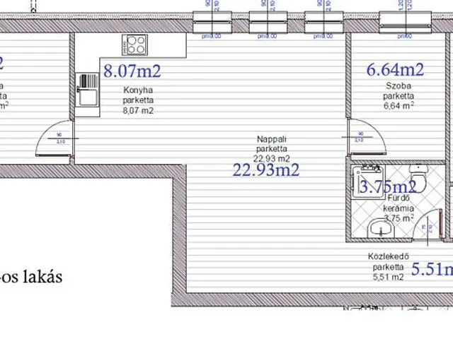
6-os lakás / nappali + 3 szoba (68.98m2), Ára: 89.7mFt: közlekedő (5.51m2), gardrób (2.65m2), fürdőszoba (3.75m2), 3 szoba (6.64m2, 7.71m2, 11.72m2), konyha (8.07m2) – étkező – nappali (22.93m2). /Kód: 5201/
AZ ÉPÜLETBEN TALÁLHATÓ TOVÁBBI LAKÁS KÍNÁLATOK:
FÖLDSZINT:
1-es lakás / nappali + 2 szoba (56.13m2), Ára: 72.8mFt: konyha (4.85m2) – étkező – nappali (24.85m2), közlekedő (1.70m2), fürdőszoba (4.15m2), 2 szoba (12.48m2, 8.10m2). /Kód: 5196/
2-es lakás / nappali + 2 szoba (68.93m2), Ára: 89.7mFt: konyha (6.14m2) – étkező – nappali (33.67m2), közlekedő (3.27m2), fürdőszoba (4.43m2), kamra (2.60m2), háztartási helyiség (3.50m2), 2 szoba (7.22m2, 8.11m2). /Kód: 5197/
3-as lakás / nappali + 3 szoba (59.37m2), Ára: 76.7mFt: konyha (3.60m2) – étkező – nappali (19.33m2), közlekedő (2.76m2), fürdőszoba (3.75m2), gardrób (5.50m2), 3 szoba (7.71m2, 6.64m2, 9.93m2). /Kód: 5198/
EMELET:
4-es lakás / nappali + 3 szoba (67.33m2), Ára: 87.1mFt: közlekedő (2.56m2), konyha (4.85m2) – étkező – nappali (24.85m2), fürdőszoba (4.15m2), közlekedő (4.67m2), 3 szoba (8.10m2, 7.98m2, 12.73m2). /Kód: 5199/
5-ös lakás / nappali + 2 szoba (70.94m2), Ára: 92.3mFt: közlekedő (3.86m2), fürdőszoba (5.33m2), wc (1.60m2), konyha (4.72m2), - étkező – nappali (28.95m2), 2 szoba (16.64m2, 14.56m2). /Kód: 5200/
Szerkezeti leírás: Beton sávalapozás. 30-as égetett vázkerámia tégla fő falazat + 15cm dryvit szigetelés. Szintek között ,,E” gerendás felbeton, míg a zárófödém fa szerkezetű 25cm kőzetgyapot szigeteléssel ellátva. A külső nyílászárók műanyag szerkezetűek, fokozott hőszigetelésű üvegezéssel, fehér színben. Cserép fedésű tető.
A lakás igény szerinti befejezéssel épül, ezáltal a hideg – meleg burkolatok 4.000,- Ft/m2 árig, a dekorfóliás beltéri ajtók 60.000,- Ft/db áron választhatók, illetve a szaniterek, csaptelepek ízlés szerint szintén.
Fűtés, meleg víz ellátás: A lakások fűtését kondenzációs kombi gázcirkó biztosítja minden helyiségben padlófűtésen keresztül. A meleg vizet szintén a cirkó szolgáltatja.
Parkolás: lakásonként 1 gépkocsi számára udvaron belül fedetlen - felszíni beállón megoldott.
Megközelíthetőség és infrastruktúra: buszmegálló, kávézó pár perc sétatávolság. Óvoda, iskola, bevásárlási lehetőség, gyógyszertár, orvosi rendelők szintén a közelben.
További hasonló ingatlanok találhatók még a kínálatunkban!
Szüksége van hitelre? SEGÍTÜNK!
Bankfüggetlen hitel tanácsadónk díjmentesen áll az Ön rendelkezésére! Keressen bizalommal!
A hirdetésben szereplő adatok, információk, képek, alaprajzok stb... tájékoztató jellegűek! Irodánk az esetleges elírásokért felelősséget nem tud vállalni!
Tájékoztatjuk a Tisztelt Érdeklődőket, hogy az ingatlan hirdetésében szereplő telefonszám felhívásával Önök hozzájárulnak személyes adataik (név, telefonszám), a hirdetést feladó -Otthonplusz.hu Kft. - által a bizalmas kezeléshez és nyilvántartáshoz.
Tulajdonságok
Téglalakás
2
Új építésű
Gázkazán
2026
Nem adta meg a hirdető
Vedd fel a kapcsolatot a hirdetővel
+36 70 432 5
Hitelkalkulátor
Második évtől
386 028 Ft A 13. hónaptól
7,99% 8,49%
Végig fix Futamidő: 20 év Banki visszahívás
Az OTP Bank munkatársai a neked megfelelő napszakban veszik fel veled a kapcsolatot.Hitelfelvétel esetén akár egy héttel rövidebb lehet az ügyintézés.
Ez az ingatlan a nálunk meglévő adatok alapján azonnali értékbecslésre alkalmas lehet.
A becslés a hirdető által megadott adatokon alapul. A jelen tájékoztatás nem minősül ajánlattételnek és nem teljes körű, az egyes feltételek a hitelbírálat eredményétől függően változhatnak. Kérjük, a részletekről tájékozódj az OTP Bank fiókjaiban vagy az OTP Bank honlapján közzétett vonatkozó Üzletszabályzatokból és Hirdetményekből.
Vedd fel a kapcsolatot a hirdetővel
+36 70 432 5
Vedd fel a kapcsolatot a hirdetővel
+36 70 432 5
UI_KIT.CHARACTER_COUNTER__COMPONENT.ACTUAL_CHARACTER__SR_ONLY UI_KIT.CHARACTER_COUNTER__COMPONENT.MAXIMUM_CHARACTER__SR_ONLY
Hasonló eladó ingatlanok Tárnokon
Frissítve: 7 napja
19
80,9 millió Ft 1,16 millió Ft/m²
Eladó lakás, Tárnok, Rákóczi út
Frissítve: 21 napja
7
89,7 millió Ft 1,3 millió Ft/m²
Eladó lakás, Tárnok
Frissítve: 21 napja
4
92,3 millió Ft 1,3 millió Ft/m²
Eladó lakás, Tárnok

Fedezd fel a
hasonló lakásokat!Még további lakások Pest megyében 89,7 M Ft körüli értékben
Tovább a hirdetésekhez Frissítve: 21 napja
7
92,3 millió Ft 1,3 millió Ft/m²
Eladó lakás, Tárnok
Frissítve: 21 napja
4
89,7 millió Ft 1,3 millió Ft/m²
Eladó lakás, Tárnok
Frissítve: 20 napja
9
89,7 millió Ft 1,3 millió Ft/m²
Eladó lakás, Tárnok
