Hirdetéskód: 8976049
Referenciaszám: U0049701
Feltöltve: ma
Veszprém eladó téglalakás 4 szobás: 114,38 millió Ft
114,38 millió Ft
1 361 667 Ft/m²
84 m²
4 szoba
1. emelet
ÚJÉPÍTÉSŰ PRÉMIUM LAKÁSOK ELÉRHETŐEK AZ ÚJTELEP VÁROSRÉSZEN!
Különleges ajánlat: az első 2 lakás tulajdonosa ingyen felszíni beállót kap ajándékba.
Modern, igényesen kivitelezett lakások zárt, biztonságos udvarban, nyugodt környezetben – ideális választás családok számára.
Főbb jellemzők:
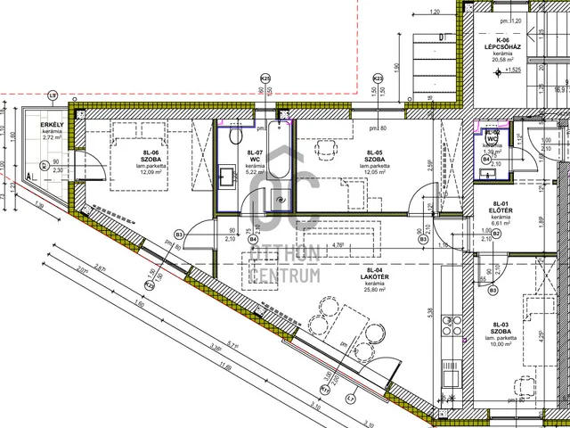
-Átgondolt, praktikus elrendezés, a lakás alapterülete 74,24nm
-Saját, 8,85 nm-es tároló minden lakáshoz
-Tágas, 1308 nm-es telek
-Minőségi anyaghasználat és esztétikus burkolatok
Műszaki tartalom:
-fűtése hőszivattyúval megoldott, így rendkívül költséghatékony a fenntartása
-3 rétegű hőszigetelt műanyag ablakok fém külső borítással
-árnyékolás elektromos zsalúziával megoldott
-falazata 30 cm tégla, rajta 18 cm Austrotherm grafit hőszigetelés
-lakásválaszfal: 5 cm YTONG PEF előfalazó, 25 cm Porotherm 25 AKU Z, 5 cm YTONG PEF előfalazó
-közbenső födém: 30 cm vasbeton, 7,5 cm aljzatbeton, 6 cm Austrotherm EPS AT-L2 lépésálló hangszigetelés, padlófűtés, burkolat
-zárófödém: 1 rtg. páraáteresztő fólia, 15 cm ásványgyapot hőszigetelés faszerkezet között, 10 cm ásványgyapot hőszigetelés faszerkezet között, 1 rtg. párazáró fólia, 2 rtg. 12,5 mm RF tűzgátló gipszkarton burkolat bordavázon
-tető fedése Bramac cserép
-villany mérete lakásonként 3x20A + 3x10A H tarifa
Miért érdemes választani:
-Modern, energiatakarékos otthon
-Biztonságos, zárt udvari elhelyezkedés
-Kiváló ár-érték arány
-Élhető, jól kialakított terek
Átadási határidő: 2026.09.30.
Felszíni parkoló 3M Ft-ért vásárolható hozzá!
Ne maradjon le róla – az ingyenes beálló csak az első 2 lakás vásárlójának jár.
BANKFÜGGETLEN hitelben és teljes körű ügyintézésben segítünk!
Tulajdonságok
Téglalakás
Új építésű
Hőszivattyú
2026
Nem adta meg a hirdető
Vedd fel a kapcsolatot a hirdetővel
+36 70 465 6
Hitelkalkulátor
Második évtől
492 239 Ft A 13. hónaptól
7,99% 8,49%
Végig fix Futamidő: 20 év Banki visszahívás
Az OTP Bank munkatársai a neked megfelelő napszakban veszik fel veled a kapcsolatot.Hitelfelvétel esetén akár egy héttel rövidebb lehet az ügyintézés.
Ez az ingatlan a nálunk meglévő adatok alapján azonnali értékbecslésre alkalmas lehet.
A becslés a hirdető által megadott adatokon alapul. A jelen tájékoztatás nem minősül ajánlattételnek és nem teljes körű, az egyes feltételek a hitelbírálat eredményétől függően változhatnak. Kérjük, a részletekről tájékozódj az OTP Bank fiókjaiban vagy az OTP Bank honlapján közzétett vonatkozó Üzletszabályzatokból és Hirdetményekből.
Vedd fel a kapcsolatot a hirdetővel
+36 70 465 6
Vedd fel a kapcsolatot a hirdetővel
+36 70 465 6
UI_KIT.CHARACTER_COUNTER__COMPONENT.ACTUAL_CHARACTER__SR_ONLY UI_KIT.CHARACTER_COUNTER__COMPONENT.MAXIMUM_CHARACTER__SR_ONLY
Hasonló eladó ingatlanok Újtelep városrészben
Frissítve: 3 napja
20
119 M Ft 1 322 222 Ft/m²
Eladó lakás, Veszprém, Újtelep

Frissítve: 11 napja
19
118 M Ft 1 493 671 Ft/m²
Eladó lakás, Veszprém, Újtelep
Feltöltve: ma
3
103,65 M Ft 1 382 000 Ft/m²
Eladó lakás, Veszprém, Újtelep


Fedezd fel a
hasonló lakásokat!Még további lakások Veszprém megyében 114,38 M Ft körüli értékben
Tovább a hirdetésekhez Feltöltve: ma
3
105,1 M Ft 1 364 935 Ft/m²
Eladó lakás, Veszprém, Újtelep

Feltöltve: ma
3
119,69 M Ft 1 360 114 Ft/m²
Eladó lakás, Veszprém, Újtelep

Feltöltve: ma
3
112,68 M Ft 1 310 233 Ft/m²
Eladó lakás, Veszprém, Újtelep

