+14 fotó
Hirdetéskód: 8762944
Referenciaszám: M316038
Frissítve: 6 napja
Szentes eladó telephely 267 m² alapterületű: 95 millió Ft
95 millió Ft
355,8 ezer Ft/m² *
* A m² árat a hirdető adta meg.
267 m²
820 m²
Leírás
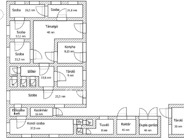
Kizárólag az OTP Ingatlanpont kínálatában! Szentes, Kíséri városrészen sokoldalú, 267 nm-es ingatlan eladó! Eladásra kínálunk Csongrád-Csanád vármegyében, Szentesen, a Kíséri városrészben egy 267 nm-es épületet, amely számos vállalkozási és hasznosítási lehetőséget rejt magában. Ajánlom irodaházként, sportkomplexumként, kereskedelmi vagy gyártási célokra, illetve akár több lakásos társasház kialakítására is! A városközpont egy karnyújtásnyira, mégis nyugodt környezetben. Telek mérete 820 nm, az udvaron található dupla garázs, raktár, tároló, melléképület, fedett kocsibeállók. Az épület több pontján vizesblokk is ki lett alakítva, így könnyen átalakítható különböző funkciókra. Ez az ingatlan számtalan lehetőséget kínál, legyen szó vállalkozás indításáról, bővítésről vagy befektetésről! Energetikai tanúsítvány nem áll rendelkezésre. Ne hagyja ki ezt a kivételes lehetőséget! Kizárólag az OTP Ingatlanpontnál elérhető! Amennyiben felkeltette érdeklődését, hívjon bizalommal, és tekintsük meg együtt! Irodáink Szentes, Petőfi utca 12. (a buszmegálló felől) és Csongrád, Fő utca 54. szám alatt várja a személyes érdeklődőket. az OTP teljes banki hátterével, egyedi ajánlatokkal, sorban állás nélküli, díjmentes ügyintézéssel áll rendelkezésére. ***VÁLASSZUK KI EGYÜTT AZ ÖNNEK LEGMEGFELELŐBB AJÁNLATOT! BANKI SORBAN ÁLLÁS NÉLKÜL! ***
Tulajdonságok
Telephely
Átlagos
Gázkazán
1950
Nem adta meg a hirdető
Vedd fel a kapcsolatot a hirdetővel
+36 70 429 5
Vedd fel a kapcsolatot a hirdetővel
+36 70 429 5
Vedd fel a kapcsolatot a hirdetővel
+36 70 429 5
UI_KIT.CHARACTER_COUNTER__COMPONENT.ACTUAL_CHARACTER__SR_ONLY UI_KIT.CHARACTER_COUNTER__COMPONENT.MAXIMUM_CHARACTER__SR_ONLY
Hasonló eladó ingatlanok Szentesen
Frissítve: 1 hónapja
20
90 millió Ft 339,6 ezer Ft/m²
Eladó kereskedelmi és ipari ingatlan, Szentes

Frissítve: ma
20
90 millió Ft 339,6 ezer Ft/m²
Eladó kereskedelmi és ipari ingatlan, Szentes

Frissítve: 1 napja
20
90 millió Ft 339,6 ezer Ft/m²
Eladó kereskedelmi és ipari ingatlan, Szentes


Fedezd fel a
hasonló hirdetéseket!Még további kereskedelmi és ipari ingatlanok Csongrád megyében 95 M Ft körüli értékben
Tovább a hirdetésekhez Frissítve: ma
17
95 millió Ft 355,8 ezer Ft/m²
Eladó kereskedelmi és ipari ingatlan, Szentes

Frissítve: 1 hónapja
20
89,9 millió Ft 3 millió Ft/m²
Eladó kereskedelmi és ipari ingatlan, Szeged
Frissítve: 3 éve
64
250 000 Euro
91,5 millió Ft 572,1 ezer Ft/m²
Eladó kereskedelmi és ipari ingatlan, Makó, Aradi utca
